Уроки истории. Поиск форм арендного жилья – опыт Европы и США XIX-XX вв.
- Авторы: Вавилова Т.Я.1, Жирнякова П.Д.1
-
Учреждения:
- Самарский государственный технический университет
- Выпуск: Том 8, № 14 (2023)
- Страницы: 42-53
- Раздел: ЧЕЛОВЕК И ГОРОД
- URL: https://journals.eco-vector.com/2500-3437/article/view/627229
- DOI: https://doi.org/10.17673/IP.2023.8.14.5
- ID: 627229
Цитировать
Полный текст
Аннотация
Повышенная международная и межрегиональная мобильность людей, свойственная началу XXI века, стимулирует развитие новых принципов социально ориентированного проектирования арендного жилья в интересах предотвращения неравенства и сегрегации. В связи с этим возрастает значение исторического опыта. Основное внимание в статье уделено некоторым уникальным зарубежным экспериментам XIX–XX вв. Предпринята попытка уточнения ключевых типов жилых структур для социально уязвимых категорий населения и их архитектурно-типологических особенностей. Объект исследования – жилая среда арендного (муниципального) типа, предмет исследования – факторы, влияющие на типологическую эволюцию жилья для семей с доходом домохозяйства ниже среднего. Цель исследования – систематизация и обобщение новых сведений, критический анализ опыта совершенствования экономичного жилища и выявление его прогрессивных форм.
Ключевые слова
Полный текст
Политический упадок, природные и антропогенные катаклизмы, эпидемии и вооруженные конфликты XX–XXI веков стали причиной роста социального и экономического неравенства стран и отдельных регионов, вызвали усиление международной и межрегиональной миграции. Несмотря на глобализацию и успехи технического прогресса, решение острых противоречий и предотвращение коллизий, вызванных миграционной активностью, остается наиболее актуальной задачей экономической политики многих стран, в том числе, – России. По данным Росстата в 2022 году 14,3 млн. чел. относились к категории людей с денежными доходами ниже границы бедности (величины прожиточного минимума), что составляет 11 % от общего числа жителей страны [1]. При этом миграционный прирост составил более 49,5 тыс. чел. [2]. На качество и уровень жизни россиян и лиц, прибывших из-за рубежа, оказывают влияние состояние местных социальных институтов, развитие локальных рынков труда и демографическая политика регионов. Это относится к высоко-, средне- и малообеспеченным субъектам РФ. Однако семьи с низким уровнем дохода домохозяйства более остальных подвержены влиянию социальной стратификации и нуждаются в решении экономических и инфраструктурных проблем [3].
Наиболее острыми являются вопросы расселения: часто малоимущие граждане занимают неблагополучные и отчужденные территории и лишены качественной жилой среды, а впоследствии подвержены социальной изоляции, институциональной и территориальный сегрегации. Вместе с тем повышение доступности и качества жилья для всех категорий граждан – приоритет Государственной программы РФ «Обеспечение доступным и комфортным жильем и коммунальными услугами граждан Российской Федерации». Однако, несмотря на то, что к социальным аспектам проектирования жилой среды не раз обращались российские ученые (Ещина Е.В. – 2004, Агеева Е.Ю. – 2005, Кияненко К.В. – 2005, Гребенщиков К.Н. – 2012, Хегай И.В. – 2013, Кочнев Д.С. – 2017, Ярмош Т.С. – 2019, Назарова М.П. – 2021 и др.), на данный момент в отечественной архитектурной теории и практике отсутствуют развернутые рекомендации, которые соответствуют изменившимся правовым и экономическим условиям. В сводах правил нет разделов, посвящённых интеграции жилой среды для малоимущих в структуру городов и сёл, не разработаны принципы и нормативы проектирования жилья и объектов социальной инфраструктуры с учетом интересов уязвимых групп населения, а также людей, оказавшихся в трудной жизненной ситуации. Отсутствие ясности провоцирует риски социальной конфликтности и криминогенности, постепенную геттоизацию и сламизацию городских пространств [4]. Потому углубленное изучение, обобщение и систематизация зарубежного и отечественного опыта развития муниципального и доступного жилья является злободневной научной задачей, позволяющей создать основу актуализации подходов к социально-ориентированному проектированию современных жилых структур.
XIX век
К началу XIX века относится идея, которая демонстрирует уникальную реакцию на переход экономики к реформированию производственных отношений и индустриализации. Идея связана с именем социалиста-утописта и философа – англичанина Роберта Оуэна. К этому времени развитие заводов и фабрик в экономически развитых странах, сопровождавшееся привлечением новых трудовых ресурсов, потребовало решения проблемы расселения трудящихся. Одной из альтернативных форм жилой среды стали фабричные поселения (рабочие посёлки, городки, коммуны), позволявшие сделать подконтрольным, управляемым и, как предполагалось, более комфортным проживание трудовых общин в арендуемых домах. С 1799 г. Оуэн начинает градостроительный эксперимент близ Глазго (Шотландия) в деревне Нью-Ланарк, которая была основана в 1785 г. Здесь уже в 1786 г. заработала большая хлопчатобумажная фабрика. Ключевыми для производственного процесса были 4 больших корпуса, водонапорные сооружения, красильные и механические мастерские, а также машинное отделение, мельничный и ретортный цеха. Поблизости и было решено построить посёлок для рабочих.
Будучи гуманистом, Р. Оуэн был убеждён в том, что для увеличения производительности труда владельцы предприятий должны заботиться о своих работниках, создавая им достойные условия жизни. Таким альтруистом оказался владелец фабрики в Нью-Ланарке – Дэвид Дейл, ставший тестем Р. Оуэна. Строительство фабричного посёлка велось по специальному проекту, в котором было предусмотрено не только удобное и хорошо оборудованное арендное жильё, но также и общественные здания, необходимые для удовлетворения физических и духовных потребностей трудящихся (рис. 1а). При проектировании использовались лучшие стандарты того времени. Когда в посёлке были построены первые жилые дома, каждой семье предоставлялась жилая ячейка – отдельная комната. Но некоторые из них находились в подвале. Со временем обстоятельства позволили увеличить жилые ячейки до двух и более комнат, а подвальные помещения были переоборудованы под прачечные. Планировка жилых зданий и их размеры в Нью-Ланарке были разными. Возможности ограничивались орографическими условиями: местность здесь довольно пересечённая. Форма и площадь участков была связана с параметрами подходящих площадок: Double Row – самый широкий из многоквартирных домов, Long Row – самый длинный. Было построено несколько коттеджей для управленческого персонала, из которых два сохранились до наших дней. Они известны сегодня как дом Роберта Оуэна и дом Дэвида Дейла. Текстильная фабрика проработала в Нью-Ланарке до 1968 г., а посёлок на протяжении почти 200 лет служил наглядным примером создания образцового промышленного поселения. Все здания были построены в едином стиле (рис. 1б, 1в, 1г). Стены добротных многоквартирных жилых домов, построенных на узких террасах пересечённого рельефа, были выполнены из песчаника, крыши – из шотландского шифера. Считается, что гуманная среда, созданная в этом поселении, стала прототипом городов-садов, концепцию которых на рубеже XIX и XX веков выдвинул Эбенизер Говард [5].
Рис. 1. Фабричный посёлок Нью-Ланарк в Шотландии: а) общий вид [8]; б) механический цех, Институт формирования характера и школа [9]; в) дом Оуэна [10]; г) многоквартирные жилые дома для рабочих [11].
В 2001 г. фабричный посёлок Нью-Ланарк вошёл в Список объектов всемирного наследия ЮНЕСКО от Соединенного Королевства Великобритании и Северной Ирландии. К настоящему времени здесь помимо комплекса зданий фабрики и жилых домов сохранены и реконструированы дом работников мельницы, водный Мельничный канал, инженерный и литейный корпуса, завод по производству газа, цеха Waterhouses, а также здания церкви, Института формирования характера и школы [6]. Два последних объекта первоначально включали помещения для учебы, концертов, танцев и религиозных служб. Позже в них размещались библиотека и читальный зал, а со временем – столовая. По разным причинам были утеряны котельная, коттедж лодочника, конюшни, контора, мельница и один из блокированных жилых домов [7].
После удачного проведения социального эксперимента в Шотландии, в 1825 г. Р. Оуэн предпринимает попытку создания производственной общины «Новая гармония» (New Harmony) в США, однако данный проект воплощения в практику принципов «уравнительного коммунизма» оказался безуспешным [12].
Позже в Англии был принят «Закон о поправках к закону о бедных» или Новый закон о бедных (Poor Law Amendment Act 1834), который препятствовал благотворительности, ограничивая развитие прогрессивных типов социального жилья. Законом было предписано размещение нищих в работном доме (Workhouse) – учреждении для проживания в том числе, и мелких преступников. В Голландии аналогом был дисциплинарный дом (Tuchthuis).
Тем не менее, во второй половине XIX века в Западном Йоркшире (Англия) возник ещё один комплекс – для рабочих текстильной фабрики в деревне Солтейр на реке Эйр. Семья основателей фабрики – отец и сын Даниель и Титус Солт, на первых этапах ведения бизнеса в г. Брэдфорте столкнулась с серьёзными проблемами – бунтами рабочих, вызванных неудовлетворительными условиями их работы и жизни. Понимая это, фабриканты пришли к единодушному мнению, что реформы должны быть проведены.
В 1833 г. управление семейной компанией было передано Титусу Солту, который в том же году рискнул модернизировать фабричную технологию, и это привело его к долгосрочному успеху. К концу 1840-х гг. Титус Солт превратился в текстильного магната и располагал достаточными средствами для улучшения жизни своих рабочих. Это время в Англии связано с формированием социального и гуманитарного сознания. В 1844 г. появился роман Бенджамина Дизраэли "Конингсби" о фабриканте, который улучшил жизнь своих рабочих, построив для них церковь и школу, а через год Дизраэли описал специально построенную У.Б. Ферраном деревню для рабочих недалеко от Брэдфорда. Окончательно перейти в разряд филантропов Т. Солту помогло избрание в 1848 г. на пост мэра: он стал усердно работать на общее благо как в Бредфорте, так и на производстве. Через два года в окрестностях города был куплен новый участок. Фабрика была открыта в сентябре 1853 г. и действует до сих пор. Разработка проекта фабричного посёлка была поручена архитекторам Локвуду и Моусону. Они решили использовать при строительстве мотивы итальянской архитектуры. Более того, в настоящее время посёлок Солтейр считается лучшим образцом применения итальянского стиля на территории Англии, и в 2001 г. вошёл в список Всемирного наследия ЮНЕСКО [13]. Архитекторам удалось сохранить сельскую среду. Все постройки были возведены в семь этапов в период с 1853 по 1875 гг. и расположены на территории по регулярной схеме. Cамодостаточность общинной жизни обеспечивали магазин, больница, школа, библиотека, парк и церковь. Построены также были и благотворительные заведения – дома призрения для бедных и престарелых, общественные бани и прачечные [14].
Рис. 2. Фабричный посёлок Солтейр в Англии: а) общий вид [15]; б) в) г) – примеры жилых домов для работников [16].
Дома в Солтейре строились с учётом квалификации работников и их достатка. Все они выполнены из обработанного камня с крышами из уэльского шифера. Каждый дом был оборудован собственным водо- и газоснабжением, а также наружным туалетом. Их размеры варьируются: от террасных на 4 семьи до домов большого размера с садами для управляющих. Каждое здание обеспечено сквозным проветриванием, что позволяет проникать внутрь свету и воздуху. На первых этапах строительства характер застройки был монотонным. Преобладающая часть домов этого периода проста и аскетична по дизайну. Окна выходят прямо на тротуар, в задней части гостиной есть кладовая, две спальни наверху, небольшой погреб и задний двор. Отдельные здания предназначались для размещения одиноких людей и были запроектированы трехэтажными. У них не было задних дворов, но в конце 1930-х гг. реконструкция позволила создать приватные пространства и улучшить проветривание. Завершали группу два дома в стиле «спина к спине». На одной из улиц были построены дома с улучшенной планировкой и репрезентабельным внешним видом. Следующий этап застройки включал строительство коттеджей для рабочих. Торцевые дома здесь немного больше и состоят из двух отсеков. В некоторых из них окна установлены и в ванных комнатах. Применение более тонких архитектурных деталей и улучшение планировок квартир за счет вспомогательных помещений отразилось и на внешнем облике. Завершающие этапы строительства связаны с особым вниманием к домам для рабочей элиты и управляющих. Их жильё обладало более широким корпусом и небольшим палисадником. Были предусмотрены гостиная, кухня, кладовая, погреб и от трёх до шести спален. Высшие руководители фирмы, священники, чиновники, школьные учителя и бригадиры жили в двадцати двух больших, хорошо оборудованных домах с симметричной планировкой и большими садами. В итоге к 1871 г. в Солтейре были предоставлены в аренду дома для 4300 человек (рис. 2 б, в, г). Благоприятная среда для проживания во многом способствовала тому, что фабрика действует до сих пор [13, 14].
Следует также отметить, что в 1901 г. в России был опубликован перевод сборника статей «Университетские и социальные поселения», собранных Уиллом Ризоном. На основании имеющихся фактов в нём был представлен опыт создания в Англии разных форм недорогого жилья коммунального типа. С таким жильём связывалась возможность справедливого разрешения жилищной проблемы для обездоленной части населения [17].
Во Франции в середине XIX в. социальными вопросами заинтересовался первый президент и затем император Луи-Наполеон Бонапарт (Наполеон III), и в 1844 г. он подготовил эссе под названием "Об исчезновении пауперизма". Придя к власти в 1848 г., он захотел построить в каждом районе Парижа достаточно обширные семейные дома, каждый из которых позволял поселить около четырехсот рабочих семей. Все семьи должны были иметь отдельную квартиру и достаточный уровень коммунальных удобств. В рамках пилотного проекта в 1849 г. началось строительство. Работы продолжались четыре года. В место, получившее название «Ситэ Наполеон» переехало 200 семей. Арендная плата зависела от комфортности жилья: за комнату без камина платили в три раза меньше, чем за просторное жилье со спальнями и кухней. Жильцы также могли воспользоваться несколькими бесплатными услугами: туалетами рядом с лестничными клетками, яслями, бесплатным посещением врача, прачечной и сушилкой [18].
Очередной уникальный объект появился благодаря одной из наиболее заметных идей организации совместного проживания представителей трудовой коммуны, которая привлекла внимание более двух веков назад – в 1800-1820 гг. она была выдвинута французским социалистом-утопистом Шарлем Фурье. Жилые комплексы, которые Фурье представлял, как уютные дворцы в сельской местности, получили название фаланстеров (phalanstère). Каждый из них был рассчитан на 1620 человек. Фаланстер включал в себя жилые дома с внутренними дворами-садами, несколько общих залов или «сериалов», бытовые и промышленные мастерские, школу, оперный театр, храм и др. В жилых ячейках было предусмотрено две спальни. Все жилые помещения предполагалось связать улицей-галереей. Над большой центральной площадью должна была возвышаться башня для размещения управленческих органов [12].
Впоследствии теоретическая модель Фурье приобрела популярность и получила поддержку у последователей, одним из которых оказался соотечественник Ш. Фурье – сын рабочего, фабрикант Жан-Батист Годен. Он вдохновился принципами утопического социализма и вложил средства в реализацию модели фаланстера, основав «Фамилистер в Гизе» (Familistère de Guise). Ж.-Б. Годен считал, что рабочие люди не должны жить в хижинах, мансардах или в подвалах, и что семейные дворцы для них, построенные по модели фаланстеров, являются лучшей формой организации жизни. Промышленник отказался от услуг приглашенного архитектора и сам разработал общее решение и детальные планировки коллективного жилища. Строительство в Гизе велось с 1859 по 1884 гг. В отличие от фаланстера Фурье этот фамилистер расположен не в сельской местности, а на окраине промышленного города. Он был задуман как ансамбль из нескольких зданий, находящихся на участке примерно в 10 га, и предназначался для коллективного проживания трудящейся молодежи, семей рабочих, инвалидов, стариков и сирот на условиях аренды (рис. 3а, 3г) [19].
Рис. 3. Фамилистер в Гизе, Франция. 1859-1877 гг.: а) общий вид – 1864 г. [20]; б) схема генерального плана [21]; в) разрез центрального здания [20]; г) общий вид – 2016 г. [20]; д) двор-атриум центрального здания, 1897 [20]; е) фрагмент плана центрального здания [20].
В его состав вошли три четырёхэтажных многоквартирных жилых дома, связанных друг с другом консольными галереями со стороны внутренних застеклённых дворов-атриумов, а также небольшая отдельно стоящая секция с детским садом, школой и театром, два здания для домашнего ремесла, библиотека, баня, разнообразные торговые лавки и конторы, которые расположены и на первом этаже жилых домов. Общая вместимость комплекса – до 500 квартир, рассчитанных на расселение 1,5–2,0 тыс. чел. Ж.-Б. Годен применил в здании деревянный каркас и кирпичные стены, предусмотрел цокольный этаж, винтовые лестницы, расположенные по углам здания, сквозное расположение квартир – каждая из них связана и с двором, и с улицей. Водопровод и общие сантехнические помещения имеются на всех этажах вблизи лестничных площадок (рис. 3 б, 3в, 3д, 3е) [19]. Уникальный социальный и архитектурный эксперимент был по достоинству оценён потомками: зданиям комплекса в 1991 г. был присвоен статус памятника исторического наследия Франции. Благодаря этому с 2006 г. в здании проводятся реставрационные и реконструктивные работы, создан музей, планируется открытие гостиницы, но отдельные жилые блоки используются по прежнему назначению [20].
К концу XIX века обострение вооруженных конфликтов, политические и экономические кризисы усугубили глобальные социально-экономические проблемы, в том числе – жилищную, решить которую предстояло уже в новом XX веке.
XX век
В 1919 г. в Австрии приняли Закон новый о требованиях к жилью (Wohnanforderungsgesetz), давший толчок запуску массового строительства «Красных кварталов» – муниципального жилья для малоимущих. Они возводились в социал-демократической Вене вплоть до 1934 г. Новая жилищная политика Австрии в отношении государственного и муниципального жилья оказала позитивный эффект на социально-экономическое устройство страны, стала основой рынка недвижимости Австрии и послужила примером для внедрения программ муниципального жилья в других странах Европы и за её границами [22]. В 1950 г. во Франции, Алжире и Швейцарии была запущена программа строительства муниципального жилья «HLM» (от. фр. An habitation à loyer modéré – жилье по умеренным ценам), сдаваемого государственными или частными органами малоимущему населению по низким арендным ценам.
Середина XX века, связанная с драматическими военными событиями, привела к серьезному жилищному кризису в Центральной Европе. Он коснулся обеих германских республик – ГДР и ФРГ, где в годы войны было разрушено огромное количество жилых домов. В первые послевоенные годы в Восточной Германии задачи выделения земли под новое жилищное строительство решались за счёт конфискации земель, принадлежавших нацистским преступникам и владельцам земельных наделов с удельной площадью на одного члена семьи более 100 га. В Берлине жильё возводилось по «сталинской» модели. Самым грандиозным было строительство аллеи Сталина (сейчас – Карл-Маркс-аллея). Градостроительная идея была задумана и детализирована урбанистом Эгоном Хартманом, а проектированием зданий занимались архитектурные коллективы. Один из них, разработавший проект первого девятиэтажного дома высотой 35 метров, возглавил Генрих Хензелманн. Здание планировалось сделать образцом стандарта жилищного строительства. На первом этаже размещались магазины, на крыше – терраса. Здесь было размещено 33 квартиры, из которых 30 были предоставлены семьям рабочих. Здание было оснащено самыми современными техническими устройствами: домофонами, лифтами и центральным отоплением, системами холодного и горячего водоснабжения. Кухни в квартирах были оборудованы электроплитами. Реализация этой модели застройки на аллее Сталина оказалась дорогостоящей и позволила построить в общей сложности всего 2767 квартир. Восточный Берлин получил важную градостроительную ось, но здания не помогли решить жилищную проблему и со временем стали именоваться «рабочими дворцами» [23].
Иная стратегия использовалась в Западной Германии. За два послевоенных года было построено менее 2 тыс. квартир, и проблема усугубилась из-за резко возросшего потока беженцев и трудовых мигрантов. Общее количество немцев, покинувших Польшу, Чехословакию и советскую оккупационную зону оценивалось почти в 7,9 млн. чел. Поэтому решение жилищного вопроса стало ключевым пунктом предвыборных программ ведущих политических партий ФРГ в 1949 г. Обе партии видели выход в возведении дешёвого массового жилья под контролем государства. Для этого было учреждено Министерство жилищного строительства, которое к лету 1950 г. разработало долгожданный Закон о жилищном строительстве, позволивший реформировать сложившиеся подходы. Разделение прав собственности на землю и объекты недвижимости позволяло органам самоуправления изымать пустующие участки и стимулировало строительную инициативу частных владельцев. Строящееся жильё было разделено на три категории: социальное, арендное и массовое (свободно возводимое). Площадь квартир в жилье первой категории не превышала 65 м2, в жилье второй и третьей категорий составляло 80–120 м2. Учитывался состав семей. При этом государство, создавая нанимателям жилья льготы по оплате аренды, принимало на себя обязательства по компенсации владельцам жилья первой и второй категорий финансовых потерь при сдаче квартир в аренду, а владельцы жилья третьей категории компенсации не получали, но размер арендной платы в таких домах государством не ограничивался. К концу 1950-х гг. в целом проблема обеспечения населения недорогим жильём была решена. Западная Германия стала европейским лидером по объёмам жилья на душу населения. Следующий этап был связан с повышением комфорта проживания, и новый закон о жильё стал отправной точкой перехода к проектированию и строительству жилья на средства собственников [24].
Рис. 4. Комплекс Прютт-Айгоу, США. Архитектор М. Ямасаки. 1954–1974 гг.: а) застройка комплекса [26]; б) детская площадка [27]; в) планы 1, 4, 7 и 10 жилых этажей [28].
Необходимость возведения большого объема недорого жилья для молодых семей затронула и США, где ещё в 1956 г. в Сент-Луисе было завершено строительство жилого комплекса «Прютт-Айгоу» (Pruitt-Igoe). Автор проекта – Минору Ямасаки. Комплекс включал 33 11-этажных секционных здания с 2870 квартирами (рис. 4а). Здания были подняты на колонны, в небольших квартирах размещались маленькие кухни и санузлы, а на отдельных этажах были запроектированы обслуживающие помещения, (рис. 4б и 4в). Негативные последствия концентрированного расселения малоимущих, способствующего расовой сегрегации, не были спрогнозированы ни инвесторами, ни проектировщиками. Буквально за десятилетие к 1965 г. эта зона города превратилась в преступное гетто. Единственным методом борьбы с криминальным очагом оказался снос, что и было начато в 1974 г. Подобная участь настигла жилые комплексы аналогичного типа, и в других странах, поскольку они создавались без учёта социальных последствий. Например, в Великобритании (г. Глазго) в 1968 г. был построен, а уже в 2015 г. был снесён жилой квартал «Red Road Flats» для малоимущих и мигрантов. Эти факты наглядно продемонстрировали социальную и экономическую опасность некачественной жилой среды для малоимущих [25].
В 1960 г. в Сингапуре был учреждён Совет по жилищному строительству и развитию (англ. Housing and Development Board или HDB), отвечающий за недорогое государственное жилье, сдаваемое гражданам внаём. В 1965 г. в Швеции создана "Миллионная программа" (швед. Miljonprogrammet), целью которой стал снос ветхого фонда и массовое строительство жилья для малоимущих в течение последующих 10 лет.
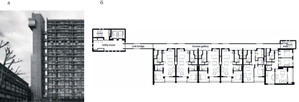
Рис. 5. Башня Треллик, Великобритания. Архитектор Э. Голдфингер. 1972 г.: а) экстерьер [29]; б) планировка галерейного этажа [30].
В 1960-е гг. в Соединённом королевстве развитие получают и комплексы муниципального жилья. В 1965-1967 гг. по заказу Совета Большого Лондона архитектор Эрно Голдфингер запроектировал жилой дом повышенной этажности – башню Балфрон (англ. Balfron) в стиле брутализм с муниципальными квартирами для нуждающихся семей. Отдельная лестнично-лифтовая секция 31-этажного здания через каждые три этажа соединена переходом с галереями, ведущими к небольшим жилым ячейкам (рис. 5а). Они расположены в трёх уровнях друг над другом. Квартирография нестандартная: есть студии с выделенными спальнями и кухнями-нишами, двухкомнатные квартиры с кухнями, трёхкомнатные квартиры с кухнями-столовыми. Каждая квартира имеет большую лоджию (рис. 5б). Общее количество жилых ячеек – 146. Вскоре после заселения башня стала магнитом для преступников, однако своевременно принятые меры безопасности позволили предотвратить социальную и физическую деградацию объекта. Больше того: комплекс получил статус памятника исторического наследия, что сделало его местной достопримечательностью. В 1972 г. проект был использован ещё раз: в другом районе Лондона появилась аналогичная башня Треллик (Trellick Tower) [29, 30].
Важную роль в развития подходов к широкомасштабному жилищному строительства сыграли постоянно проводимые с 1901 г. в Берлине международные строительные выставки «IBA Berlin», на которых можно было увидеть демонстрацию достижений архитектуры. До конца 1950-х гг. они планировались в соответствии со строгой социальной и структурной программой. На них можно было увидеть новаторские проектные разработки, которые были убедительными благодаря техническим инновациям, а также эстетическому и социальному качеству зданий. Возобновившиеся в 1979 г., выставки стали авторитетной дискуссионной площадкой по проблемам не только нового строительства, но и обновления городов и модернизации существующего жилого фонда. Постепенно ключевым вопросом выставок стало восстановления Западного Берлина.
Рис. 6. Дом у Силезских ворот в Берлине, Германия. Архитектор А. Сиза. 1980 г.: а) планировка типового жилого этажа) [32], б) экстерьер [33].
Внимание экспертов на выставке 1989 г. было привлечено к работе португальского архитектора Алваро Сиза Виейра. Экономически оптимальный жилой дом для мигрантов, построенный в 1980 г. у Силезских ворот (Wohnhaus Schlesisches Tor), стал первой постройкой архитектора за пределами родной страны. Угловое 7-этажное модернистское здание со скруглёнными уличным и дворовым фасадами (рис. 6а) состоит из двух секций, одна из которых несёт черты галерейной планировки (рис. 6б). Первоначально в проекте было предусмотрено 24 квартиры и 4 лестницы, но корректировка планировок позволила разместить на первом этаже коммерческие помещения, а на втором–седьмом этажах – 46 квартир эконом-класса и 2 лестнично-лифтовых узла. В городской среде здание выглядит визуально интригующим и противоречивым. Жесткий рисунок прямоугольных окон призван создать гармонию с окружающими постройками, но криволинейная форма служит отсылкой к немецкому экспрессионизму. Благодаря этому здание выделяется на общем фоне (рис. 4). Дом позже стал популярен под названием "Bonjour Tristesse" («Здравствуй, грусть») – из-за тематического французского граффити на главном фасаде [31, 32].
Впоследствии опыт регулирования жилищной политики, восстановления старого и возведения нового жилого фонда в Германии превратился в своеобразный индикатор качества проектирования недорого жилья для малоимущих. К концу XX века в массовом жилье всё более важным становилось внедрение в жизнь партисипаторных методов, всё более явно ощущается тенденция ресурсосбережения. Переход к этим инновационным методам, к активному применению «зелёных» и «устойчивых» технологий, обусловленных глобальными социальными, экологическими и экономическими проблемами, станет трендом начала XXI века.
Заключение
Анализ этих и других результатов исследования, связанного с историческими предпосылками развития современных методов проектирования жилья для социально уязвимых групп населения, в частности – мигрантов, позволяет выделить несколько ключевых морфотипов жилища, соответствующих современным социально ориентированным принципам проектирования (табл. 1):
Таблица 1
В настоящее время за границей предоставление жилья малоимущим регулируется органами муниципального управления, которые также являются главными девелоперами процесса проектирования и строительства экономически оптимального жилья. При этом анализ современного опыта позволяет увидеть, что реализация в прошлом успешных и провалившихся «утопических» проектов социальной гармонизации среды жизнедеятельности, даёт возможность выявить поле применения тех или иных методов, приемов и средств. Это касается не только арендного, но и доступного жилья. Следует признать, что особенно актуальными становятся жилые здания и комплексы, владельцами которых могут быть успешные предприниматели и бизнесмены, заботящиеся о привлечении квалифицированных трудовых кадров. Следующий важный результат работы – это вывод о том, что в целях предотвращения сегрегации нецелесообразно создавать анклавы социально уязвимых категорий населения за счёт их концентрированного расселения. Наоборот, смешанная застройка, включающая малоэтажные или многоквартирные дома для жителей разного достатка, сглаживает социальную напряжённость благодаря доступной для всех хорошей инфраструктуре. Такая среда стимулирует стремление к добрососедству и повышению социального статуса.
Представленная в исследовании историческая справка и выявленные на её основе устойчивые формы экономически «оптимального» жилья могут найти применение при актуализации действующих правил проектирования и при разработке проектов по созданию социально-позитивной жилой среды в городах России в интересах предотвращения социального неравенства, институциональной и территориальной сегрегации.
Об авторах
Татьяна Яновна Вавилова
Самарский государственный технический университет
Автор, ответственный за переписку.
Email: filippov.vd@samgtu.ru
Россия
Полина Даниловна Жирнякова
Самарский государственный технический университет
Email: filippov.vd@samgtu.ru
Россия
Список литературы
- Миграционный прирост населения по полу, возрасту и потокам передвижения [Электронный ресурс] // Витрина статистических данных: Росстат. 2022. – URL: https://showdata.gks.ru/report/278004/ / (дата обращения: 10.01.2023).
- Неравенство и бедность [Электронный ресурс] // Росстат. 2022. – URL: https://rosstat.gov.ru/folder/13723 / (дата обращения: 10.01.2023).
- Ухорский, М.В. Социальное неравенство в современном российском обществе: состояние и региональная динамика [текст]: автореф. дис. ... канд. социол. наук: 22.00.04 / М.В. Ухорский; Рос. акад. нар. хоз-ва и гос. службы при Президенте РФ]. – М., 2014. – 23 с.
- Кияненко, К.В. Социология устойчивости против архитектуры сегрегации [Электронный ресурс] / К.В. Кияненко // Архитектон: известия вузов. 2015. № 1 (49). – URL: http://archvuz.ru/2015_1/3 / (дата обращения: 12.07.2023).
- New Lanark - Past & Present. – URL: https://www.newlanark.org/about-new-lanark / (дата обращения: 08.12.2023).
- Building a Village at New Lanark. – URL: https://www.newlanark.org/about-new-lanark/buildings / (дата обращения: 08.12.2023).
- New Lanark's Lost Buildings. – URL: https://www.newlanark.org/about-new-lanark/lost-buildings / (дата обращения: 08.12.2023).
- Management Plan 2019–2023. New Lanark World Heritage Site. URL: NL_Management_plan_2019-2023_-_digi.pdf (newlanark.org) / (дата обращения: 08.12.2023).
- Historic Environment Scotland: New Lanark, Mechanic's workshops, institute, and school. 20.09.2013. – URL: New Lanark - Gallery - UNESCO World Heritage Centre / (дата обращения (08.12.2023).
- Historic Environment Scotland: New Lanark, Robert Owen's House. 20.09.2013. – URL: New Lanark - Gallery - UNESCO World Heritage Centre / (дата обращения (25.04.2023).
- Historic Environment Scotland: New Lanark, Long Row and Double Row. 20.09.2013. – URL: New Lanark - Gallery - UNESCO World Heritage Centre / (дата обращения (08.12.2023).
- Мороз, В.В. Модели альтернативного общества в социально-философских утопических проектах XIX - начала XX вв. / В.В. Мороз, С.Н. Рымарович // Научные ведомости Белгородского государственного университета. Серия: Философия. Социология. Право. 2016. № 10 (231). – С. 5–14.
- The worsted textile trade in Bradford, and the story of Saltaire. – URL: Saltaire, World Heritage Site (saltairevillage.info) / (дата обращения (11.12.2023).
- Intro to Saltaire House Histories. – URL: Saltaire, World Heritage Site (saltairevillage.info) / (дата обращения (11.12.2023).
- J. Miller. Architecture - Salt's Mill in Saltaire. – URL: a8d9d4b7a28d140f220a25bb8c2a8865.jpg (1280×960) (pinimg.com) / (дата обращения (11.12.2023).
- Housing in Saltaire. – URL: Saltaire, World Heritage Site (saltairevillage.info) (дата обращения 11.12.2023).
- Ризон, Уилл. Университетские и социальные поселения: [Сб. ст. Ольдена, Бернета, Скотти и др.] / Пер. с англ. Е.С. Петрушевской, под ред. проф. Д.М. Петрушевского. Санкт-Петербург: типо-лит. Б.М. Вольфа, 1901. – 244 с.
- A. Vitek. La Cité Napoléon : l’histoire d’une cité ouvrière à Paris. Publié le 11 mai 2021. – URL: La Cité Napoléon : l'histoire d'une cité ouvrière à Paris (culturezvous.com) / (дата обращения (11.12.2023).
- Le Familistère De Guise. – URL: Le Familistère de Guise - Le Familistère de Guise (familistere.com) / (дата обращения (22.02.2023).
- Une Architecture Au Service Du Peuple. – URL: Une architecture au service du peuple - Le Familistère de Guise (familistere.com) / (дата обращения (22.02.2023).
- Саваренская Т.Ф. Западноевропейское градостроительство XVII–XIX веков: Эстетические и теоретические предпосылки. М.: Стройиздат, 1987. – 191 с.
- Федоров, А. В. История решения проблемы строительства доступного жилья в крупных городах Европы на примере г. Вена / А. В. Федоров, Л. Б. Леонова, Т. Черны // Экономика строительства. 2021. № 1 (67). – С. 23–34.
- Строительство «дворцов для рабочих». Послевоенный Берлин [Электронный ресурс]. – URL: Строительство «дворцов для рабочих». Послевоенный Берлин. (livejournal.com) / (дата обращения (22.03.2023).
- Опыт немцев в решении жилищной проблемы. May 28th, 2020. – URL: Опыт немцев в решении жилищной проблемы — Back in the USSR (barbаmbia kerkudu) — NewsLand / (дата обращения (22.03.2023).
- Petkovic, S. Co-living and Co-housing: similarities and differences / S. Petkovic, M. Nikolic, B. Stoiljkovic // Архитектура. Строительство. Образование. 2020. № 2 (16). – P. 22–31.
- Легенда о Прюит-Игоу (2011) [Электронный ресурс]. – URL: https://www.imdb.com/title/tt1788461/mediaviewer/rm2884090624? / (дата обращения (18.05.2023).
- Two Worlds. – URL: https://lebbeuswoods.wordpress.com/2012/02/10/two-worlds/ / (дата обращения (15.01.2023).
- A. Coulleri, H. Abdel , C. Ott. The Evolution of the House Plan in the United States: Post-war Era. October 01, 2021. – URL: https://www.archdaily.com/969231/the-evolution-of-the-house-plan-in-the-united-states-post-war-era?ad_medium=gallery / (дата обращения (21.04.2023).
- Architecture Classics: Trellick Tower / Erno Goldfinger. January 18, 2019 – URL: https://www.archdaily.com/151227/ad-classics-trellick-tower-erno-goldfinger?ad_medium=gallery / (дата обращения (22.05.2023).
- London’s brutalist Balfron Tower is brought back to life. July 2018. – URL: London’s brutalist Balfron Tower is brought back to life | Wallpaper / (дата обращения (22.05.2023).
- The Development of International Building Exhibitions. – URL: History | IBA (internationale-bauausstellungen.de) / (дата обращения (19.02.2023).
- D. Pascucci. AD Classics: Wohnhaus Schlesisches Tor (Bonjour Tristesse) / Álvaro Siza Vieira + Peter Brinkert. – URL: AD Classics: Wohnhaus Schlesisches Tor (Bonjour Tristesse) / Álvaro Siza Vieira + Peter Brinkert | ArchDaily / (дата обращения (18.02.2023).
- Alvaro Siza. Apartment block «Bonjour Tristesse. Berlin. – URL: https://ducciomalagamba.com/en/architects/alvaro-siza/547-apartment-block-bonjour-tristesse-berlin-2/ / (дата обращения (18.02.2023).
Дополнительные файлы










