Architectural and planning structure of modern theater buildings
- Authors: Samogorov V.1, Mustafina S.1
-
Affiliations:
- Samara State Technical University
- Issue: Vol 8, No 14 (2023)
- Pages: 64-75
- Section: CITY IN MOTION
- URL: https://journals.eco-vector.com/2500-3437/article/view/627235
- DOI: https://doi.org/10.17673/IP.2023.8.14.7
- ID: 627235
Cite item
Full Text
Abstract
The article presents the results of an analysis of the architectural and planning structure of modern theater buildings, as well as the latest technologies and innovative solutions in the field of their design. The architectural and design techniques used in the process of creating theatrical objects and their internal spaces are considered.
Full Text
Введение. В процессе предпроектных исследований, выполненных в рамках разработки экспериментально-поискового проекта приспособления самарского элеватора под новую функцию – театральное здание нового типа, проанализированы последние тенденции в области проектирования современных театральных объектов в нашей стране и за границей.
Современная архитектура и дизайн находятся в постоянном развитии благодаря применению новейших технологий. Актуальность исследования и применения этих технологий в данной сфере неоспорима, поскольку они позволяют создавать уникальные, инновационные и неповторимые формы объектов зрелищной архитектуры. Новые материалы, сценические технологии и способы их применения позволяют архитекторам реализовать самые смелые идеи при проектировании новых и реконструкции существующих театральных зданий. Новые технологии позволяют строить здания, обеспечивающие высокий комфорт как для зрителей, так и для артистов. Например, инновационные системы освещения и звукоизоляции позволяют создавать благоприятные условия для проведения спектаклей, обеспечивают отличную видимость и слышимость в каждой точке театрального пространства. Разработка новых технологий в области сценического оборудования позволяет реализовывать самые сложные концепции режиссеров и сценографов, создавая неповторимые и запоминающиеся постановки. Благодаря применению инновационных решений в области архитектуры и дизайна театральных зданий, можно существенно улучшить их функционирование. Исследование последних достижений в сфере проектирования театральных зданий открывает широкие возможности для смелых экспериментов в области театра и архитектуры, способных восхищать и вдохновлять новые поколения зрителей.
Цель исследования заключалась в выявлении новых архитектурных приемов и инновационных решений в создании театральных зданий. Она определила главные задачи:
1. Проанализировать мировой опыт строительства архитектуры зрелищного назначения;
2. Выявить новейшие технологии и решения, применяемые в современных объектах театральной архитектуры.
Все современные театральные объекты и их планировочная структура – это результат эволюции, истоки которой восходят к традициям, заложенным грекоязычными народами Средиземноморья. Первое упоминание о театре, как об отдельном виде искусства, датируется 534 годом до нашей эры [1]. Современная театральная архитектура удовлетворяет потребности и оправдывает ожидания современного зрителя. Новейшие технологии становятся неотъемлемой частью этой сферы, позволяя создавать удивительные и неповторимые театральные пространства. Рассмотрим мировой опыт строительства театральных зданий и проанализируем применяемые инновационные решения.
Оперный театр в Гуанчжоу (Китай)
Оперный комплекс Гуанчжоу располагается на берегу Жемчужной реки и символизирует новый деловой район Чжуцзян в Гуанчжоу, укрепляя статус одного из главных культурных центров Азии. Сочетая в себе футуристическую архитектуру и передовые театральные технологии, это сооружение площадью 42000 м2 является мощным символом оперного искусства и связующим звеном между культурно-исторической составляющей и международным сообществом [2, 3]. Оперный театр Гуанчжоу – один из трёх крупнейших театров Китая. Здание спроектировано архитектором Захой Хадид и представляет собой два объема (рис. 1), имеющих схожую форму и структуру, но различных по габаритам. В каждом располагается театральный зал на 1800 и 400 зрительных мест.
Рис. 1. Оперный театр в Гуанчжоу (Китай), 2010, арх. Заха Хадид
Залы оснащены новейшими акустическими технологиями. В основе дизайна Оперного театра лежали концепции естественного ландшафта, природного взаимодействия и создания уникальной архитектуры. Принципы эрозии, геологии и топографии были активно применены в процессе создания этого объекта. Рельеф предопределил линии изгиба и складок данного объекта, такое решение позволило проникать естественному свету во внутрь здания. «Скелет» архитектурного сооружения образует сетчатый стальной каркас. Бетонные блоки и стеклянные элементы выполняют роль «кожи», защищая монументальную конструкцию. Для интерьера зрительного зала использованы гипсовые блоки, армированные стекловолокном, изготовленные по индивидуальному заказу, чтобы продолжить архитектурный язык пластичности и гибкости. [2, 3, 4, 5, 6] Помимо концертных залов, театр, вместил музей, библиотеку и архив. Появление данного центра на берегу реки спровоцировало рост строительства культурных центров по всему миру [6].
Рис. 2. Интерьер зрительного зала, Оперный театр в Гуанчжоу (Китай), 2010, арх. Заха Хадид
Концертный зал Great Amber (Латвия)
Уникальный концертный зал Great Amber (рис.3), возведенный в латвийском городе Лиепая, входит в десятку лучших архитектурных сооружений. Признание объект получил на авторитетном международном конкурсе, получив в 2016 г. Международную архитектурную премию (International Architecture Awards) [7].
Перевод названия концертной площадки означает Великий Янтарь, это отражено в его архитектуре и величественном внешнем облике. Прозрачное остекление фасада, выполненное в янтарном цвете, окружает каркас из монолитного железобетона, который имеет форму конуса. Концертный зал, вмещающий более 1000 гостей, является ядром и центром архитектурно-планировочной структуры. Фасадные конструкции не имеют острых углов, а плавно огибают несущие элементы, создавая аналог природным формам натурального камня [7]. Конструкции и интерьерные элементы, в ночное время суток подсвечены так, чтобы через полупрозрачные элементы сооружения создавалась аналогия янтаря с его вкраплениями и пустотами.
Рис. 3. Концертный зал Great Amber (Великий Янтарь), Лиепая, Латвия, 2015, арх. Фолькер Гинке
Пространство внутри здания хорошо освещено естественным светом – благодаря фасадному остеклению, зеркалам внутренних элементов каркаса и зеркальной поверхности крыши. Бликующее освещение концептуально продумано, это поддерживает янтарную тему [7].
Рис. 4. Концертный зал Great Amber (Великий Янтарь), Лиепая, Латвия, 2015, арх. Фолькер Гинке
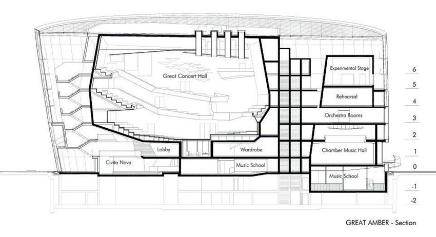
Концертный зал (рис. 4) решает многофункциональную задачу, подняв оркестровую яму и партер, трансформируясь в пространстве для проведения конгрессов и выставок. В зале постоянно работают кафе и ресторан, обеспечивающие питание на протяжении всего мероприятия [7]. Вокруг основного зала находятся помещения Лиепайского симфонического оркестра, а также учебные и репетиционные залы музыкальной школы. Радиальная архитектурно-планировочная структура позволяет создавать единое пространство для коммуникации артистов, учеников и преподавателей. Камерный зал на 200 человек, различные арт-пространства находятся под основным концертным залом. Балетная студия, экспериментальная сцена на 150 зрительных мест, бар и клуб расположены на пятом этаже, завершая пространственную концепцию объекта (рис. 5) [7].
Рис. 5. Разрез концертного зала Great Amber (Великий Янтарь), Лиепая, Латвия, 2015, арх. Фолькер Гинке
Форма, уникальный интерьер и великолепная акустика «Великого Янтаря» оставляют незабываемые впечатления.
77 Theatre (Китай)
В районе Дунчэн в Пекине находится театр (рис. 6), который был построен на территории бывшей типографии офсетной печати в 2012-2014 гг. Рассматриваемый объект заменил старые склады и пристройки, которые располагались внутри дворового комплекса. В качестве основного фасадного материала использовали кортеновскую сталь, которая имеет цвет ржавчины. Один из основных плюсов данного покрытия, это долговечность и защита от коррозии [8, 9].
Рис. 6. Театр 77, Дунчэн, Пекин, Китай, 2012-2014, арх. Origin Architect
Главный фасад представляет собой раздвижную стену (рис. 7), которая поднимается и расширяет театральное пространство, позволяя в представлениях задействовать расположенную поблизости территорию улицы. [8, 9, 10, 11]
Рис. 7. Раздвижная стена театра 77, Дунчэн, Пекин, Китай, 2012-2014, арх. Origin Architect
Фасады рядом стоящих дворовых зданий были доведены до первоначального вида, обнажив оригинальную кирпичную кладку, а внутренние помещения полностью перепланированы под различные галереи и художественные мастерские. Соседние здания и театр оснащены переходами в виде пешеходных мостов и лестниц, создавая единый, завершенный проект. Крыши используются в качестве дополнительных сцен или трибун для зрителей, что полностью стирает границу между актерами и публикой. Здесь искусство и повседневность сливаются, образуя полноценный творческий кластер. [8, 9, 10, 11]
Парижская филармония (Франция)
В начале 2015 г. состоялось открытие Парижской филармонии (рис. 8), строительство которой откладывалось двадцать лет и было реализовано в течении восьми. Проект здания был разработан известным французским архитектором Жаном Нувелем. Архитектор предложил инновационный дизайн и новаторские формы, напоминающие холм, все это гармонично сочетается с парком Ла-Виллет на окраине северо-восточного Парижа.
Рис. 8. Парижская филармония, Париж, Франция, 2015 г., арх. Жан Нувель
52-метровая филармония является основным ориентиром парка. Сверкающая алюминиевая часть фасада главного концертного зала контрастирует с основным матовым корпусом, покрытым мозаикой из плит монохромных оттенков. Насладиться панорамным видом можно поднявшись на эксплуатируемую крышу (рис. 9). [12]
Рис. 9. Парижская филармония, эксплуатируемая крыша, Париж, Франция, 2015 г., арх. Жан Нувель
В здании располагаются репетиционные и концертные залы, студии, выставочные площадки, кафе и панорамный ресторан. Концепция основного концертного зала Пьера Буеза Парижской филармонии была спроектирована на основе трансформации. Уникальная конструкция и идея всеобщего охвата публики и ее включения в атмосферу, требовала инноваций не только в архитектуре, но и в сценическом дизайне и акустических технологиях. Архитектор Жан Нувель и ведущий акустик сэр Гарольд Маршалл разрабатывали проект зала в тесном сотрудничестве с театральным консультантом в ходе театральных сессий. [12, 13]
Несмотря на большую вместимость зала (2400 мест), пространство внутри филармонии кажется удивительно камерным. Ощущение можно объяснить математически: расстояние между дирижером и самым дальним зрителем составляет всего 32 метра. [12, 14] Уникальность зала также создается посредством подвесных акустических конструкций в форме облаков и консольных, парящих балконов (рис. 10). Данное решение сочетает в себе боковые отражения, прямой звук и реверберацию – для достижения превосходной четкости и прозрачности в теплом, обволакивающем резонансе. Зал также оборудован органом Ригера, специально разработанным для симфонического репертуара. [13, 14]
Рис. 10. Парижская филармония. Концертный зал Пьера Буеза, Париж, Франция, 2015 г., арх. Жан Нувель
Одной из особенностей, делающих Парижскую филармонию уникальной среди многих концертных залов Европы, является ее универсальность. Цель состоит в том, чтобы иметь возможность адаптировать аудиторию к различным музыкальным жанрам, всегда обеспечивая оптимальные условия просмотра и прослушивания. Так, например, на сцене может разместиться любой оркестровый состав, даже самый представительский. Ярусы за сценой могут вместить хор, если это необходимо для представляемого произведения, но чаще всего заполняются зрителями. Но в случае опер концертного формата или «киноконцертов» (показов фильмов под живую музыку) модульная концепция позволяет устранить эти задние ярусы и отодвинуть сцену назад, увеличив партер. Еще одной инновационной особенностью является то, что сиденья в партере можно снять, чтобы освободить место для концертов современной музыки. [12, 13, 15]
Рис. 11. Парижская филармония. Конференц-зал, Париж, Франция, 2015 г., арх. Жан Нувель
Для более камерной аудитории в здании филармонии есть конференц-зал на 170 мест (рис. 11). Его оборудование позволяет проводить конференции, семинары, встречи и кинопоказы в оптимальных для этого условиях. [13, 15]
Жан Нувель задумал свою архитектурную композицию, как продолжение природного парка – общественного пространства, открытого для всех. Будь то на пути к концерту в филармонии или просто прогуливаясь по окрестностям, каждый сможет насладиться панорамным видом с крыши данного архитектурного объекта. Дети, взрослые и пожилые люди, в одиночку или вместе с семьей и друзьями – публика претворяет в жизнь пространство Парижской Филармонии, так же, как и сама филармония оживляет музыку и мероприятия, организованные на ее территории. [13, 14, 15]
Дворец искусств королевы Софии (Испания)
Дворец искусств королевы Софии (рис. 12) является не только крупным центром исполнительских искусств Валенсии, но и динамичной городской достопримечательностью, завершающей комплекс Города искусств и наук, которая помогает объединять и оживлять территорию, где он расположен. [2, 16, 17, 18]
Рис. 12. Дворец искусств королевы Софии, Валенсия, Испания, 2006 г., арх. Сантьяго Калатрава
Его высота составляет 75 метров, а под металлической, широкой конструкцией с изогнутой крышей, длиной 230 м, расположено само здание площадью 40 000 м². Новаторская архитектура этого здания, спроектированная Сантьяго Калатравой, вмещает четыре сценические площадки (рис. 12): для оперы (на 1706 мест), театра (на 1520 мест), музыки (на 380 мест) и балета (на 400 мест). [2, 16, 18, 19]
Рис. 13. Дворец искусств королевы Софии, Разрез 1-1, Валенсия, Испания, 2006 г., арх. Сантьяго Калатрава
Для перемещения из одного помещения в другое имеются панорамные лифты и лестницы, размещенные внутри металлического корпуса здания. Благодаря контрасту между непрозрачной листовой металлической структурой и стеклянными вестибюлями восприятие при передвижении по зданию постоянно меняется, создавая уникальные ощущения. По задумке архитектора, футуристическое здание должно было быть похоже на приоткрытую раковину, хранящую в своем сердце сокровище — искусство в чистом виде, но многие сравнивают его с воинским шлемом конкистадоров. Поскольку билет требуется только при входе в зрительный зал, публика может свободно перемещаться по зданию, что придает Оперному театру гостеприимный характер. [18, 20]
Рис. 14. Дворец искусств королевы Софии. Оперный концертный зал, 2006 г., арх. Сантьяго Калатрава
Центральным ядром комплекса является Оперный концертный зал (рис. 14). Зал состоит из четырех ярусов зрительных мест, одной из самых больших сцен в мире, оснащённую всеми основными удобствами и современными технологиями, и третью по величине оркестровую яму в мире, способную вместить до 120 музыкантов. Необычный изгиб балконов, линии парящего потолка и сверкающая белая отделка поразительно напоминают черты экстерьера здания. [16, 20]
Зрительный зал театра расположен над главным залом. Он оснащен звуковым оборудованием и видеосистемами, способными проецировать действия, происходящие в главном зале. Трансформация данного помещения зависит от жанра мероприятия. Зал, вмещающий 380 зрителей, используется для исполнения камерной музыки и проведения конференций. Театр Марти и Солера расположен ниже уровня воды расположенной вблизи театра реки и вмещает 400 зрителей. Он используется для балетных постановок и репетиций. [16, 18, 19, 20]
Выводы
В результате анализа новейшей архитектуры театральных зданий сделаны следующие выводы. Развитие театральной архитектуры многогранно и циклично. Современные театры стремятся к созданию уникальных пространств, которые сочетают в себе функциональность, новаторство и эстетичность. Новые технологии, сегодня, играют ключевую роль в развитии архитектуры, в том числе театральной. Применение инновационных материалов и систем освещения позволяет создавать удивительные спецэффекты на сцене, расширяя возможности режиссера и дизайнера, а моделирование звукового поля помогает достичь более чистого и ясного звучания даже в самых сложных акустических условиях. И, наконец, стоит отметить, что новая театральная архитектура способствует расширению взгляда на сцену. Благодаря гибкости сценического пространства, в театрах стало возможно проводить различные виды представлений, включая экспериментальные и интерактивные форматы, включая и официальные мероприятия.
About the authors
Vitaly Samogorov
Samara State Technical University
Author for correspondence.
Email: filippov.vd@samgtu.ru
Russian Federation
Suriya Mustafina
Samara State Technical University
Email: filippov.vd@samgtu.ru
Russian Federation
References
- Bykov V.E. Architecture of open theaters. // State ed. lit. by builds and architect., M. 1954. – 130 p.
- Hammond, Michael. Performing architecture: opera houses, theatres and concert halls for the twenty-first century. London; New York: Merrell, 2006, 239 p
- THEATER and its architecture No. 45-46. M: Publishing house of the magazine "Theater", 2021, 402 p.
- Kartushina V.S. Guangzhou Opera House. Ambassadorial life, February 27, 2023. URL: https://embassylife.ru/post/21540
- Guangzhou Opera House / Zaha Hadid Architects. ArchDaily, 01 Mar 2011, URL: https://www.archdaily.com/115949/guangzhou-opera-house-zaha-hadid-architects
- Rose Etherington, Guangzhou Opera House by Zaha Hadid Architects. Dezeen. 25 February 2011 URL: https://www.dezeen.com/2011/02/25/guangzhou-opera-house-by-zaha-hadid-architects/
- Great Amber · Liepaja · Letonia. Grupo MCI. URL: https://grupo-mci.com/en/portfolio_page/great-amber-%C2%B7-liepaja-%C2%B7-letonia/
- Charlie C.S. Urbanism of the Bolshoi Theater: Chinese cities in the 21st century. 2019 – 307 s
- Pavlov A. Theater with a sliding facade in Beijing. Architime.ru. URL: https://www.architime.ru/specarch/origin_architect/offset_printing_factory.htm#1.jpg
- Amy Frearson. Origin Architect transforms Beijing factory into a theatre complex. Dezeen. 25 May 2014 URL: https://www.dezeen.com/2014/05/25/theatreprinting-factory-beijing-by-origin-architect/
- Theatre, Пекин, Китай. Redeveloper.ru. URL: https://redeveloper.ru/redeveloperskie-proekty/realise_actual/77-theatre-pekin-kitay/
- Paris Philharmonic. Archi.ru. URL: https://archi.ru/projects/world/683/parizhskaya-filarmoniya
- PHILHARMONIE. URL: https://philharmoniedeparis.fr/en/discover/philharmonie
- Concert halls that amaze with their beauty. Neoclassica. URL: https://neoclassica.ru/beautifulconcerthalls-01/
- Kushner M. The Future of Architecture in 100 Buildings. UK, Simon & Schuster UK, 2015. 176 p.
- Santiago Calatrava. In search of movement: exhibition catalogue. – St. Petersburg: State Hermitage, 2012. – 72 p.
- Palacio de las Artes Reina Sofía. Wikipedia. URL : https://es.wikipedia.org/wiki/Palacio_de_las_Artes_Reina_Sof%C3%ADa
- THE BUILDING. Les Arts Valencia. URL: https://www.lesarts.com/en/thebuilding/
- Anisimov A.V. New forms of theatrical architecture. Academia. Architecture and construction. 2012, No.2, pp. 50-60
- Palau de les Arts Reina Sofía / Santiago Calatrava. ArchDaily, 20 Jan 2019. URL : https://www.archdaily.com/909673/palau-de-les-arts-reina-sofia-santiago-calatrava
Supplementary files
















