Evolution of the theater and renovation of the Samara elevator
- Authors: Samogorov V.1, Mustafina S.1
-
Affiliations:
- Samara State Technical University
- Issue: Vol 9, No 16 (2024)
- Pages: 6-27
- Section: URBAN STORIES
- URL: https://journals.eco-vector.com/2500-3437/article/view/640150
- DOI: https://doi.org/10.17673/IP.2024.9.16.1
- ID: 640150
Cite item
Full Text
Abstract
The evolution of theatrical spaces from antiquity to the present day is analyzed. The history of the construction of the Samara elevator is described, and the results of a study of the current state of it and the surrounding area are presented. The concept of organizing a vertical theater space in an existing building is revealed. A description is given of the proposal to transform the structural structure of the elevator and the architectural and planning organization of its internal space, taking into account adaptation to a new function - a vertical theater.
Full Text
Введение. Концепция театра вертикального типа в условиях реконструкции Самарского элеватора открывает новые перспективы для внедрения новых решений в развитие типологии театральных зданий, а также приспособления существующего здания под новую функцию с целью его сохранения. Проект демонстрирует не только возможность преобразования устаревшего производственного здания в современный культурный центр, но и предлагает новый подход к организации театральных представлений.
Цель проекта реновации Самарского элеватора заключалась в создании новой архитектурно-планировочной и пространственной структуры театра с применением современных технических решений. Это предопределило следующие задачи:
1. проследить эволюцию театральных пространств в истории театра;
2. изучить историю проектирования и строительства Самарского элеватора;
3. исследовать современное состояние здания элеватора;
4. исследовать возможность приспособления новой функции – театрального пространства, к существующему зданию;
5. разработать концепцию реорганизации существующего конструктивного решения и архитектурно-планировочной организации, с целью сохранения здания Самарского элеватора.
Эволюция типологии театральных пространств. Формирование архитектурно-планировочной структуры театральных зданий имеет богатую историю, начиная с древних амфитеатров и заканчивая современными синтетическими многофункциональными комплексами. Истоки процесса восходят к традициям грекоязычных предков. Упоминание о театре, возникшее из народных празднеств и религиозных церемоний, как о самобытном виде искусства, датируется 534 г. до нашей эры. Классический античный амфитеатр мог вместить жителей города или целой провинции. Развитие данного типа планировочной структуры зрелищного пространства длился около тысячелетия (VI в до н.э. – IV до н.э.) [1]
Греческий античный театр. Прообразом современного театра был амфитеатр Диониса в Афинах на южном склоне Акрополя (рис. 1). Он был назван в честь одноименного храма, напротив которого находился, неоднократно перестраиваясь [2].
Рис. 1. Театр Диониса в Афинах, Греция, V в. до н.э. (из книги Harmsworth History of the World, 1908) и его планировка (kannelura.ru)
Вначале греческий театр представлял собой простую круглую сценическую площадку у подножья горы («орхестра»), а концентрические зрительные трибуны располагались вокруг нее по склону. Мраморные троны знати часто возглавляли первый ряд «театрона», реже последний [1, 2]. С развитием драмы в V веке греки стали пристраивать сзади орхестры гримёрную актеров – «скену». Между скеной и орхестрой добавляли приподнятую сцену «проскениум» для игры главных героев, а по бокам «параскенионы», предназначенные для сценических атрибутов [1, 2]. Начиная с Аристофана, появляется самостоятельная сцена и вместе с ней первые механизмы для трансформации театрального действия в горизонтальном и вертикальном направлениях. Для улучшения акустики между сценой и театроном ставили медные сосуды, резонировавшие звук [1]. Помимо зрелищных площадок на открытом воздухе существовали и крытые пространства – одеоны. Одно из самых известных сооружений данного типа находилось в Афинах, на Востоке от театра Диониса. Одеон Герода Аттика дошел до наших дней практически в первозданном виде и служит главной концертной площадкой Афин (рис. 2). Дата строительства неизвестна, предположительно, между 160 и 174 гг. н. э. [2].
Рис. 2. Одеон Герода Аттика в Афинах, Греция, 160-174 гг. н.э. (poznamka.ru) и его план (yuliyakelidi.com)
Римский античный театр. До половины I века до н.э. пространства для зрелищ носили временный характер, и только к 55 г. до н.э. по инициативе Помпея, вернувшегося в Рим, был построен первый монументальный театр [1, 2, 3]. Площадка театра древнеримского периода походила на греческий прообраз, однако орхестра представляла собой полукруг и, ввиду отсутствия хора в римских пьесах, на орхестре рассаживались представители знати. Платформа была отделена от театрона небольшой перегородкой. Зрительные места в классической типологии располагались полукругом, однако последние ряды могли выходить за радиальные рамки и тогда они не огибали орхестру, а походили на прямые касательные туннели. Соответственно амфитеатр поддерживался фундаментом со сводами. Небольшое отличие было в логистике посетителей на театрон. Греки применяли систему подъема снизу-вверх со стороны орхестры. В римском театре, поскольку трибуны были основаны на искусственных сводах, зрители попадали на свои места по внутренним лестницам амфитеатра. Заслуга римлян заключалась в том, что они впервые попытались объединить зрительный зал и театральную сцену. Согласно трактату Витрувия «Десять книг об архитектуре», сцена должна вплотную примыкать к середине орхестры, но данная планировочная структура соблюдалась не всегда, немного отдаляя границу от этого норматива. Высота римской сцены была значительно ниже, чем греческой, что позволило улучшить видимость действия. В некоторых древнеримских театральных сооружениях уже тогда вводились понятия передней и задней сцены. Отделяющее их пространство предположительно служило для занавеса [1].
Рис. 3. План и разрез театра Марцелла, Рим, II в. до н.э. (eternal-city.ru)
Как пример одного из древнейших римских театров можно привести театр Марцелла в Риме (рис. 3). Сегодня сохранилась лишь часть руин двухэтажной аркады наружной полукруглой стены. Известно, что в XI в. эти фрагменты были приспособлены под замок-крепость (рис. 4) [2, 3].
Рис. 4. Приспособление театра Марцелла под крепость, Рим, IX в. и его сегодняшнее состояние
Одним из наиболее сохранившихся памятников античной римской архитектуры зрелищного назначения является театр в Оранже (рис. 5), который построен в I в. до н.э. по римской хронологии. Учитывая естественные условия, комплекс частично прислонен к склону скалистого холма.
Рис. 5. Театр в Оранже, Франция, I в. до н.э. (antique.totalarch.com) и в наши дни (france-voyage.com)
Театр по сей день функционирует и может вместить около 10000 человек (рис. 6) [2, 3, 4].
Рис. 6. Театр в Оранже, наши дни (tury.ru)
Театр Италии эпохи Возрождения. В начале XIV века в Италии в результате изменения социальных условий, стал пробуждаться интерес к античному прошлому. В эпоху гуманизма спектакли, которые прежде проходили на городских площадях, стали перемещаться в сады князей и духовенства, а затем – в роскошные бальные залы дворцов. Приспособленные бальные помещения имели прямоугольные очертания, вокруг которых располагались места для зрителей. Для улучшения обзора сцены залы начали приобретать полукруглую форму [3, 5]. Помимо театральных залов дворцов знати, существовали «академии», где изучались и ставились произведения античных драматургов. Эксперименты в постановке спектаклей в академии Юлия Помпония Лаэтуса легли в основу классических норм европейской сцены. Например, постановка пьесы Сенеки «Федра» в 1486 году вдохновила на создание перспективных декораций, аналогично которым в 1585 году в Виченце по проекту архитекторов А. Палладио и В. Скамоцци был построен театр «Олимпико» [2, 5]. Возрождение римского сценического фасада связано с постановкой спектакля Томмазо Ингирами, последователя академии Лаэтуса. Декорациями стал прототип римского сценического фасада за поскениумом, состоящий из полотна с пятью проемами, украшенными картинами и живописными изображениями скульптур [4]. Театр «Олимпико» во времена Возрождения был одним из лучших объектов зрелищного назначения, ярко характеризующий порыв гуманистических идеалов в архитектуру после долгого застоя (рис. 7).
Рис. 7. Театр «Олимпико» в Виченце, Италия, арх. Андреа Палладио и Винченцо Скамоцци, 1580 г.: общий вид и план (admagazine.ru)
Вытянутая форма полуэллипсиса в плане возникла не случайно – выделенное место под строительство было очень узким и следовать указаниям Витрувия было невозможно. Палладио пришлось отойти от формы классического театрального зала и сделать его вытянутым. Зрительный амфитеатр также следовал форме непрерывного концентрического полуэллипса. Выше последнего ряда трибун располагалась колоннада [2, 5]. Задняя часть сцены была ограничена стеной в виде фасада дворца (рис. 8).
Рис. 8. Задняя часть сцены театра «Олимпико» в Виченце, Италия, арх. Андреа Палладио и Винченцо Скамоцци, 1580 г. (wikimedia.org)
Первые ряды колонн выполнены в круглом очертании, вторые – полукругом, а третьи выглядят как плоские пилястры. Ниши со статуями подчеркивают ритм, в контраст к которым сделаны три перспективных проема-портала стены. Таким образом, получившееся решение является по сей день непревзойденным образцом оформления сценического фасада.
Появление оперы в Италии и, как следствие, широкий отклик на неё в массах, потребовали увеличить вместимость зрительного зала. Однако тонкость заключалась в создании пространства без чрезмерного удаления любителей театра от сцены. Так в конце XVI и в начале XVII в. возник новый, принципиально отличный ранговый или ярусный театр. Также театры эпохи барокко часто называют театрами «ложи, ямы и галереи», что отражало социальную иерархию, установленную в них. В типологии данного планировочного решения лежит дублирование боковых и задних скамей на балконах каждого последующего этажа. Так стало возможным увеличить зрительные места без существенной трансформации театрального пространства [2, 5]. Первый трехъярусный театр такого типа был построен в Венеции в 1639 году и получил название Сан Касьяно. Данный театр впервые сделал оперу доступной для широкой публики, а не только для придворных, однако, разделяя ранговое размещение лож посетителей [2].
Со временем стали проводиться эксперименты по усовершенствованию акустического качества зала. Было необходимо, чтобы голос певца и звук оркестра были слышны ясно и чисто. Отсюда возникла идея закругления прямоугольного зала, приобретая форму подковы. Впервые такую форму применил в 1675 году архитектор Карло Фонтана в проекте театра Tor di Nona в Риме (рис. 9, 10) [2, 5].
Рис. 9. План театра «Tor di Nona» в Риме, Италия, 1675 г., арх. Карло Фонтана (theatre-architecture.eu)
Рис. 10. Разрез 1-1 театра «Tor di Nona» в Риме, Италия, 1675 г., арх. Карло Фонтана (theatre-architecture.eu)
Появление ярусного театра совпало с преобразованием декораций – постоянные и неподвижные, они сменились на механизированные писанные. Стена сцены перестала быть актуальной и мастера архитектуры стали отказываться от нее, преобразовывая заднее сценическое пространство в перспективную площадку с карманами для кулис. Такое усовершенствование прежней типологии сценического пространства было вызвано усложнившимися требованиями к сценическим постановкам, привлечением большого количества участвующих в действии актеров и пышностью оформления. Самым монументальным и законченным театром своего времени считался театр Сан Карло в Неаполе (рис. 11), построенный в 1737 г. архитектором Бенедетто Альфиери. В 1816 г. театр пережил пожар, вследствие чего остались одни стены. В течение 9 месяцев Сан Карло был восстановлен архитектором А. Никколини и по сей день принимает посетителей [2, 5].
Рис. 11. Театр «Сан Карло» в Неаполе, Италия, 1737 г., арх. Бенедетто Альфиери, реконструкция: арх. Антонио Никколини: план (kannelura.ru) и зрительный зал (ayda.ru)
Театр Франции. Начало создания барочного театра приписывается Италии, в то время как завершение концепции театрального здания как архитектурного организма, произошло во Франции [2, 3, 5]. Апогеем французской архитектуры и устройства ярусного театра того времени стала Большая Парижская опера или Гранд опера, построенная Шарлем Гарнье в 1861 – 1875 г. (рис. 12). Одной из главных особенностей планировочной структуры анализируемого объекта стала связь различных театральных помещений с зрительным залом, то есть вне зависимости от занимаемого места, посетитель мог попасть во все пространства театра, включая парадные. Архитектура атриума и главной лестницы являлась наиболее богатой и роскошной частью всего театра. По словам архитектора, именно с этих мест начинается феерия оперы. Зрительный зал на 2000 человек имеет эллиптическую форму, а сцена превосходит размерами другие театры Европы. Глубокая арьерсцена получила функцию танцевального фойе, которое дополнительно создавала новые условия для театрального действия. Это пространство находилось за сценой и отделялось занавесом и железной перегородкой, которую при необходимости убирали. Изначально этим фойе могли пользоваться как артисты, так и статисты любого пола. В 1820 году певцы и артисты балета были разведены по разным помещениям, а начиная с 1875 года, в Танцевальном фойе могли появляться только артистки балетной труппы [2, 3, 5]. Театр Гарнье оказал огромное влияние на всю театральную архитектуру Европы следующей половины века.
Рис. 12. Театр «Гранд Опера», Париж, Франция, 1862 г., арх. Шарль Гарнье: план (wikimedia.org) и разрез (nikolai_endegor.livejournal.com)
Театр Германии. В начале XIX века облик театрального здания начинает меняться под воздействием новых идей и художественных принципов, характерных для периода процветания буржуазии. Появляются видоизменения в классическом ранговом театре, и, хотя трансформации не считаются значительными, они способствовали модернизации театра эпохи абсолютизма. Идеи функционализма начинают требовать от театра проявления его пространственной сущности и выделения ключевых компонентов – зрительской и сценической зон. К началу XX века стало ясно, что театр с ярусным расположением мест устарел и стал неактуальным [2, 5, 6].
Карл-Фридрих Шинкель был основоположником реформирования современного театра, предложив идеи, которые только спустя полвека стали реальностью. По мнению Шинкеля, сцена должна представлять собой широкую площадку – авансцену – в неподвижной раме просцениума, обозначающего обрамление картины всего театрального действия, которое разворачивается в неглубокой сцене, расположенной за просцениумом. Так он попытался соединить античный принцип неподвижной открытой сцены с глубинной (рис. 13) [2, 5, 6].
Рис. 13. План сцены по Шинкелю (tehne.com)
Амфитеатр по Шинкелю сильно отличался от античного классического полукруга и приобрел вид сравнительно узкого сегмента. Это объясняется тем, что условия видимости при глубокой сцене были иные, чем при широкой в античном театре. Шинкель первый учел эту особенность, положив начало «немецкому амфитеатру» (как называл данную структуру его последователь Литтман). Эта идея планировки была применена в ряде позднейших немецких театров. Идеи, заложенные Карлом-Фридрихом Шинкелем, получили полное признание лишь к концу XX века.
Начало двадцатого столетия для театральной архитектуры Германии во многом связано с именем архитектора Макса Литтмана. Именно ему впервые удалось полностью осуществить задумки, заложенные его учителем. В 1908 г. по проекту Литтмана был построен Мюнхенский художественный театр, который представлял новый прогрессивный этап в развитии театрального здания (рис. 14).
Рис. 14. Мюнхенский художественный театр, Мюнхен, Германия, 1908 г., арх. Макс Литтман: план и разрез (tehne.com)
Небольшой зрительный зал решен сплошным амфитеатром с эвакуационными проходами по бокам, выходы из которых разделены для каждого из трех рядов. Неглубокая сцена обрамлена порталом. Задняя стена сцены выкрашена одним цветом, на фоне которого должно разворачиваться действие. В глубокий просцениум ниже уровня зрительного зала помещен невидимый оркестр, который мог быть перекрыт в качестве дополнительного пространства игровой площадки – авансцены, для развития действия за пределами портальной арки. Также действие на игровых площадках могло развиваться постепенно, сменяя друг друга, для чего каждая из них была снабжена своим занавесом. Авторы хотели отойти от условности старой сцены и с помощью простейших средств добиться создания новых художественных образов. Таким образом, сцена не имела развитого колосникового устройства и находилась под одной крышей со зрительным залом [2, 5, 6].
С течением времени зрители жаждали новых зрелищ, воплощения революционных идей, поэтому режиссеры и архитекторы вели поиск новых сценографических приемов и планировочных структур театральных пространств. Впервые идея иммерсивного театра возникла у крупнейшего немецкого режиссера Эрвина Пискатора, новаторские замыслы которого нашли отклик в проекте театра архитектора Вальтера Гропиуса (рис. 15) [2, 5, 6].
Рис. 15. Концепция театра режиссера Э. Пискатора и архитектора В. Гропиуса, 1928 г. (elima.ru)
Концепция В. Гропиуса и Э. Пискатора заключалась в трансформации зального пространства. Гропиус считал, что архитектор обязан «сделать сценический инструмент настолько податливым и изменчивым, чтобы он никогда не ограничивал режиссера и давал возможность реализовать всевозможные художественные концепции». Проект театра сложился в 1928 г. Зал представлял собой овальную форму, сцена состояла из подвижных круглых платформ, которые могли вращаться вместе с декорациями. В зависимости от сценографических решений она имела возможность трансформироваться, меняя свое местоположение в зале. Данные подвижные площадки при необходимости могли использоваться под дополнительные зрительские места. Замену декораций осуществляли в трюмах, под трансформируемыми опускными площадками. В театре впервые должна была быть применена кинопроекция. Стены, по замыслу авторов, превращались в киноэкраны [2, 5, 6].
Советский театр. Разработка экспериментальных проектов советского времени в области массового синтетического театра началась со Всесоюзного конкурса оперно-драматического театра в городе Ростов-на-Дону в 1930 г. Первую премию получила работа Г.Б. и М.Г. Бархиных (рис. 16). В концепцию проекта были включены три основных блока: театральное ядро, концертный зал и вспомогательные помещения (клубы, кабинеты, репетиционные залы и т.д.) [5, 7].
Рис. 16. Концепция «оперно-драматического театра» в Ростове-на-Дону, 1930 г., арх. М.Г. и Г.Б. Бархины: перспектива и план (kannelura.ru)
Работы по созданию театра В.Э. Мейерхольда, проектированием которого занимались архитекторы М.Г. Бархин и С.Е. Вахтангов, оказали огромное влияние на строительство театральных зданий советского времени. Согласно их проекту, театр имел эллипсообразную форму, включавшую амфитеатр, с вписанным в нее высокотехнологичным механизированным подъемно-опускным полом сцены, сложную систему доставки декораций из подвала-трюма, стеклянный потолок с естественных освещением и многие другие инновации (рис. 17). Несмотря на это, задумки не были воплощены. В 1938 г. театр В.Э. Мейерхольда на этапе реализации был закрыт, в 1939 г. Мейерхольд арестован и затем расстрелян, а в 1940 г. театр был перестроен в концертный зал имени П.И. Чайковского, выполненный архитектором Д.Н. Чечулиным [5, 7].
Рис. 17. Окончательный проект и концепция Государственного театра им. Мейерхольда, 1933 г., арх. М.Г. Бархин и С.Е. Вахтангов: внешний вид, трансформации зала и восприятие действия (muzobozrenie.ru)
Список зданий театрального назначения середины 1930-х годов открывает Ростовский театр 1936 года, запроектированный архитекторами В.А. Щуко и В.Г. Гельфрейхом (рис. 18) [5]. В театре было предусмотрено два зрительных зала – на 2500 и 850 мест, детский сад-ясли, где зрители могли оставить своих детей на время просмотра спектакля [5]. В театре впервые применен принцип вращающегося диска сцены с подъемно-опускным механизмом перемещения платформы. Круг и кольцо сцены состояли из отдельных частей, каждая из которых могла перемещаться вверх или вниз, благодаря подъемникам, находящимися в трюме. Разъединение радиальных участков и их сцепление с подъемной площадкой происходило автоматизировано. Также перемещение декораций из трюма наверх осуществлялось в специальных карманах, после чего выкатывалось на игровую часть сцены. На авансцене по обеим ее сторонам расположены круги с кольцами меньшего размера. Они могли подниматься выше пола авансцены или опускаться в трюм [5].
Рис. 18. Театр им. Горького, Ростов-на Дону, арх. В.А. Щуко, В.Г. Гелъфрейх, 1930-1935 г.: внешний вид и план (arx.novosibdom.ru)
В 1931 г. началось строительство Новосибирского «синтетического панорамно-планетарного театра». Концепция глобальной трансформации пространства зала реализована в первоначальном проекте Дома Науки и Культуры в Новосибирске (рис. 19). Театр представлял новую концепцию технологического планетарно-панорамного синтетического театра в стиле конструктивизма. Он задумывался как объединение различных видов зрелищных пространств, таких как цирк, планетарий, кинотеатр, театр и бассейн для водных выступлений, в одном здании. По плану, зрительные места партера могли превратиться в арену цирка, перенося зрителей на просцениум. В свою очередь, арена могла быть преобразована в бассейн для аквапантомим. Зал театра вмещал до 3000 человек, из которых 2600 могли сидеть в амфитеатре, а остальные в трансформируемом партере. Уникальность колосниковой сцены заключалась в наличии специальных подъемников на нижнем уровне арьерсцены, с помощью которых во время представления могли появляться автомобиль, трактор, лошади. На главной сцене использовались съемные поворотные площадки для смены декораций. Куполообразная форма помещения позволяла проецировать киноленты на 360 градусов. Освещение предполагалось посредством покраски внутренних поверхностей белой светоотражающей краской, без люстр, бра и других осветительных приборов [8].
Рис. 19. «Дом Науки и Культуры» в Новосибирске, 1931 г., арх. А.З. Гринберг, М.И. Курилко, Т.Я. Бардт: общий вид и разрез (alltime.ru)
В середине XX века появляется новый вид планировочной структуры зала театрального здания. В качестве примера можно привести проект театра оперы и балета в Ереване архитектора А.И. Таманяна (рис. 20). Особенностью этого объекта считается объединение зимнего и летнего залов, обращенных друг к другу, на единой площадке, в следствии чего представление могло быть организовано как по отдельности, так и для двух пространств одновременно [5, 9].
Рис. 20. Театр «Оперы и Балета» в Ереване, Армения, 1939 г., арх. А.И. Таманян: общий вид, разрез (iz.ru)
Развитие театральных жанров способствовало популяризации небольших залов, под определенные виды представлений. Появление звукозаписи позволило свободно размещать оркестр и сцену. Новые направления в театральном искусстве, в том числе строительство детских театров, дали толчок к созданию детского музыкального театра имени Н. Сац (рис. 21). Здесь использовались современные технологии и планировочные решения для повышения универсальности пространства (например, трансформируемый, в зависимости от количества зрителей, малый зал). Появление синтетического театра стало важным шагом в развитии театральных зданий [10, 11].
Рис. 21. Детский музыкальный театр им. Н. Сац в Москве, 1979 г., арх. А.А. Великанов, В.Д. Красильников: общий вид, планы (culture.ru)
Трансформируемый зрительный зал и сцена – один путь создания универсального театра. Другой путь – строительство так называемых театральных комплексов, сочетающих под одной крышей различные сцены. Примером таких комплексов являются «Театральный островок» в городе Франкфурт-на-Майне, построенный в 1963 г. Он состоит из трех театральных сцен и нескольких больших репетиционных залов [12]. Оперная сцена оборудована поворотным кругом, занимающим площадь сценической коробки. В результате такого решения, механизмы платформы обеспечивают быструю смену больших декораций для четырех эпизодов. Также в большой поворотный круг вписан малый, с индивидуальными выжимными конструкциями. В случае необходимости этот круг может выдвигаться вперед на оркестровую яму. Драматический театральный блок может вместить до 911 человек. Боковые стены оснащены механизированными поворотными элементами, благодаря которым возможна трансформация пространства зрительного зала и сценической коробки. Трансформируемые перегородки, разворачиваясь к центру зала, по линии ряда партера, образуют портальную сцену, а в другом положении – беспортальную сцену. При втором варианте трансформации, объем зрительного зала сливается с объемом сцены в единое пространство. К главной сцене зала драматического искусства примыкают дополнительные две боковые и одна задняя сценические площадки. Специфика такой сцены состоит в стационарных накатных фурках и подъемно-опускных механизмах. Специально для камерной сцены были запроектированы точечные индивидуальные подъемы, рассредоточенные по всему пространству сцены. Переход к использованию объемных и диагональных композиций в оформлении спектаклей требовал разработки нового метода установки и изменения подвесных элементов декораций. Данная проблема здесь была решена благодаря однотросовым лебедкам тельферного типа, которые в последствии стали применять в других мировых объектах зрелищного назначения [12].
В течение десятилетий XXI в. архитектура театральных зданий удивляет своими новаторскими, смелыми и грандиозными решениями. Рассматривая современные театры можно отметить, что на мировых площадках стали популярны экспериментальные постановки, цель которых в максимальной коммуникации актера и зрителя. Данный вид театрализованного действия часто называют иммерсивным (от анг. Immersive - «создающий эффект присутствия, погружения»). Однако в театральной терминологии иногда употребляется словосочетание Site-specific («особенное, специфичное пространство»), желая подчеркнуть, что пространство спектакля становится мобильным и приобретает новый художественный статус.
Иммерсивный театр имеет несколько форм, в зависимости от способа взаимодействия. В первом случае, любое действие зрителя может повлиять на дальнейший ход спектакля. Во втором, более классическом, роль актера является приоритетной, однако отведены определенные постановкой моменты, где зрителю предоставляется возможность выполнить определенную функцию. Общая задача – вне зависимости от формы представленной постановки, вывести публику из зоны комфорта и пассивного наблюдения, дав ей роль активного участника. Первоначальная концепция иммерсивного театра заключается в задействовании всех органов чувств (слух, обоняние, зрение, осязание, вкус, чувство равновесия в пространстве) в процессе сценического представления. Так, например, чтобы раскрыть вкусовые рецепторы, в ходе спектакля зрителей угощали едой, а для того, чтобы заработало обоняние – распыляли различные ароматы.
Критики делят пространство такого театра на два типа: энвайронмент (от англ. environment – «окружающая среда») и променад (от фр. promenade – «прогулка»). В первом случае «тон» задает место проведения сценического действия, это могут быть замки, заводы, заброшенные или строящиеся объекты. Во втором случае в качестве сценического пространства чаще всего используют группу комнат, в которых публика может перемещаться хаотично. Различная среда помогает глубже вовлечь зрителя в процесс театрального действия, давая выбор для следующего сюжета.
История Самарского элеватора
Согласно историческим данным, уникальный образец Самарского элеватора был спроектирован сотрудниками института «Промзернопроект». Разрабатывали проект самарские архитекторы В.Д. Смирнов и Н. Дегтярев. Вертикальная форма элеватора была продиктована небольшой площадью под строительство, около мельницы Соколова (1906 г.). Согласно проекту, элеватор состоял из двух цилиндров, в которых располагались силосы, и нории между ними. Цилиндрические башни получили завершения в виде бетонных «корон» (рис. 22). В проект элеватора были внедрены передовые технологии советской инженерии и строительства. Примечательно то, что каждую из башен высотой 65 м возвели за 30 дней методом подъема скользящей опалубки, впервые применявшейся в Самаре. Уникальный объект исследования был полностью построен в течении двух лет, что являлось рекордным сроком при подобном строительстве. Это промышленное здание функционировало всего 20 лет, а сегодня уникальное сооружение полностью заброшено и разрушается.
Рис. 22. Один из первых вариантов элеватора в Самаре. Фото из семейного архива Смирновых
Концепция приспособления. Проектом предлагается сохранить существующее здание элеватора, изменив его функцию на новую – иммерсивный театр. В одной башне предлагается разместить «вертикальный театр», в другой – студии актерского мастерства (рис. 23, 24). В центральном блоке бывшей нории располагаются пассажирские и служебные лифты, а также общие холлы для посетителей. На кровле, в бывшем объеме для размещения транспортеров, предлагается разместить панорамный ресторан с видовой площадкой.
Рис. 23. Концепция приспособления. Блок №1 – школа актерского мастерства; блок №2 – иммерсивный «вертикальный» театр
Рис. 24. Разрез 1-1
Вход в здание осуществляется как со стороны улицы Князя Григория Засекина, так и со стороны реки Самары. Перепад высот относительно уровней входов составляет 3,1 м. На отметке 3,100 м фойе, административные помещение и выход на второй уровень этого же функционального назначения, гардероб, зона ожидания, санитарные узлы и технические помещения (рис. 25).
Рис. 25. План на отметке -3.100 (-1 этаж). Вход со стороны реки Самары.
Главный вход (с улицы Князя Григория Засекина) принят за отметку 0.000 (рис. 26, 27).
Рис. 26. План на отметке ±0.000 (1 этаж). Главный вход со стороны ул. Князя Григория Засекина
Рис. 27. Визуализация главного входа со стороны ул. Князя Григория Засекина
В основе реновации элеватора лежит концепция театра «вертикального» типа, который размещен в одном из цилиндрических объемов. Зрительный зал запроектирован в виде круглой платформы на 49 зрительских мест, которая может перемещаться по вертикали верх и вниз, а также вращаться вокруг оси на 360 градусов с помощью инженерных механических устройств (рис. 28).
Роль передней сцены играет площадка, организованная по периметру зрительного подиума, а задняя перспективная сцена, где могут размещаться декорации, организована в пустотах, образованных внутренними силосными ребрами (рис. 29, 30). Пространство театра и актерских студий разделено по вертикали на девять уровней.
Рис. 30. Визуализация блока «вертикального» театра и вид снизу на подвесную поднимающуюся люстру
Во втором объеме расположен комплекс театральных студий. Каждый последующий этаж равен одному сценическому жанру. Связующим звеном девяти этажей школы актерского мастерства является пандус и футуристический лифт (рис. 31). Студии могут посещать как театралы-любители, так и ученики школы. Одна из главных идей школы актерского мастерства – открытость и прозрачность, позволяющие посетителям воочию увидеть образовательный процесс и погрузиться в закулисный мир театра. В отличие от театрального блока, в этом цилиндре интерьер выполнен в светлых тонах. В качестве вертикальных коммуникаций применены незадымляемые лестницы типа Н2 и лифтовые блоки.
Рис. 31. Визуализации блока школы актерского мастерства
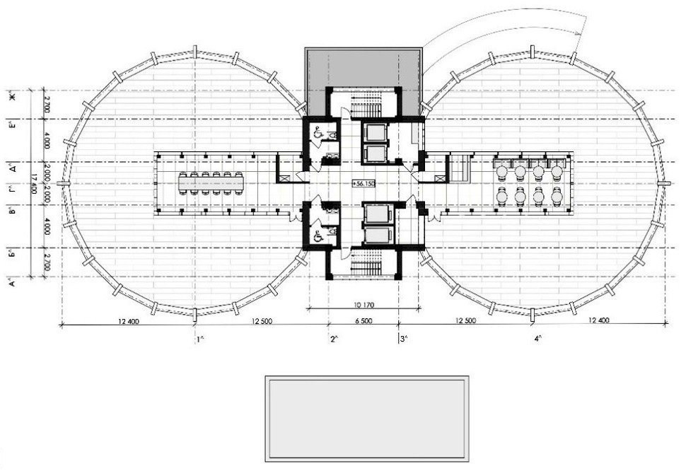
На кровле запроектирован панорамный ресторан с выходом на эксплуатируемую кровлю на отметке +56,150 м, на которой организована видовая площадка (рис. 32, 33). Ресторан является также местом проведения иммерсивных гастро-театральных представлений (рис. 34). Основная концепция гастро-представлений – связка кулинарных сетов с визуальной составляющей. Для отдельных блюд подобрана посуда под ту или иную тематику, которая транслируется в зале.
Рис. 32. План на отметке +56,150 м. (11 этаж). Ресторан
Рис. 34. Ресторан. Интерьеры для гастро-театральных представлений
На 10 этаже располагаются производственные помещения кухни (рис. 35). Для быстрой подачи блюд, предусмотрен лифтовой подъемник с кухни в техническую комнату официанта (11 этаж). Сочетание брутального интерьера с гастрономическими представлениями и захватывающим панорамным обзором, сделают этот ресторан настоящей достопримечательностью города Самары.
Рис. 35. План на отметке +50.150 (10 этаж). Кухня, поварской блок, технические помещения
Заключение. Развитие театральной архитектуры многогранно и циклично. С течением времени огромное количество факторов влияло на реализацию идей создания сценического пространства. Смена политического устройства, развитие сценических жанров, прогресс в области строительства и техники – все это диктовало свои требования к архитектуре и структурной основе «нового» театра, с целью воплотить самые смелые замыслы режиссера. В случае реализации, концепция экспериментального театра в условиях реновации существующего элеватора решает ряд актуальных городских проблем:
Во-первых, сохранение важного для Самары объекта – Самарского элеватора, сохраняет важную городскую доминату, ставшую неотъемлемым компонентом городской среды и образа города, в целом;
Во-вторых, здание, приобретая новую театральную функцию, через творческий подход постановки, способствует духовному развитию личности, расширению ее горизонтов, развитию креативного мышления;
В-третьих, данный проект сможет стать точкой притяжения, объединяющей людей посредством театрального искусства.
About the authors
Vitaly Samogorov
Samara State Technical University
Author for correspondence.
Email: filippov.vd@samgtu.ru
Russian Federation
Suriya Mustafina
Samara State Technical University
Email: filippov.vd@samgtu.ru
Russian Federation
References
- Bykov V.E. Architecture of open theaters. // State Ed. lit. by builds and architect., M. 1954. – 130 p.
- Barkhin G.B., Theater architecture. M., 1947 - p. 248.
- Kornfeld Y.A. Theaters. M., 1948. - p. 66
- Kozlinsky V.I. Artist and theater / V.I. Kozlinsky, E.P. Frese // Soviet artist. Moscow, 1975. – 240 p.
- Bazanov V. Theatrical buildings and structures: St. Petersburg Academy of Theater Arts. S.-Pb., 2007, - p. 103.
- Problems of architecture: Collection of materials. All-Union Academy of Architecture, volume II, book. II. 1937. - p.519
- Gnedovsky Yu.P. Architecture of the Soviet theater / Yu.P. Gnedovsky, S.V. Gnedovsky, Yu.D. Khripunov. – Moscow: Stroyizdat, 1986. – 400 p.
- Nevzgodin I.V. Constructivism in the architecture of Novosibirsk. // Novosibirsk: Publishing house NGAKhA, 2013. – 320 p.
- Karlik L.B. Karo Halabyan. – Yerevan: Publishing house. Hayastan, 1966. – 108 p.
- Gnedovsky Yu.P. A new type of theater. – Architecture of the USSR, 1973, No. 6. - p. 64.
- Anisimov. A.V. Ways of forming stage and visual space. – Stage equipment and technology, 1975, No. 2, p. 16-17.
- Immersive theater [Electronic resource]. URL: https://www.culture.ru/s/slovo-dnya/immersivnyi-teatr/ (access date: 12.05.2024)
Supplementary files






































