Veterinary clinics and animal shelters in the planning structure of cities. Experience of different countries
- Authors: Akhmedova E.1, Zaitseva S.1
-
Affiliations:
- Samara State Technical University
- Issue: Vol 9, No 16 (2024)
- Pages: 80-90
- Section: CITY WITHOUT THE CITY
- URL: https://journals.eco-vector.com/2500-3437/article/view/640814
- DOI: https://doi.org/10.17673/IP.2024.9.16.6
- ID: 640814
Cite item
Full Text
Abstract
The features of the placement of veterinary clinics and animal shelters in the planning structure of cities in different countries and various methods of spatial organization of veterinary space in their implemented design practice are considered.
Full Text
Проблема экологически благоприятного городского пространства в крупнейших городах является многосторонней. Одной из сторон этой проблемы следует признать острейшие трудности рационального размещения и гармоничного сосуществования в городском пространстве людей с их многообразными формами жизнедеятельности и городских животных. Это требует специальных организационных мероприятий по выполнению нормативов экологической безопасности. Самара – один из городов Российской Федерации, входящий в десятку крупнейших, в настоящее время нуждается в проектных разработках подобных решений на основе изучения современного международного и отечественного опыта.
Целью исследования является изучение принципов и приемов архитектурно- планировочной организации ветеринарных клиник и приютов для животных в городской среде.
Задачи решаются в следующем порядке:
1. Изучение основных принципов безопасного и гармоничного сосуществования людей и животных в крупнейших городах на лучших примерах международного опыта проектирования и реализации.
2. Рассмотрение типологии объектов, их архитектурно-планировочной структуры и особенности нормативного размещения в планировочной структуре городов.
3. Разработка теоретической модели «ГАРМОНИЯ» на примере системы ветеринарных клиник и приютов для животных в мегаполисе Большая Самара.
Следует отметить, что современные экологические концепции гармоничного сосуществования человека и животного в городской среде имеют достаточную историческую глубину, о чем свидетельствуют исторические документы, книги Джеймса Хэрриота, сравнительно недавно переведенные на русский язык. Современные идеи сосуществования людей и животных в городской среде рассмотрим на ряде примеров международного опыта развитых стран. В первую очередь это примеры из США, как самые проработанные и интересные, а затем примеры из других стран.
Мичиганская лига спасения животных Местоположение: г. Понтиак, штат Мичиган, США. Год постройки: 2020. Архитекторы: PLY+.
Проект здания Мичиганской лиги спасения животных (MARL) воплощает в себе основную цель создания «приюта другой породы» для улучшения самочувствия животных, находящихся на попечении (рис. 1).
Рис. 1. Мичиганская лига спасения животных [1]
Проект расположен на юго-востоке Мичигана, на углу ул. Фезерстоун и МЛК, на расстоянии 200 м от жилых домов. Приют запроектирован на неровном, топографически сложном участке, все помещения для ухода за животными сгруппированы на общем уровне, административные функции размещены под южным входом. Северное лечебное крыло совмещено с фундаментом бывшего убежища [1].
При проектировании были воплощены передовые методы ухода за животными в ключевых архитектурных элементах и пространственных организациях для решения организационных и экологических проблем (рис. 2). Отдельные питомники спроектированы по индивидуальному заказу и включают в себя по акустическим соображениям сплошное остекление и красочные перфорированные панели, которые обеспечивают необходимый воздушный поток и предоставляют животным выбор для взаимодействия с потенциальными усыновителями. Здоровье и хорошее самочувствие поддерживаются высокой скоростью обмена свежего воздуха и лучистым подогревом пола, который обеспечивает энергоэффективность и превосходный тепловой комфорт [1].
Рис. 2. Генеральный план, совмещённый с планом 1-го этажа и суперпозиция [1]
В удобных помещениях были спроектированы специальные «кондоминиумы», позволяющие кошкам свободно передвигаться и выбирать несколько положений для сидения (рис. 3). Детали облегчают уборку и сводят к минимуму неудобства. Организация кондоминиумов внутри комнат позволяет всем кошкам иметь вид из окон. Когда им разрешено свободно перемещаться по пространству, кошки могут перемещаться по ряду деревянных выступов, которые обеспечивают непрерывное движение по комнате, или по залитым солнцем местам для сна в южных окнах [1].
Рис. 3. Схема организации боксов для кошек и собак [1]
В сочетании этот интегрированный подход к дизайну приводит к высокому качеству жизни собак и кошек посредством спасения, медицинской помощи, социализации, поведенческой поддержки, краткосрочного и долгосрочного убежища, усыновления, а также образования и работы с общественностью [1].
Приют для животных в Палм-Спрингс Местоположение: парк Демут, Палм-Спрингс, штат Калифорния, США. Год постройки: 2012. Архитекторы: Swatt | Miers Architects
Приют для животных в Палм-Спрингс – это ультрасовременное заведение для содержания животных-компаньонов. Оно объединяет традиционные мотивы дизайна пустыни середины века с современными местами обитания и системами поддержки животных. Учреждение расположено на участке площадью 3 акра напротив городского парка Демут (рис. 4).
Рис. 4. Приют для животных в Палм-Спрингс [2]
План проекта является отражением желаемого оперативного потока людей и животных в учреждение и из него, организованного вокруг центрального сада для усыновления собак. Внешний дизайн отличается широким выступом крыши, ориентированным на горный хребет Сан-Хасинто, который одновременно объявляет и затеняет три главных общественных входа:
1. Главный вестибюль общественного усыновления;
2. Приемный вестибюль;
3. Образовательный центр.
Каждый из них выходит на активно используемый городской парк Демут. Эти входы служат следующим потребностям [2]:
1. Главный центр усыновления / бизнес-центр. Это место, где происходит усыновление, лицензирование и связанная с этим деловая деятельность.
2. Общественный приют расположен рядом со входом для приема бездомных и животных, которых сдали, чтобы снизить риск передачи болезни. Стойки регистрации у этих двух входов защищены изнутри, так что персонал может обслуживать любой вестибюль.
3. Вход в Центр дополнительного образования / классную комнату. Представляет собой многоцелевую комнату, ориентированную на сообщество. Дизайн размещает туалеты между классной комнатой и центром усыновления, что позволяет охранять остальную часть учреждения в нерабочее время, пока используются общественные программы и / или классы гуманного воспитания (рис. 5).
Рис. 5. Генеральный план, совмещённый с планом 1-го этажа [2]
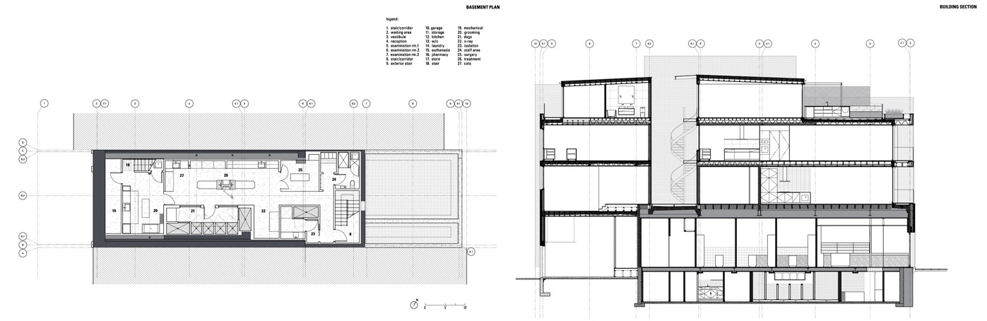
Ветеринарные специалисты Мемфиса Местоположение: г. Кордова, штат Теннесси, США. Год постройки: 2014. Архитекторы: archimania
Ветеринарные специалисты Мемфиса (MVS) – специализированная ветеринарная клиника, находящееся в торговом районе Кордовы. Непрерывное лечение 24 ч семь дней в неделю и уход за пациентами-животными создали программные потребности, которые очень похожи на потребности больницы для людей. Включены направления: терапия, хирургия, специализированные процедурные кабинеты, зоны восстановления и интенсивной терапии (рис. 6).
Рис. 6. Ветеринарные специалисты Мемфиса [3]
Форма здания была создана путем согласования ограничений участка с программой. Внутренние помещения для хирургии, специальных процедур и поддержки расположены вокруг основной лечебной зоны в центре клиники. Консольный вход и световые мониторы ориентированы на север, чтобы обеспечить оптимальное дневное освещение и ориентироваться на главную подъездную дорогу. Ландшафт ручья, который граничит с юго-западной частью участка, стал контрапунктом к массе здания. Внимание было уделено тому, как из внутренних помещений открывается вид на ручей и как можно создать пространство между линией деревьев у ручья и клиникой [3].
Объем здания разбит на две основные части: бетонное основание с рифленым металлом и заполнением витрин, а также стойкий к атмосферным воздействиям стальной «колпак», который подчеркивает треугольную форму и нависает над главным входом. В основании клиники гофрированные металлические панели используются в качестве контрапункта к стеклянным и бетонным панелям. Более темный цвет и тяжелая текстура гофрированных панелей позволяют им отличаться от более светлых и отражающих поверхностей бетона и стекла (рис. 7).
Рис. 7. Генеральный план, совмещённый с планом кровли и план 1-го этажа [3]
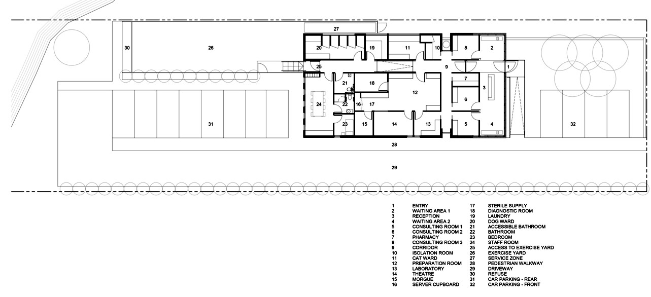
Ветеринарная клиника Сентидос Местоположение: г. Бенту Гонсалвеш, Бразилия. Год постройки: 2019. Архитекторы: Ocre arquitetura.
Проект ветеринарной клиники площадью около 190 м2 расположен в г. Бенту Гонсалвеш, в штате Риу-Гранди-ду-Сул в обычном спальном районе. Чтобы включить всю программу клиники проект был реализован так, чтобы занять участок до его боковых границ. Так были созданы внутренние сады, которые объединили рабочие помещения с растительностью снаружи, обеспечивая естественное освещение и вентиляцию через окна от пола до потолка (рис. 8).
Рис. 8. Ветеринарная клиника Сентидос [4]
Доступ в клинику осуществляется через боковой коридор, обозначенный наклонной плоскостью из открытых бетонных блоков. Бетон также виден в сборных конструкциях балок, колонн и закрывающих панелей. Из приемной есть доступ в смотровые кабинеты, которые расположены в передней части здания. Эти номера выходят окнами на улицу через главный фасад, который защищен вертикальным деревянным мостом, обеспечивающим безопасность и уединение. Дополнительный вход был спроектирован для доступа команды и имеет прямую связь закрытыми зонами клиники: хирургия и госпитализация [4].
Этот проект разрабатывался в течение 2018 г. с целью выполнения быстрой работы, с промышленными элементами и компонентами, разработанными командой архитекторов. Во время реализации в 2019 г. стратегии проектирования позволили свести к минимуму строительные работы на объекте. Это привело к рациональной, экономически устойчивой работе с низким уровнем отходов и большей точностью строительства (рис. 9).
Рис. 9. Фасады ветеринарной клиники Сентидос [4]
Ветеринарная клиника du Parc Местоположение: г. Монреаль, Квебек, Канада. Год постройки: 2018. Архитекторы: Thomas Balaban Architect
Многофункциональная реконструкция и расширение. Ветеринарная клиника du Parc (HVdP) совмещает в себе современную ветеринарную больницу, клинику неотложной помощи SPCA, четыре жилых блока в заброшенной фотостудии и поверх нее (рис. 10).
Рис. 10. Ветеринарная клиника du Parc [5]
Утилитарные материалы соответствуют эстетике района и специфическим потребностям клиники. Каменный фундамент, бетонные панели и керамическая плитка защищают нижнюю часть стен, которые должны быть устойчивы к повреждению животными, в то время как потолочные панели из молочного поликарбоната скрывают сложную механическую систему, открывающую лишь скромное графическое освещение (рис. 11).
Рис. 11. План подвального этажа и продольный разрез [5]
Технические помещения эффективно организованы вокруг центральной системы циркуляции, что обеспечивает просторную приемную, в которой животные и владельцы могут свободно перемещаться. Удобная мебель, изготовленная на заказ из кориана, а также организованные проблески через застекленные перегородки призваны снять беспокойство и разрушить традиционную формальность отношений врач / клиент / пациент [5].
Ветеринарная больница Уоллан Местоположение: Уоллан, Виктория, Австралия. Год постройки: 2016. Архитекторы: Crosshatch
Ветеринарная больница Уоллан в региональной Виктории — это эффективное и элегантное здание, которое успешно обновляет традиционную типологию ветеринарных больниц. Круглосуточное заведение, открытое семь дней в неделю, нуждалось в немедленном узнаваемом сильном присутствии на улице, но при этом должно было с уважением относиться к своему контексту. Больница расположена в частном секторе, в непосредственной близости от индивидуальных жилых коттеджей (рис. 12).
Рис. 12. Ветеринарная клиника Уоллан [6]
В резюме клиента содержался призыв к созданию ультрасовременного объекта, который с комфортом удовлетворял бы целому ряду программных требований, а также учитывал бы уникальные ограничения места. Решение состояло в том, чтобы поднять одноуровневое здание на рецессивном основании из каменной кладки и установить его подальше от улицы. При этом также были смягчены проблемы с наводнениями на сложном участке, который спускается к ручью в задней части здания (рис. 13).
Рис. 13. План 1-го этажа ветеринарной клиники Уоллан [6]
Стильная облицовка визуально объединяет здание, создавая единую целостную форму. Это отличительная черта объекта, подчеркивая его уникальность, придаёт проекту прочную связь с местом [6]. Ночью рейки смягчают внутреннее освещение, пропуская теплое свечение, которое создает эффект фонаря и объявляет больницу открытой. Эта инновационная стратегия поиска пути позволила отказаться от использования традиционных вывесок, чтобы не нарушать единообразный внешний вид формы. Рейки создают завесу, которая колеблется между прозрачной и сплошной, с видом на здание, который открывается и закрывается в зависимости от подхода посетителя. Это придает общему проекту неожиданное ощущение динамизма, редко встречающееся на объектах такого типа (рис. 14).
Рис. 14. Вид на ночные фасады с подсветкой [6]
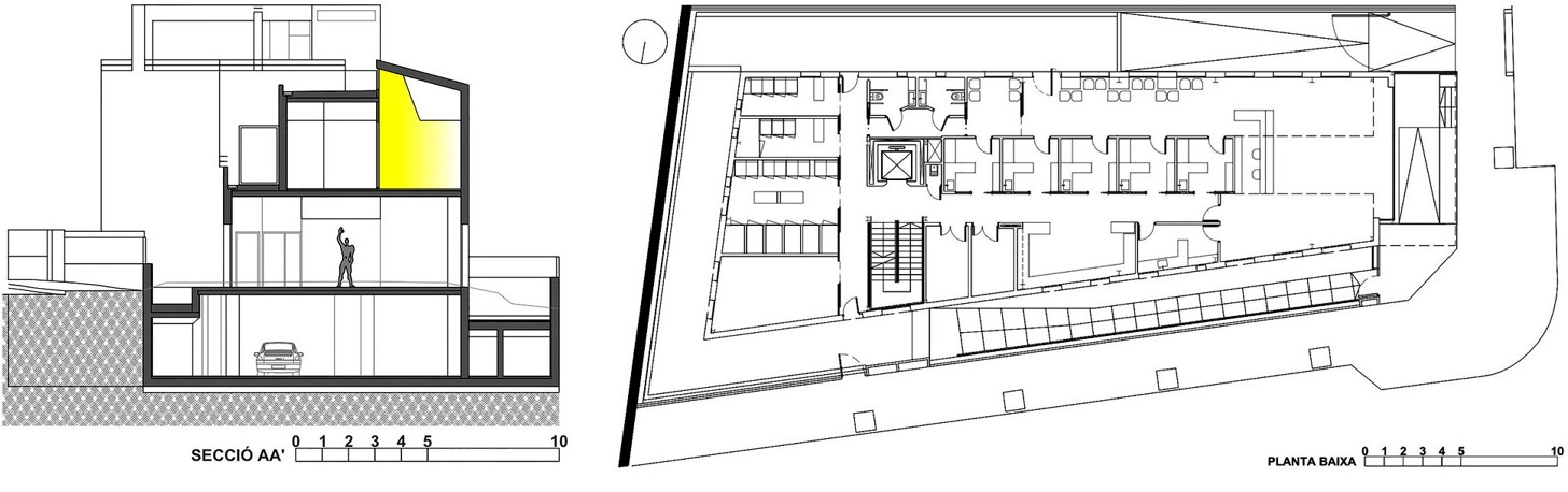
Ветеринарная клиника Canis Mallorca Местоположение: Пальма, Балеарские острова, Испания. Год постройки: 2014. Архитекторы: Estudi E. Torres Pujol
Здание расположено в промежутке между промышленным и жилым районами, примыкающим к заброшенной старой тюрьме, Участок имеет трапециевидную форму. Здание приспосабливается к нему, используя максимально допустимую площадь, как того требовал клиент. Его объемная архитектура представляет собой постоянный диалог с окружающей средой, сочетающий архитектуру «международного стиля» и традиционные сельские здания на Майорке (рис. 15).
Рис. 15. Ветеринарная клиника Canis Mallorca [7]
Конструкция здания состоит из металлических столбов и композитных плит. Стойки крепятся к внешнему замку, что позволяет использовать весь этаж, за исключением вертикальной коммуникационной зоны. Таким образом, внутреннее распределение не имеет структурных помех, что позволяет перераспределять пространства. Для выполнения ограждающей конструкции была использована система G.H.A.S., значительно улучшающая тепловые и механические характеристики здания [7]. Главный вход, расположенный под большим навесом, образован глухой стеклянной стеной, занимающей всю длину главного фасада. Единственное отверстие в этом фасаде указывает на вход, позволяя свету проникать в приемную. Композиция остальных трёх фасадов была спроектирована с учетом требований к освещению и вентиляции в каждом из помещений (рис. 16).
Рис. 16. Поперечный разрез и план 1-го этажа [7]
Одной из целей проекта стало обеспечение операционных кабинетов дневным светом. Для её достижения в помещениях были запроектированы мансардные окна, ориентированные на север, что позволяет проникать рассеянному свету, не беспокоя и не мешая повседневной работе. Стены здания на первом этаже выложены плиткой, создавая эффект основы, с другой текстурой и яркостью. Это также облегчает плановое техническое обслуживание [7].
Выводы
Подводя итоги, можно высказать следующие соображения. Проанализировав мировой опыт проектирования ветеринарных клиник и приютов для животных, можно сказать, что приведённые примеры содержат рациональные архитектурно-планировочные решения размещения в городской среде; имеют оптимальные функциональные программы взаимоположения помещений лечебного, жилого, хозяйственно- обеспечивающего и административного назначения; из них ряд примеров содержат приемы рациональной организации интерьеров помещений лечебного и жилого назначения, обеспечивая высокое качество жизни животных.
About the authors
Elena Akhmedova
Samara State Technical University
Author for correspondence.
Email: filippov.vd@samgtu.ru
Russian Federation
Sofia Zaitseva
Samara State Technical University
Email: filippov.vd@samgtu.ru
Russian Federation
References
- Paula Pintos. Michigan Animal Rescue League / PLY+ URL: https://www.archdaily.com/987699/michigan-animal-rescue-league-ply-plus?ad_source=search &ad_medium=projects_tab.
- ArchDaily. Palm Springs Animal Care Facility / Swatt | Miers Architects URL: https://www.archdaily.com/237233/palm-springs-animal-care-facility-swatt-miers-architects?ad_ source=search&ad_medium=projects_tab.
- ArchDaily. Memphis Veterinary Specialists / archimania URL: https://www.archdaily.com/233095/memphis-veterinary-specialists-archimania?ad_source= search&ad_medium=projects_tab.
- Matheus Pereira. Sentidos Veterinary Clinic / OCRE arquitetura URL: https://www.archdaily.com/944745/sentidos-veterinary-clinic-ocre-arquitetura?ad_source= search&ad_medium=projects_tab.
- Fernanda Castro. Hôpital Vétérinaire du Parc / Thomas Balaban Architect URL: https://www.archdaily.com/906529/hopital-veterinaire-du-parc-thomas-balaban-architect?ad_source=search&ad_medium=projects_tab.
- ArchDaily. Wallan Veterinary Hospital / Crosshatch URL: https://www.archdaily.com/876109/wallan-veterinary-hospital-crosshatch?ad_source=search &ad_medium=projects_tab.
- ArchDaily. Veterinary Hospital Canis Mallorca / Estudi E. Torres Pujol URL: https://www.archdaily.com/593102/veterinary-hospital-canis-mallorca-estudio-torres-pujol?ad_ source=search&ad_medium=projects_tab.
Supplementary files



















