Индукционная система для подогрева крупногабаритных колец перед раскаткой
- Авторы: Данилушкин А.И.1, Колпаков Д.В.1, Штукатуров Н.Р.1
-
Учреждения:
- Самарский государственный технический университет
- Выпуск: Том 31, № 1 (2023)
- Страницы: 76-90
- Раздел: Энергетика и электротехника
- URL: https://journals.eco-vector.com/1991-8542/article/view/375339
- DOI: https://doi.org/10.14498/tech.2023.1.6
- ID: 375339
Цитировать
Полный текст
Аннотация
Рассматриваются вопросы проектирования индукционной системы для нагрева крупногабаритных полых цилиндрических заготовок перед раскаткой. Отмечены специфические особенности процесса нагрева заготовок на установке, встроенной в технологическую линию обработки. Показано, что эффективность процесса нагрева крупногабаритных стальных заготовок повышается при использовании системой индукторов с применением теплового экрана. Выполнено исследование процесса подогрева заготовок с учетом нелинейной зависимости физических характеристик металла нагреваемых заготовок от изменяющейся в процессе нагрева температуры. Расчет параметров индукционной системы проводится на основе двумерной модели. Геометрические параметры кольцевой заготовки обусловили значительную неравномерность распределения плотности тока по аксиальной координате заготовки из-за сильно выраженных краевых эффектов. Представлены результаты численного расчета электромагнитных и тепловых полей при различной вариации конструкции индукционной системы. Для обоснования и выбора конструкции индукционной системы, обеспечивающей нагрев кольца за время, обусловленное темпом работы деформирующего оборудования, произведен ряд расчетов, включающих три варианта: нагрев внешним цилиндрическим индуктором; нагрев двумя индукторами: нагрев системой индукторов с тепловым экраном. Анализ эффективности исследуемых вариантов основан на многократном уточнении результатов в процессе итерационного проектирования. Приведены результаты расчета температурного распределения в заготовке в процессе нагрева. Результаты проведенных исследований могут быть использованы для разработки конструктивных и режимных параметров системы индукционного нагрева колец в линии раскатки.
Полный текст
Технологический процесс производства колес и бандажей для железнодорожного состава включает в себя основной нагрев заготовок до температуры 1220÷1260 °С и последующий комплекс операций по осадке и обжатию на прессах, прошивке отверстий. Перечисленные операции осуществляются на различных устройствах с промежуточной транспортировкой заготовки от одного устройства к другому. В процессе перечисленных операций имеют место значительные тепловые потери с поверхности заготовки. В итоге заготовка подается к заключительной операции – к раскаточному стану – с температурой, недостаточной для последующей раскатки. При температуре раскатки 1050÷1070 °С заготовка подходит к раскаточной машине с температурой 950÷1020 °С. В целях повышения качества изделий, снижения брака и повышения срока межремонтного периода перед подачей заготовки к раскаточной машине необходим промежуточный подогрев заготовки. Так как время для подогрева заготовки ограничено и определяется производительностью линии раскатки, для нагрева необходим нагреватель, обеспечивающий быстрый нагрев. Такую задачу можно реализовать с помощью индукционной нагревательной установки. Применение индукционного метода нагрева обеспечивает высокое быстродействие, обусловленное самим принципом работы. Кроме того, индукционный нагреватель представляет собой компактное устройство, которое можно встроить непосредственно в линию раскатки [1–3].
Кольцевые заготовки поступают по рольгангу к индукционной установке, которая состоит из двух цилиндрических индукторов, механизма перемещения заготовки в зону нагрева и механизма перемещения индукторов.
Для расчета параметров индукционной системы в работе используется математическая модель процесса индукционного нагрева металла в виде системы дифференциальных уравнений Максвелла и Фурье [4–6] соответственно для электромагнитного и теплового полей. Характер электромагнитной и тепловой задач, даже при условии постоянства коэффициентов исходных уравнений, существенно зависит от граничных условий, которые в общем случае являются нелинейными [7–9]. При разработке и исследовании индукционной системы применяется конечно-элементная модель расчета электромагнитных устройств, позволяющая учесть основные нелинейности процесса. Численный расчет электромагнитных и тепловых полей в системе «индуктор – металл» производится в программном комплексе ELCUT [11].
В табл. 1 приведены исходные данные для расчета.
Таблица 1. Исходные данные для расчета
Внешний диаметр кольца , м | Внутренний диаметр кольца , м | Высота кольца, м | Коэффициент теплопроводности, Вт/м·ºС | Коэффициент теплоемкости, Дж/кг·ºС | Коэффициент теплоотдачи с поверхностей, Вт/м2·ºС | Нагрев, град |
0,845 | 0,25 | 0,145 | 26 | 600 | 66,5 | 950–1260 |
Реализация предлагаемой конструкции ИНУ требует последовательного решения ряда задач, связанных с исследованием электромагнитных и тепловых полей при индукционном нагреве заготовок в условиях нелинейностей, обусловленных зависимостью электрофизических характеристик металла от температуры. Кроме того, при проектировании конструкции индукционного нагревателя необходимо учитывать значительное количество конструктивных параметров, которые влияют как на условия согласования индукционного нагревателя с системой электроснабжения, так и на эффективность всего процесса нагрева металла.
Особенностью расчета параметров индукционных нагревателей являются сложный характер взаимосвязанных электро- и теплофизических процессов, ярко выраженная неравномерность пространственного распределения внутренних источников тепла, индуцируемых электромагнитным полем индуктора, зависимость мощности внутреннего тепловыделения от температуры нагреваемых заготовок. В связи с этим для разработки методики расчета индукционной системы, оптимизации конструктивных и режимных параметров необходимо иметь соответствующую математическую модель, адекватно описывающую процесс нагрева с учетом влияния на параметры нагревателя нелинейной зависимости удельного сопротивления, удельной теплоемкости от температуры в процессе нагрева.
Исходная электромагнитная задача может быть выражена через векторный потенциал общим уравнением Пуассона в двумерной осесимметричной области [12–14]
, (1)
где и – радиальная и осевая координаты соответственно; A – векторный магнитный потенциал; – абсолютная магнитная проницаемость среды; – удельная электрическая проводимость.
Учитывая осевую симметрию и квазистационарность исследуемого поля, уравнение (1) можно представить для комплексной амплитуды векторного потенциала в виде
,
где – циклическая частота питающего тока.
В качестве граничных условий приняты наиболее общие условия – равенство нулю векторного потенциала на границе расчетной области, находящейся в бесконечности.
В реальной ситуации граница может быть достаточно удалена от источников тока, где магнитная энергия поля действительно спадает практически до нуля. В плоскостях геометрической симметрии принимается перпендикулярность линий потока электромагнитного поля этим плоскостям
,
где – удаленная граница области; – граница плоскостей симметрии.
В целях получения приемлемой математической модели процесса индукционного нагрева принимаются некоторые допущения, которые значительно упрощают процедуру расчета и обеспечивают удовлетворительную точность результатов [15–18].
Рассматривается двумерная осесимметричная область, где индукция В и напряженность Н магнитного поля имеют две составляющие – по радиусу и по длине заготовки, а плотность тока индуцированных источников, магнитный векторный потенциал и напряженность электрического поля направлены строго по касательным к окружностям с центром на оси индукционной системы.
- Поле принимается квазистационарным, относительно низкая частота внешнего тока ( Гц) позволяет пренебречь токами смещения по сравнению с токами проводимости в металле.
- Рассматривается двумерная осесимметричная область, где индукция В и напряженность Н магнитного поля имеют две составляющие – по радиусу и по длине заготовки, а плотность тока индуцированных источников, магнитный векторный потенциал и напряженность электрического поля направлены строго по касательным к окружностям с центром на оси индукционной системы.
- Не учитываются потери на гистерезис при нагреве в силу их незначительности по сравнению с потерями от вихревых токов.
Принятые допущения позволяют осуществить раздельное решение электромагнитной и тепловой задач.
В результате расчета определяются приближенные значения функции распределения внутренних источников тепла по радиальной и аксиальной координатам.
Характер электромагнитной и тепловой задач даже при условии постоянства коэффициентов исходных уравнений существенно зависит от граничных условий, которые в общем случае являются нелинейными.
Для проектирования индуктора используется конечно-элементная модель расчета электромагнитных устройств, позволяющая учесть все сложности формы нагреваемого тела и индуктора. Численный расчет электромагнитных и тепловых полей в системе «индуктор – металл» производится в программном комплексе ELCUT.
Геометрическая модель для решения электромагнитной задачи с внешним индуктором представлена на рис. 1.
Рис. 1. Геометрическая модель для расчета электромагнитных источников с внешним индуктором: 1 – витки индуктора; 2 – сечение кольца
Результаты решения электромагнитной задачи при нагреве внешним индуктором приведены ниже. На рис. 2 приведена диаграмма распределения объемной мощности тепловыделения. На рис. 3 приведена диаграмма распределения плотности тока по аксиальной координате на поверхности заготовки.
Рис. 2. Диаграмма распределения объемной мощности тепловыделения по радиусу заготовки
Рис. 3. Диаграмма распределения плотности тока по аксиальной координате
Значительная неравномерность распределения плотности тока по аксиальной координате заготовки обусловлена краевыми эффектами. Как следует из результатов расчета, удельная мощность источников тепла распределена существенно неравномерно, основная часть тепла выделяется примерно на 1/3 расстояния от поверхности заготовки. Основная часть металла заготовки от боковой поверхности к центру нагревается за счет теплопроводности. Это приводит к значительному увеличению времени нагрева, превышающему время раскатки кольца.
Для выбора и расчета оптимальной конструкции индукционной системы, обеспечивающей нагрев кольца за время, обусловленное темпом работы деформирующего оборудования, произведен ряд расчетов, включающих три варианта:
- Расчеты электромагнитных и тепловых полей при нагреве внешним цилиндрическим индуктором.
- Расчеты электромагнитных и тепловых полей при нагреве двумя индукторами: внешним цилиндрическим индуктором и внутренним индуктором.
- Расчеты электромагнитных и тепловых полей в условиях, когда для снижения тепловых потерь с торцевой поверхности заготовки и сокращения времени нагрева верхняя торцевая поверхность заготовки дополнительно снабжена тепловым экраном.
На рис. 4 представлена геометрическая модель системы «внутренний индуктор – металл».
Рис. 4. Электромагнитная задача. Геометрическая модель: 1 – заготовка; 2 – витки внутреннего индуктора
Результаты исследования электромагнитных процессов в системе «внутренний индуктор – металл» приведены на рис. 5 и 6.
Рис. 5. Диаграмма распределения удельной мощности тепловыделения
Рис. 6. Диаграмма распределения плотности тока по высоте заготовки
Определение температурных полей нагреваемого кольца сводится к решению уравнения теплопроводности Фурье [5, 6] с известной функцией распределения внутренних источников тепла, найденной в результате решения электромагнитной задачи.
Для решения тепловой задачи с учетом реальных режимов теплообмена с окружающей средой в качестве общей исходной модели температурного поля принято двумерное нестационарное уравнение теплопроводности для полого цилиндра с радиальной и продольной координатами вида [13, 14]
, ,
с начальными и граничными условиями
;
;
;
.
Здесь – температурное распределение в металле заготовки и температура окружающей среды; – соответственно удельные теплоемкость и плотность металла, коэффициенты теплопроводности, теплообмена и черноты поверхности излучения; – соответственно функция распределения плотности теплового потока и удельная мощность источников внутреннего тепловыделения на стадии индукционного нагрева перед раскаткой.
В ряде работ [7, 8, 10, 14, 15, 18] показано, что функции можно принять постоянными при вычислении температурных распределений в рабочем диапазоне температур. Так, замена температурных зависимостей их осредненными значениями приводит к определению температурных перепадов с погрешностью 2%, а температурных распределений – 0,7 %. Вследствие незначительного влияния вариации указанных параметров на выходные координаты объекта математическая модель объекта может быть принята линейной с постоянными коэффициентами.
Алгоритм расчета электротепловых процессов в модели при известном начальном распределении температур заключается в следующем:
- Исходя из температурного поля загрузки находится удельное сопротивление каждого элемента дискретизации области загрузки.
- Проводится расчет электромагнитного поля.
- В интерполяционном блоке происходит формирование массива внутренних источников теплоты для решения тепловой задачи из массива, найденного после решения электрической задачи. Если элементы их дискретизации одинаковы в обеих задачах, то массивы их внутренних источников теплоты совпадают.
- Находится температурное поле на следующем временном слое, определяемом шагом по времени t.
- Если критерии окончания процесса нагрева не удовлетворены, то происходит переход к п. 1.
Выбор шага t по времени определяется требуемой точностью расчета. В то же время при фиксированном шаге точность определения температурного поля зависит от свойств схемы решения и от того, насколько сильно изменились внутренние источники теплоты за время t. Если источники меняются слабо, то на выбор шага по времени оказывает влияние только первый фактор.
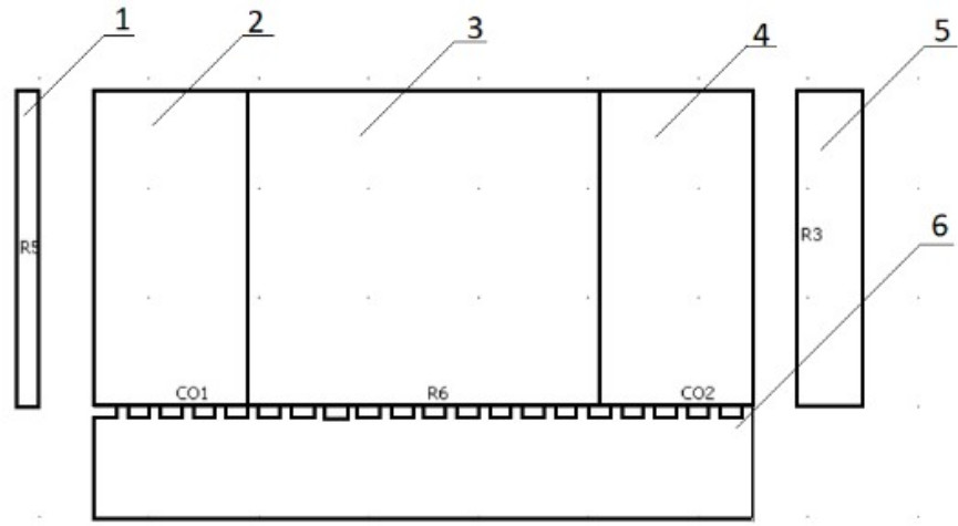
Геометрическая модель для решения тепловой задачи представлена на рис. 7. На схеме: 1 – футеровка внутреннего индуктора; 2, 4 – внутренняя и внешняя области тепловыделения в кольце; 3 – часть сечения кольца без источников тепла; 5 – футеровка внешнего индуктора; 6 – площадка для установки кольца. Основание, на которое устанавливается кольцо, выполнено из жаропрочного теплоизоляционного материала. В основание вмонтированы направляющие из нержавеющей стали.
Рис. 7. Геометрическая модель для тепловой задачи: 1 – футеровка внутреннего индуктора; 2, 4 – внутренняя и внешняя области тепловыделения в заготовке; 3 – часть сечения заготовки без источников тепла; 5 – футеровка внешнего индуктора; 6 – площадка для установки кольца
Температурное распределение по радиальной координате на торцевой поверхности кольца в момент выхода температуры внешней поверхности на предельно допустимый уровень представлено на рис. 8.
Рис. 8. График распределения температуры по радиальной координате на торцевой поверхности заготовки
Как следует из анализа температурного распределения, применение внутреннего индуктора не позволяет обеспечить необходимую равномерность температурного распределения по радиальной координате. Основные источники тепла создаются внешним индуктором; нагрев источниками, создаваемыми внутренним индуктором, незначителен, поэтому сечение кольца нагревается только с внешней боковой поверхности. Полученное температурное распределение не удовлетворяет технологическим требованиям.
Для того чтобы получить требуемое по технологии распределение температуры по всему объему кольца, необходимо ввести второй интервал нагрева, в течение которого температура внешней поверхности поддерживается на постоянном, предельно допустимом уровне. Полученное температурное распределение удовлетворяет технологическим требованиям. Перепад температуры составляет 90 °С. Однако при этом время нагрева при максимальной мощности индуктора составляет 56 мин и оказывается значительно большим, чем это обусловлено темпом работы линии раскатки.
Существенное влияние на длительность процесса нагрева оказывает величина тепловых потерь с поверхности кольца. Для снижения тепловых потерь и уменьшения времени нагрева используется тепловой экран, установленный над верхней торцевой поверхностью кольца (рис. 9).
Рис. 9. График распределения температуры на торцевой поверхности заготовки
На рис. 10 приведены результаты расчета индукционной системы при нагреве двумя индукторами с использованием экрана. Здесь график 1 – температура на торцевой поверхности в точке с радиальной координатой R, соответствующей внешнему радиусу кольца; график 2 – температура в точке с координатами 0,75 радиуса кольца; график 3 – температура на торцевой поверхности в точке с радиальной координатой, соответствующей внутреннему радиусу кольца.
Рис. 10. Графики температуры в контролируемых точках на торцевой поверхности в процессе нагрева
В результате применения экрана перепад температуры в конце нагрева составил 90 °С, что удовлетворяет технологическим требованиям. Одновременно время нагрева сократилось до 19 мин, что соответствует темпу работы деформирующего оборудования.
Результаты расчета индукционной системы при нагреве двумя индукторами с использованием экрана приведены в табл. 2.
Таблица 2. Результаты расчета индукционной системы
Параметры внешнего индуктора | |||||||||
Размеры трубки, мм | Число витков | Высота индуктора, мм | Зазор между индуктором и кольцом, мм | Ток в индукторе, А | Напряжение на индукторе, В | Мощность, выделяемая в заготовке, Вт | Мощность, подводимая к индуктору, Вт | к.п.д, % |
|
30×36 | 5 | 150 | 40 | 8000 | 330 | 63000 | 86000 | 73 | 0,15 |
Параметры внутреннего индуктора | |||||||||
22×16 | 10 | 230 | 50 | 8000 | 320 | 20383 | 58340 | 35 | 0,22 |
Заключение
Разработаны конечно-элементная модель и алгоритм расчета внутренних источников тепла при нагреве крупногабаритных колец цилиндрическими индукторами. Показано, что нагрев одним внешним индуктором не дает требуемого эффекта. Нагрев двумя индукторами – внешним и внутренним – сокращает время нагрева, но ограничения, накладываемые на параметры внутреннего индуктора геометрическими размерами, низкие энергетические характеристики внутреннего индуктора и наличие значительных тепловых потерь с торцевой поверхности кольца хотя и уменьшают время нагрева, но не позволяют получить требуемое температурное распределение по объему кольца за ограниченное процессом раскатки время. Желаемый эффект получен при совместном использовании системы индукторов и применении тепловых экранов с торцевой поверхности кольца. Разработана экономичная программа расчета системы индукторов с учетом тепловых экранов, обеспечивающих требуемое температурное распределение за заданное время. Предложенная модель используется для проектирования конструкции индукционной системы, реализующей распределение источников внутреннего тепловыделения по радиальной координате из условия достижения требуемого конечного состояния объекта. На основании проведенных исследований определены основные параметры индукционной системы с тепловым экраном, обеспечивающей заданное температурное распределение за ограниченное технологическим процессом раскатки время.
Об авторах
Александр Иванович Данилушкин
Самарский государственный технический университет
Email: aidanilushkin@mail.ru
доктор технических наук, профессор, профессор кафедры электроснабжения промышленных предприятий
Россия, 443100, г. Самара, ул. Молодогвардейская, 244Дмитрий Викторович Колпаков
Самарский государственный технический университет
Email: sward63rus@mail.ru
аспирант кафедры электроснабжения промышленных предприятий
Россия, 443100, г. Самара, ул. Молодогвардейская, 244Николай Романович Штукатуров
Самарский государственный технический университет
Автор, ответственный за переписку.
Email: vip.ue98@mail.ru
ORCID iD: 0009-0004-4455-546X
SPIN-код: 5444-4142
ResearcherId: IAN-0840-2023
аспирант кафедры электроснабжения промышленных предприятий
Россия, 443100, г. Самара, ул. Молодогвардейская, 244Список литературы
- Безручко И. И. Индукционный нагрев для объемной штамповки. Л.: Машиностроение. Ленингр. отд-ние, 1987. 127 с.
- Головин Г.Ф., Зимин Н.В. Технология термической обработки металлов с применением индукционного нагрева. Л.: Машиностроение. Ленингр. отд-ние, 1990. 87 с.
- Слухоцкий А.Е., Рыскин С.Е. Индукторы для индукционного нагрева. Л.: Энергия, 1974. 264 с.
- Вайнберг А.М. Индукционные плавильные печи. М.: Энергия, 1967. 416 с.
- Карташов Э.М. Аналитические методы в теории теплопроводности твердых тел. М.: Высшая школа, 2001. 550 с.
- Лыков А.В. Тепломассообмен. М.: Энергия, 1978. 480 с.
- Демидович В.Б., Чмиленко Ф.В., Ситько П.А. Моделирование и оптимизация индукционных нагревателей мерных заготовок в кузнечном производстве // Индукционный нагрев. 2013. № 2 (24). С. 15–17.
- Немков В.С., Демидович В.Б. Теория и расчет устройств индукционного нагрева. Л.: Энергоатомиздат, 1988. 280 с.
- Rudnev V. Handbook of Induction Heating. Second Edition. CRC Press. Taylor Francis Group. Boca Raton. London New York, 2017. 657 p.
- Демидович В.Б., Никитин Б.М., Иванов В.Н., Червинский В.Н., Баранкова И.И. Актуальные энергосберегающие технологии индукционного нагрева в металлургии // Индукционный нагрев. 2008. № 4. C. 20–26.
- ELCUT. Моделирование двумерных полей методом конечных элементов. Руководство пользователя. Версия 5.9. СПб: Производственный кооператив ТОР, 2009.
- Турбин В.В. Численное моделирование процесса проходного индукционного нагрева металла перед пластической деформацией // Новая наука: проблемы и перспективы. 2017. № 1–2. С. 178–180.
- Базаров А.А. Моделирование процесса теплопроводности для задач синтеза систем управления в среде MATLAB // Вестник Самарского государственного технического университета. Серия: Технические науки. 2005. Вып. 33. С. 7–11.
- Данилушкин А.И., Кожемякин А.В., Мостовой А.П. Исследование режима нагрева ферромагнитных заготовок в двухчастотном индукционном нагревателе дискретно-непрерывного действия // Вестник Самарского государственного технического университета. Серия: Технические науки. 2013. Вып. 3 (72). С. 111–116.
- Демидович В.Б., Чмиленко Ф.В., Ситько П.А. Моделирование и оптимизация индукционных нагревателей мерных заготовок в кузнечном производстве // Индукционный нагрев. 2013. Вып. 2 (24). С. 15–17.
- Drobenko B., Vankevych P., Ryzhov Y., Yakovlev M. Rational approaches to high temperature induction heating // International Journal of Engineering Science. 2017. V. 117. P. 34–50.
- Кувалдин А.Б., Лепешкин А.Р. Исследования теплового и термонапряженного состояния цилиндрических заготовок при скоростном индукционном нагреве // Индукционный нагрев. 2008. № 2. С. 4–13.
- Базаров А.А., Данилушкин А.И., Данилушкин В.А. Комплексное моделирование и управление процессом непрерывного индукционного нагрева ферромагнитных заготовок // Вестник Самарского государственного технического университета. Серия: Технические наукию. 2016. Вып. 2 (50). С. 128–139.
Дополнительные файлы













