СОВРЕМЕННЫЕ ТЕНДЕНЦИИ В ПРОЕКТИРОВАНИИ КОЛИВИНГОВ
- Авторы: Кузнецова А.А.1, Носов С.Д.1
-
Учреждения:
- Самарский государственный технический университет
- Выпуск: Том 6, № 12 (2021)
- Страницы: 42-47
- Раздел: ЧЕЛОВЕК И ГОРОД
- URL: https://journals.eco-vector.com/2500-3437/article/view/430393
- DOI: https://doi.org/10.17673/IP.2021.6.12.5
- ID: 430393
Цитировать
Полный текст
Аннотация
Приведена краткая история отечественного опыта реализации идеи совместного проживания групп людей со схожими целями и интересами. На основе структурного анализа наиболее современных примеров проектирования таких зданий (коливингов), выявляются и формулируются основные тенденции в проектировании объектов данной типологической группы. Рассматриваются предпосылки рассмотрения коливингов как отдельного типа объектов для проживания. Одним из факторов становления данной типологической группы жилой архитектуры стала пандемия Covid-19. В исследовании приведены статистические данные, показывающие актуальность выбранного направления исследования. Результатом работы являются данные сравнительного анализа реализованных объектов, которые определяют дальнейшее функциональное развитие данной типологии.
Ключевые слова
Полный текст
Введение
Идеи совместного проживания групп людей со схожими целями и интересами, обобществления быта и социальной жизни время от времени находят отклик в процессе архитектурного поиска и формирования новых типологий для жилья. Важно понимать, что этот процесс наиболее характерен для периодов неопределенности, социально-экономического перехода и прочих трансформаций. В наше время к таковым трансформациям можно отнести цифровизацию, уход от привычных методов работы в больших коллективах в сторону индивидуального и замкнутого существования дистанционного сотрудничества. Усиление социальной изоляции усугубилось в последние годы в результате волн пандемии Covid-19. В процессе таких переходов у людей молодых, настроенных революционно и на реформы, возникает запрос на создание пространств для проживания, более открытых для общения и построения социальных связей.
Коливинг – это система, объединяющая в себе общественное и частное пространство, место объединения людей с общими интересами. Дословно слово «коливинг» можно перевести как общежитие, сожительство, совместное жильё. Сама идея не нова, и первые такие объекты стали появляться ещё на территории дореволюционной России, а в молодой Советской республике в 1920-х годах стало зародилось новое архитектурное и социальное явление под названием «дом–коммуна», содержащее в себе основную идею обобществления быта, идею сожительства [1]. Не только доходные дома превращались в коммунальные квартиры, но активно пропагандировалась идея обобществления среди граждан, которая также привела к активному строительству общежитий, на что делает акцент Смахтина Е.А при анализе зарождения данного типа жилья в своей статье [2]. Её идею развивает и подтверждает в своей работе Долинская И.М., сравнивая коливинг со студенческими кампусами, где происходит совокупность общежитий и различных по функционалу пространств [3].
Считается, что основными отличиями коливинга являются более комфортные условия для личной жизни и общественного время препровождения, являясь более развитой формой с архитектурной и функциональной точки зрения. Важно отметить, однако, что с возрастом у людей, формирующих более тесные социальные связи (семья) запрос меняется на потребность в более обособленном проживании. Архитектурный и социальный эксперимент показал некоторую утопичность идеи домов-коммун, как формы постоянного проживания. Слово «общага» для современного человека в России имеет отсылку к студенческому жилью, в остальных случаях имея скорее негативный окрас.
Однако нельзя не отметить, что одиночество среди молодых людей в современном обществе - это проблемное явление. Благодаря статистике ВЦИОМ можно понять его масштабность: за последние полгода 23% россиян чувствовали себя одинокими, при этом 19% испытывают это чувство время от времени, а 4% — постоянно [4]. Возрождение идеи решения проблемы одиночества с точки зрения архитектурного проекта становится актуальным социальным заказом.
Цель исследования
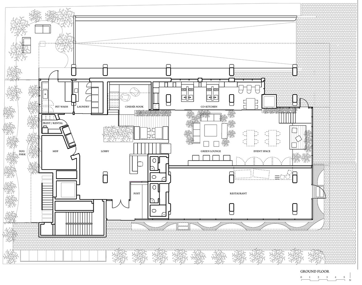
Цель данного исследования – определение особенностей проектирования коливингов (форм совместного проживания для людей с общими намерениями), анализ функционально – планировочного и объемного решения существующих объектов. Нами были рассмотрены наиболее современные примеры проектирования объектов данной типологической группы. Коливинг La Balma Collective Housing, построенный в 2021 г. архитектурными бюро LaBoqueria и Lacol, расположен в г. Барселона (Испания). В городе 3% доступного жилья. Альтернативой обычному арендному жилью является коливинг, целью которого является облегчение и гарантия доступа к достойному и доступному жилью.
Объект не является отдельно стоящим и примыкает к другому жилому зданию. Располагается в центральной части города и находится в паре минут ходьбы от главных магистралей. Дворовая территория у здания отсутствует.
Первый этаж является общественным для всех жильцов, где можно найти просторную кухню-столовую, коворкинг (пространство для совместного труда), подсобные помещения и большой холл. Остальные этажи делятся на 4 ячейки с разными по площади квартирами, имеющие однокомнатные, двухкомнатные и трехкомнатные структуры [5].
Внешняя и внутренняя отделка здания состоит из природных материалов. На фасаде здания присутствуют белые металлические панели с бетоном. В интерьере здания можно найти много дерева и каменной отделки (рис. 1).
Рис. 1. La Balma Collective Housing / Lacol + La Boqueria: а – фото объекта; б – план типового этажа [5] | |
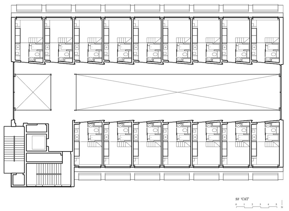
Следующий пример – это объект в Южной Корее, построенный в 2018 г., автором которого является архитектурное бюро Bo–DAA. Treehouse Coliving Apartments – это коливинг-комплекс, состоящий из 72 квартир в самом сердце района Каннам, центра стартапов Сеула. Он состоит из микро-студий и микро-лофтов, предназначен для одиноких людей и их домашних животных. Через все здание проходит атриумное пространство, в ядре которого располагается небольшой сад с различными зонами отдыха. Первый этаж наполнен большим количеством общественных пространств, где можно найти коворкинг, зоны отдыха, общую кухню-столовую, небольшой кинотеатр и ресторан [6]. Ключевой архитектурной деталью является наклонный фасад в жилых частях здания. В жилых интерьерах можно заметить следующие детали: раздвижные двери, которые можно использовать как полки, магнитная краска на всю стену, модульное хранилище вещей и чердачные помещения (рис. 2).
Рис. 2: Treehouse Coliving Apartments / Bo-DAA; а – фото объекта; б – план 1-го этажа; в – план 5-го этажа [6] | ||
Housing and Healthcare Center расположен в Бельгии. Строительство было завершено в 2022 г. Архитекторы: Bogdan & Vanbroeck. Заброшенную фабрику, располагающуюся в центре города, решили превратить в зону, включающую в себя 3 жилых блока с 59-ю жилыми ячейками, районный центр здоровья, цепь коллективных внутренних и наружных пространств, а также мастерская с видом на городской парк. Основное движение композиции задала треугольная форма промышленной площадки, которую решили оставить. Таким образом, она сохраняет атмосферу предыдущего объекта и сохраняет удивительную динамику формообразования в пределах городского квартала. Архитекторы выступили с инициативой обсудить со своими будущими жильцами возможное наполнение объекта и учли их пожелания, общение архитекторов и заказчиков принесло пользу каждой из сторон [7]. Каждый из трех жилых блоков имеет общественное пространство с общей кухней-столовой, гостиной, прачечной и детской игровой площадкой. Кроме того, есть тихие зоны: зимний сад и зона коворкинга (рис. 3).
Рис. 3. Bijgaardehof Co-Housing and Healthcare Center; а – фото объекта; б – план 1-го этажа [7] | |
Архитекторы из бюро Tectône + Tactarchitects закончили строительство Zellige Housing Complex в 2020 г. Объект расположен во Франции. Особенностью объекта является его разделение на 3 группы, содержащие разные жилищные программы: социальную ренту, квартиры–коливинги и квартиры на выкуп. В основе проектирования объекта также лежала дискуссия между архитекторами и будущими жильцами. Благодаря этому апартаменты удалось индивидуально приспособить под нужды жильцов. Проект состоит из трех компактных объемов в 4, 6 и 12 этажей, связанных друг с другом. В объекте располагается 100 квартир, включая 15 квартир-кохаузингов (жилища в значительной степени с общим бытом). На первом этаже располагается зона коворкинга, несколько зон отдыха, прачечная. Также все существующие блоки объединяются террасами [8].
Рис. 4. Zellige Housing Complex / Tectône + Tactarchitectes; а – фото объекта; б – разрез; в – план 3-го этажа [8] | ||
Сдержанность и строгость – основная концепция в решении фасадных и интерьерных решениях, отказ от сложности и эксцентричности. Весь фасад выполнен из кирпича. Объект располагается в сейсмоопасной зоне, что в соответствии с европейским и французским законодательством подразумевает использование специальных систем подвески кирпича. Интерьерные же пространства наполнены светлыми оттенками с использованием деревянных панелей (рис. 4) [8].
Episode Suyu 838 Co-Living Complex располагается в северной части Сеула (Южная Корея), являющейся транспортным узлом с большим потоком людей разного возраста и происхождения. Архитекторы: CollectiveB. Год строительства: 2022. Этот комплекс является одним из крупнейших в мире, наполняя первые 3 этажа коммерческими и общественными зонами, а остальные 20 этажей – жилые.
При проектировании делался приоритет на экологичность объекта. Больше 80% мебели создано из переработанных материалов, что должно снизить выбросы углерода. Также большинство отделочных материалов разлагаются естественным путем или подходят для вторичной переработки, уменьшая число промышленных отходов.
Общественные пространства создавались максимально гибкими с использованием модульных объектов декора и мебели. Благодаря этому появляется возможность легко менять функционал общественных пространств [9].
Рис. 5: Episode Suyu 838 Co-Living Complex / Collective B; а – интерьер; б – план 19 этажа | |
Сравнительный анализ коливингов
В сравнительном анализе (Таблица 1) представляются основные данные, полученные в ходе исследования коливингов. Исходя из собранной информации становится ясно, что коливинги – это максимально индивидуальные и разнообразные объекты. Каждый из изучаемых объектов имеет разное функциональное наполнение и архитектурный вид, отвечающий запросу той или иной социальной группы. При этом можно выделить их основные черты и признаки в формировании объемно-пространственных структур, различия функциональных зон и архитектурно-средовых особенностей.
Таблица 1
№ | Название | Этажность | Объемно-пространственная структура | Функциональные зоны | Арх. особенности | |||||||||
Блочная | Моноблочная | Жилые | Общественные | Атриум | Эксп. кровля | Летние помещения | ||||||||
Студии | 2 и более комнат | Коворкинг | Спортивная | Питания | Культуры | Рекреационная | ||||||||
1 | La Balma Collective Housing | 6 |
| X |
| X | X |
| X |
| X |
| X | X |
2 | Treehouse Coliving Apartments | 7 |
| X | X |
| X |
| X | X | X | X |
| X |
3 | Bijgaardehof Co-Housing and Healthcare Center | 8 | X |
| X | X | X |
| X |
| X |
| X | X |
4 | Zellige Housing Complex | 12 | X |
| X | X | X |
| X |
| X |
| X | X |
5 | Episode Suyu 838 Co-Living Complex |
|
| X | X |
| X | X | X | X | X |
|
|
|
Заключение
Анализ международного опыта проектирования показал, что идеи домов–коммун не изжили себя, как было принято считать на протяжении двух последних десятилетий в России, а только трансформировались и попытались развить положительные черты данного типа жилья.
Сравнительный анализ проектных решений позволяет сделать следующие выводы о функционально – архитектурных особенностях проектирования коливингов: чаще всего объекты представляют из себя моноблочную структуру, объединяя в одном здании все нужные функции частных и общественных пространств. Основными общественными зонами являются коворкинг, зона питания и рекреация.
Коливинг является объединением всех бытовых и рабочих благ. Типовой формат коливинга может включать в себя отдельные или общие спальные комнаты, совместное использование общественной инфраструктуры, которая может быть максимально разнообразной с функциональной точки зрения. Проведение совместных мероприятий, коллективный прием пищи в семейном формате, тренинги, вечеринки, спортивные занятия и многие другие формы социально-общественной жизни. Основная идея коливинга - это объединение людей с общими интересами. Поэтому предполагается, что это форма зданий для жилья коммерческого использования, не подразумевающего долговременное проживание или постоянную собственность.
Так как коливинг является объединением общественного и частного, объединением отдыха и работы, необходимо применение большего разнообразия архитектурно – планировочных решений и дизайна. Планировка жилых ячеек может быть индивидуальна, трансформируема и как следствие подстроена под определенные нужды людей, исходя из их профессии и образа жизни. Может оказаться целесообразным размещение коливингов в городах с большим количеством населения, в центральной его части, с легкой доступностью общественного транспорта.
Об авторах
Анна Андреевна Кузнецова
Самарский государственный технический университет
Автор, ответственный за переписку.
Email: amore_86@mail.ru
SPIN-код: 4458-4049
доцент кафедры «Архитектура жилых и общественных зданий» СамГТУ, кандидат архитектуры (Самара, Россия)
Россия, СамараСергей Дмитриевич Носов
Самарский государственный технический университет
Email: amore_86@mail.ru
студент кафедры «Архитектура жилых и общественных зданий» СамГТУ (Самара, Россия)
Россия, СамараСписок литературы
- Филиппов В. Д. Многоэтажное жилье: коммуны и казармы // Теоретические основы градостроительства. X Владимировские чтения. Сборник статей. Российская академия архитектуры и строительных наук, Самарский государственный технический университет. 2020. С. 149-179. doi: 10.17673/RAACS.2020.1.15
- Смахтина Е.А. Новые форматы коллективного жилья. Наука, образование и экспериментальное проектирование в МАрхИ. Материалы научно-практической конференции. Москва. 2021, Т.1. с. 379-380. doi: 10.24411/9999-034A-2020-10094
- Долинская И.М., Яковенко Е.М. Коливинг: исторический обзор // Universum: технические науки. 2021, №8-1(89), с. 62-64. doi: 10.32743/UniTech.2021.89.8.12214
- Одиночество и как с ним бороться. Аналитический обзор. ВЦИОМ. Новости. 19 августа 2021 г. URL: https://wciom.ru/analytical-reviews/analiticheskii-obzor/odinochestvo-i-kak-s-nim-borotsja
- La Balma Collective Housing / Lacol + LaBoqueria [Vivienda cooperativa la Balma / Lacol + LaBoqueria]. 11 Nov 2021. ArchDaily. URL: https://www.archdaily.com/971631/la-balma-collective-housing-lacol-plus-laboqueria
- Treehouse Coliving Apartments / Bo-DAA. 28 Jan 2020. ArchDaily. URL: https://www.archdaily.com/932735/treehouse-apartment-building-bo-daa
- Bijgaardehof Co-Housing and Healthcare Center / BOGDAN & VAN BROECK. 02 Sep 2022. ArchDaily. URL: https://www.archdaily.com/988277/bijgaardehof-co-housing-and-healthcare-center-bogdan-and-van-broeck
- Zellige Housing Complex / Tectône + Tact architects. 01 Oct 2020. ArchDaily. URL: https://www.archdaily.com/948730/zellige-housing-complex-tectone-plus-tact-architectes
- Episode Suyu 838 Co-Living Complex / Collective B. 03 Jun 2022. ArchDaily. URL: https://www.archdaily.com/983017/episode-suyu-838-co-living-complex-collective-b
Дополнительные файлы















