Новое в проектировании школ: гибкость и функциональность
- Авторы: Селихов А.Г.1, Орлова Е.С.1
-
Учреждения:
- Самарский государственный технический университет
- Выпуск: Том 10, № 18 (2025)
- Страницы: 84-90
- Раздел: ГОРОД ВНЕ ГОРОДА
- URL: https://journals.eco-vector.com/2500-3437/article/view/689079
- DOI: https://doi.org/10.17673/IP.2025.10.18.8
- ID: 689079
Цитировать
Полный текст
Аннотация
Рассматриваются современные подходы к проектированию школьных зданий, ориентированные на создание гибкой и функциональной среды, способствующие дальнейшему развитию и адаптации к различным образовательным потребностям.
Полный текст
В последние десятилетия образовательные стандарты и потребности существенно изменились, что отразилось на подходах к проектированию школьных зданий. Важную роль в этом процессе сыграли сами школьники, которые с ранних лет растут в окружении компьютерных технологий и цифровых устройств. Современные дети осваивают новые технологии гораздо быстрее, чем предыдущие поколения, и зачастую ожидают видеть их не только дома, но и в учебной среде. Школьное пространство теперь должно удовлетворять их потребности в интерактивности, обеспечивать доступ к разнообразным технологиям и поддерживать гибкость образовательного процесса. Таким образом, школьные здания становятся не просто местом проведения уроков, а многофункциональной средой, поддерживающей различные форматы обучения и внеклассной деятельности, способствующие развитию творческих способностей, критического мышления и коммуникативных навыков.
Технологические инновации, новые строительные материалы и методы позволяют архитекторам воплощать идеи многофункциональных и адаптивных пространств, которые способствуют лучшему восприятию и усвоению знаний. В мировой практике уже реализованы успешные проекты школьных зданий, в которых используются передовые подходы к зонированию и трансформации, где пространства легко меняют конфигурацию для проведения групповых, индивидуальных или творческих занятий. Эти примеры свидетельствуют о востребованности новых концепций в школьной архитектуре и подчеркивают актуальность их исследования [1, 2, 3, 4].
Цель данной статьи – исследовать современные подходы к проектированию школьных зданий, которые способствуют созданию гибкой и функциональной среды, удовлетворяющей разнообразные образовательные потребности. В работе будет представлен анализ инновационных решений, применяемых в проектировании образовательных учреждений, а также рассмотрены примеры успешных проектов, реализованных в соответствии с этими принципами.
Хронологические рамки исследования охватывают последние два десятилетия, когда стали активно внедряться новые подходы к проектированию школьных зданий, обусловленные быстрым развитием технологий и изменениями в образовательных стандартах. Пространственные границы исследования включают примеры реализации инновационных школьных проектов в различных странах. Методы исследования: в основе лежит комплексный подход, базирующийся на анализе научных трудов и практической деятельности в рассматриваемой области, сравнительный анализ.
Гибкость и функциональность в контексте архитектуры школьных зданий представляют собой важные характеристики, определяющие способность образовательной среды отвечать на разного рода вызовы и нужды. Гибкое образовательное пространство — это пространство, которое можно адаптировать под различные форматы и типы учебной деятельности. Функциональность образовательного пространства, в свою очередь, означает способность пространства эффективно удовлетворять различные потребности образовательного процесса [2]. Это предполагает наличие зон, которые обеспечивают условия для работы в различных форматах — от индивидуального обучения до коллективных проектов.
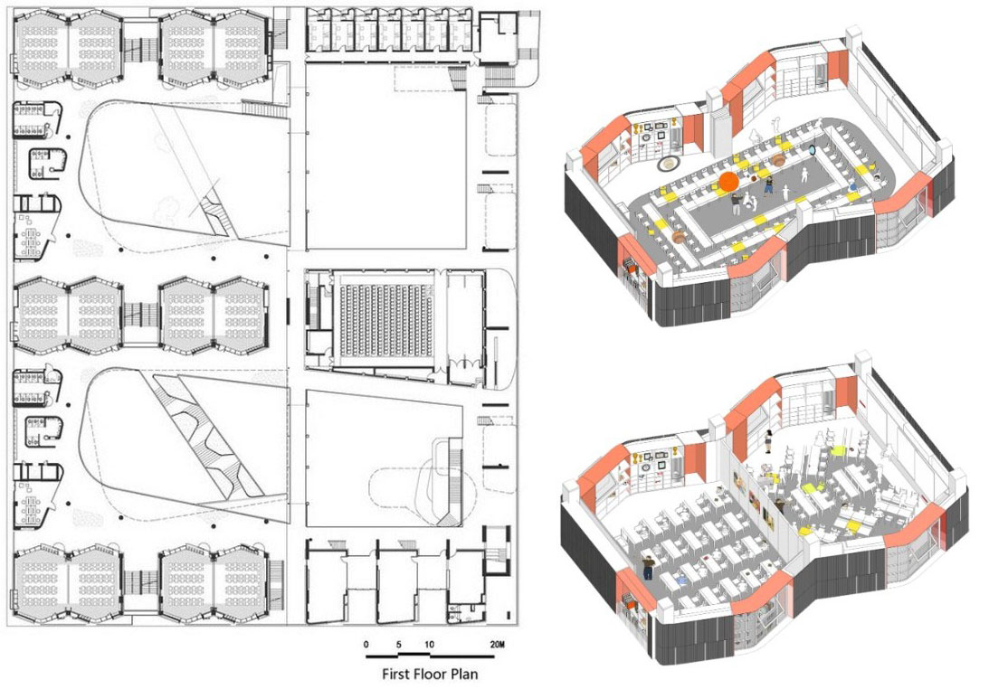
Рис. 1. План учебного заведения Hongling Experimental Primary School и схемы трансформации его учебных блоков
Исследования "Flexible learning spaces facilitate interaction, collaboration and behavioural engagement in secondary school" [3] и "School buildings for the 21st century: Some features of new school buildings in Iceland" [4], демонстрируют, что гибкие пространства не только поддерживают различные форматы обучения, но и способствуют улучшению поведения учащихся, повышая их заинтересованность и снижая уровень стресса. В частности, использование адаптивных помещений, которые могут быть перераспределены для различных типов работы (групповой, индивидуальной, проектной), повышает уровень сотрудничества и взаимодействия между учениками.
Примеры школ, спроектированных с использованием гибких образовательных пространств, демонстрируют, как архитектура может отвечать на меняющиеся потребности учебного процесса. Например, школа Hongling Experimental Primary School, спроектированная архитекторами O-office в Китае [5]. Здесь использовалась инновационная концепция: были спроектированы отдельные пары учебных блоков в форме барабана, которые разместили в 3 ряда на Е-образной планировке. Каждая пара учебных единиц может гибко открываться и объединяться или разделяться с помощью подвижных перегородок (рис. 1), формируя многофункциональные пространства, меняющиеся в зависимости от потребностей.
Jätkäsaari Comprehensive School в Финляндии [6], известная своими инновационными методами обучения, имеет гибкие пространства с минимальным количеством фиксированных элементов, которые спроектированы с учетом будущих потребностей (рис. 2). Такой подход способствует созданию вдохновляющей образовательной среды, которая развивается вместе с ее пользователями. Перед архитекторами стояла задача – создать многофункциональные зоны, которые побуждали бы учеников к обучению и сотрудничеству, а также легко адаптировались к будущим изменениям и инновациям (рис. 3).
Рис. 2. Планы этажей школы «Jätkäsaari Comprehensive School»
Рис. 3. Холл и учебный класс школы «Jätkäsaari Comprehensive School»
Ørestad Gymnasium в Копенгагене [7] — еще один яркий пример школы, спроектированной с гибкими образовательными пространствами, поддерживающими инновационные подходы к обучению (рис. 4). Пространство гимназии разделено на круглые классы, повторяющие форму атриума, и открытые зоны, идеально подходящие для работы в группах и командных проектов (рис. 5). Зоны легко трансформируются благодаря мобильным элементам — например, перемещаемым книжным полкам, которые позволяют быстро изменять обстановку. Классические классы отделены стеклянными стенами, что поддерживает ощущение открытого пространства и способствует созданию атмосферы единства.
Рис. 4. Планы школы Ørestad Gymnasium
Ørestad Gymnasium удостоена множества престижных наград и признана одним из наиболее современных учебных заведений Европы.
Рис. 5. Учебно-рекреационное пространство школы «Ørestad Gymnasium»
Проанализировав мировой опыт проектирования гибких образовательных пространств можно выделить ключевые критерии, которые их характеризуют, обеспечивая функциональность и эффективность [4, 8, 10]:
• Адаптивность: Пространства должны легко изменяться в зависимости от нужд учебного процесса. Это включает в себя возможность перемещать или модифицировать элементы, такие как стены или мебель, чтобы создать различные образовательные форматы — от индивидуальной работы до групповых занятий.
• Многофункциональность: Зоны должны служить не только для традиционного обучения, но и для творческих, социальных и исследовательских активностей. Например, комбинированные пространства могут использоваться для презентаций, совместного проектирования или отдыха.
• Открытость и доступность: Пространства должны быть открытыми, стимулирующими взаимодействие между учащимися, а также доступными для различных типов пользователей, включая учеников с особыми потребностями.
• Интеграция технологий: Современные образовательные пространства должны быть оснащены технологическими средствами, поддерживающими цифровое обучение и взаимодействие (например, интерактивные панели, возможность подключения к сети).
• Экологичность и устойчивость: Использование экологически чистых материалов, энергоэффективных технологий и принципов устойчивой архитектуры, что снижает эксплуатационные расходы и способствует созданию здоровой образовательной среды.
Эти критерии гибкости создают основу для формирования образовательных пространств, которые обладают рядом значительных преимуществ. Во-первых, они способствуют повышению вовлеченности учеников за счет возможности изменения среды в зависимости от типа занятия, что помогает улучшить участие в групповых дискуссиях и проектной работе. Гибкость пространства помогает поддерживать разнообразие стилей обучения, позволяя учитывать индивидуальные потребности учеников, что в свою очередь повышает академическую успеваемость. Такие пространства также улучшают продуктивность учеников, так как правильно организованные зоны способствуют улучшению концентрации и более комфортному обучению [4, 8, 9, 10].
Однако существует и ряд недостатков. Прежде всего, проектирование и создание гибких образовательных пространств требует значительных начальных затрат, что может ограничивать возможности их внедрения в некоторых регионах. Также существует риск неправильного управления пространством, если система зонирования и адаптации не будет должным образом организована, что может привести к снижению эффективности. Кроме того, профессиональная подготовка преподавателей для работы в таких условиях требует дополнительных усилий и времени [4, 8, 9, 10].
Необходимо упомянуть о том, что применимость заграничного опыта в России в области гибких образовательных пространств требует учета специфики образовательной системы, климатических и культурных особенностей. В странах с более гибким подходом к школьной инфраструктуре, таких как Финляндия и Великобритания, успешная интеграция гибких пространств создает условия для активного и совместного обучения. В России, с традиционно жесткой организацией учебных помещений, внедрение таких решений потребует пересмотра подходов к организации пространства, обновления образовательных стандартов и подготовки педагогов.
Выводы
Анализ мирового опыта подтверждает важность гибкости и функциональности в проектировании школьных зданий для улучшения образовательного процесса. Гибкие пространства, которые можно адаптировать под различные формы обучения, способствуют повышению вовлеченности учеников и их академической успеваемости. Многофункциональные зоны, включая учебные помещения для индивидуальной работы и групповых занятий, создают более динамичную атмосферу. Качество школьной инфраструктуры напрямую влияет на образовательные результаты. Гибкость и функциональность не только улучшают условия обучения, но и поддерживают устойчивость школьных зданий, что важно в контексте экологических изменений и принципов устойчивого развития.
Об авторах
Александр Геннадьевич Селихов
Самарский государственный технический университет
Автор, ответственный за переписку.
Email: filippov.vd@samgtu.ru
Россия
Екатерина Сергеевна Орлова
Самарский государственный технический университет
Email: filippov.vd@samgtu.ru
Россия
Список литературы
- Козлов И. С., Калинина Н. С. Коворкинг, как современный способ формирования школьных пространств // Системные технологии. 2021. №1 (38).
- Mirpadyab, S. K., Kanani, S., Rezaeinezhad, S., & Khalili, A. (2020). The Study of the Characteristics of Flexibility in the Design of Educational Spaces. Journal of Educational Architecture, 27(1), 33-47.
- Kariippanon, K. E., Okely, D., Cliff, D. P., Lancaster, S. J., & Parrish, A.-M. (2016). Flexible learning spaces facilitate interaction, collaboration, and behavioural engagement in secondary school. Learning Environments Research, 19(3), 1-15.
- Sigurdardottir, A. K., & Hjartarson, T. (2019). School buildings for the 21st century: Some features of new school buildings in Iceland. Scandinavian Journal of Educational Design, 14(2), 72-85.
- "Hongling Experimental Primary School / O-office Architects" 17 октября 2019 г. ArchDaily. [Электронный ресурс]. https://www.archdaily.com/926560/hongling-experimental-primary-school-o-office-architects
- "Jätkäsaari Comprehensive School / AOR Architects" 20 июль 2022. ArchDaily. [Электронный ресурс]. https://www.archdaily.com/957031/jatkasaari-comprehensive-school-aor-architects
- "Ørestadcollege/ 3XN" 12 мая 2024.3xn. [Электронный ресурс]. https://3xn.com/project/orestad-college
- Barrett, P., Treves, A., Shmis, T., Ambasz, D., & Ustinova, M. (2015). The Impact of School Infrastructure on Learning: A Synthesis of the Evidence [Электронный ресурс]. https://www.gov.uk/government/publications
- Frelin, A., & Grannäs, J. (2017). Designing and Building Robust Innovative Learning Environments. Education and Design Journal, 12(3), 45-59.
- Frelin, A., & Grannäs, J. (2017). Flexible Learning Environments and Sustainability: Integration of Ecological Architecture Principles in School Design. Architectural Journal of Education, 18(4), 21-34.
Дополнительные файлы








