Ways to increase the thermal power of the convector
- Authors: Anciferov S.A.1, Chirkova E.V.1, Pryadilov A.V.1, Goshkoderya L.V.1
-
Affiliations:
- Togliatti State University
- Issue: Vol 12, No 4 (2022)
- Pages: 52-59
- Section: HEAT SUPPLY, VENTILATION, AIR CONDITIONING, GAS SUPPLY AND LIGHTING
- URL: https://journals.eco-vector.com/2542-0151/article/view/106171
- DOI: https://doi.org/10.17673/Vestnik.2022.04.07
- ID: 106171
Cite item
Full Text
Abstract
The necessity of improving the production of heating devices in order to ensure their nominal thermal power is substantiated. The features of the manufacture of convectors "Universal" by the burnishing method are considered. The damages of the edges of the plates that occur during the expansion of the pipe during burnishing are investigated. The most promising direction for improving the quality of convector production has been identified - cold stamping of plates. The analysis of the shortcomings of plate stamping was carried out, the main reasons for the decrease in the thermal power of convectors were identified, and measures were developed to eliminate them. To increase the objectivity of the results of the study, tests were carried out with two different casings of convectors on a test bench. The optimal degree of plate tension has been determined and confirmed experimentally.
Keywords
Full Text
Введение
В настоящее время производством конвекторов в России занимается более десятка предприятий. Все производители заинтересованы в постоянном повышении качества выпускаемых отопительных приборов. Письмо Министерства промышленности и торговли РФ «О введении обязательной сертификации отопительных приборов» [1], ФЗ № 261 «Об энергосбережении и о повышении энергетической эффективности» [2] предписывают обратить особое внимание на качество изготовления отопительных приборов по ГОСТ 31311-2005 «Приборы Отопительные. Общие технические условия», способствуют развитию научно-технических, производственных, экономических подходов к совершенствованию производства [3–5], внедрению новых технологий и конструктивных решений [6], регламентированных ГОСТ 31311-2005.
Производители, ориентированные на экспорт, которых с каждым годом становится всё больше, учитывают инвестиционную привлекательность российской экономики, а также требования европейского стандарта DIN EN 442-2-2015 «Радиаторы и конвекторы». Применение современных измерительных приборов и методик при испытании в соответствии с МИ 2714-2002 «Рекомендация. ГСИ. Энергия тепловая и масса теплоносителя в системах теплоснабжения» позволяет повысить точность измерений, автоматизировать управление измерительной системой и выявить возможные причины несоответствия фактической и заявленной (паспортной) номинальной тепловой мощности конвекторов и радиаторов [7, 8]. В настоящее время в России испытания отопительных приборов регламентируются ГОСТ Р 53583-2009 «Приборы Отопительные. Методы испытаний».
Российские предприятия активно развивают производство отопительных приборов, совершенствуют конструкцию, внедряют передовые методы контроля качества продукции, ведут научные изыскания в области термодинамики, гидравлики, материаловедения, металлообработки. Количество профильных заводов, оборудованных автоматизированными производственными линиями, за последние годы значительно увеличилось.
Однако у некоторых производителей возникает проблема с качеством выпускаемых конвекторов типа «Универсал», а именно значительный разброс значений тепловой мощности, полученных в результате испытаний, у приборов одного номинала. Потеря мощности может достигать 8 %, что противоречит требованиям ГОСТ 31311-2005, п. 5.4, который регламентирует отклонение от номинальной мощности минус от -4 до +5 %. Кроме того, уменьшение мощности отопительного прибора негативно сказывается на микроклимате обслуживаемого помещения, нередко приводит к конфликтам между владельцами и управляющими или энергоснабжающими организациями. Иногда претензии предъявляются и к проектировщикам, которые подбирают конвекторы исходя из номинальных паспортных характеристик, полностью доверяясь нерадивым производителям.
Устройство отопительного конвектора достаточно простое, известное много десятков лет, и найти путь для усовершенствования его конструкции с целью увеличения тепловой мощности достаточно трудно. Однако современные, в том числе и цифровые, технологии продолжают активно развиваться и внедряться в управление металлообрабатывающим оборудованием, в системы контроля качества, что даёт реальную возможность найти ответ на поставленный вопрос.
Анализ конструкции конвектора позволяет эффективно выявить проблемную область – место сопряжения штампованной кромки пластин с трубой. Выявив недостаток конструкции при осмотре достаточно большого количества конвекторов разных производителей, можно выдвинуть предположение, что потеря тепловой мощности происходит из-за низкого качества штамповки отверстий пластин (переменная форма кромки, большой радиус перехода от плоскости к кромке) (рис. 1) и неравномерной, с разрывами, посадки пластин на трубу при дорновании (рис. 2), что отмечено в работах, посвящённых проблемам штамповки листового материала. Зона теплопередачи неравномерна, её площадь у каждой пластины весьма разнится. Наиболее целесообразный вариант устранения недостатка: повышение качества изготовления пластины, а также оптимизация фиксации её на трубе.
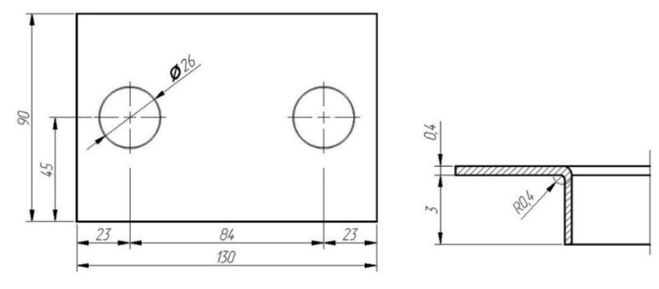
Рис. 1. Чертёж экспериментальной пластины (слева), разрез по кромке (справа)
Рис. 2. Серийная пластина (слева), экспериментальная (справа)
Фиксация пластин на трубе осуществляется на специализированных станках методом холодной деформации трубы – объёмного дорнования. Дорн, продвигаясь по трубе, обеспечивает изменение геометрических размеров, нивелирование имеющейся шероховатости до 0,75 мкм, упрочнение поверхностного слоя металла. Величина диаметра отверстия обрабатываемой трубы всегда меньше диаметра дорна на показатель натяжения. Объёмное дорнование даёт возможность работать с достаточно длинными трубами (при изготовлении конвекторов до 2 м), обеспечивая высокий показатель прямолинейности. При свободном дорновании внешние поверхности трубы не имеют каких-либо ограничений при деформации, что очень удобно при работе с бесшовными и электросварными трубами с толщиной стенки до 2,5 мм.
Таким образом, можно сформулировать цель исследования: повышение тепловой мощности конвектора за счет повышения качества цилиндрической кромки пластины в месте соприкосновения с трубой и определение оптимальной степени натяжения пластин.
Поставлена задача: разработать оптимальную форму кромки и подобрать степень натяжения пластины для обеспечения стабильной тепловой мощности конвектора.
Для проверки эффективности выбранного способа повышения тепловой мощности конвектора решено изменить форму кромки пластины: исключить конусность, избавиться от заусенцев и разрывов. Для этого изготовлен экспериментальный штамп для кривошипного пресса и собрано несколько опытных образцов конвекторов для проведения лабораторных испытаний на испытательном стенде по определению тепловой мощности в соответствии с методикой, изложенной в ГОСТ Р 53583-2009.
Результаты исследований
Методика проведения исследований. В основу исследования процессов теплопередачи при сопряжении металлических деталей положен феноменологический метод описания процесса, игнорирующий микроскопическую структуру вещества, рассматривающий его как сплошную среду. Влияние конкретной физической среды учитывается коэффициентами, определяемыми непосредственно из опыта. Достоинство этого метода заключается в возможности установить общие связи между несколькими параметрами, которые характеризуют процесс теплопроводности, используя при этом экспериментальные данные.
Эффективность теплопередачи зависит от площади соприкосновения деталей, поскольку количество теплоты, передаваемой через материал, согласно закону Фурье прямо пропорционально площади поверхности теплопередачи. Расчётная площадь соприкосновения кромки пластины и трубы составляет 120 мм2. Однако в реальных условиях добиться этого мешают необходимость изменения процесса штамповки, переоснастка и перерывы в работе прессового участка.
Теоретически кромку единичной пластины и трубу можно рассматривать как многослойную цилиндрическую поверхность. Однако в реальных условиях добиться идеального прилегания двух поверхностей достаточно сложно. Ввиду особенности поведения металла при растяжении (искривление, растрескивание) образуется неравномерная воздушная прослойка. Полностью исключить этот недостаток нельзя, но можно попытаться его минимизировать, подобрав степень натяжения пластины в доступных технологических условиях.
Проведение серии испытаний экспериментальных конвекторов позволит решить задачу по определению оптимальной степени натяжения пластин.
Для точного определения влияния степени натяжения пластин конвектора при дорновании на тепловую мощность по методике, изложенной в ГОСТ Р 53583-2009 «Приборы Отопительные. Методы испытаний», проведена серия опытов на испытательном стенде со стабилизированным микроклиматом, водоохлаждаемыми внутренними поверхностями для обеспечения заданных температурных условий, зависящих от мощности отопительного прибора.
Проведение испытаний. Пластина конвектора «Универсал» имеет геометрические размеры, указанные на рис. 1. Изготовлена из листовой стали толщиной 0,4 мм. После штамповки проведён дополнительный контроль качества пластин и сборки конвектора. Процесс дорнования выполнялся новым дорном, степень натяжения 0,6±0,02 мм. Измерения наружного диаметра проведены в 8 точках на прямом и обратном направлениях трубы для проверки наличия овальности и огранки по ГОСТ 26877-2008 «Металлопродукция. Методы измерений отклонений формы». После окраски и сушки в камере готовый экспериментальный конвектор выдержан трое суток для стабилизации красочного слоя.
На рис. 2 представлены серийная и экспериментальная пластины. На серийной пластине заметны заусенцы, разрывы в верхней части кромки, конусность и достаточно большой радиус скругления (0,6 – 0,8 мм) при переходе с плоскости на кромку. При таком качестве штамповки рассчитанная площадь соприкосновения с трубой составляет не более 70 мм2. Напряжения и неравномерная толщина металла на краю приводят к разрыву кромки при дорновании, что заметно на собранном конвекторе (рис. 4). Экспериментальная пластина лишена этих недостатков (рис. 6).
Рис. 4. Образец 2. Посадка пластин с разрывами
Рис. 6. Образец 4. Экспериментальный конвектор
Серии испытаний конвекторов разных производителей, проведённых по методике согласно ГОСТ Р 53583-2009, позволили определить степень влияния качества изготовления и крепления пластин.
Испытывались 4 конвектора «Универсал» номинальной мощностью 1,049 кВт. Образцы 1, 2 – серийные; обезличенный образец 3 – стороннего производителя «N»; образец 4 – опытный конвектор, изготовленный с учётом выявленных недостатков специально для испытаний. Состояние кромок пластин образцов показаны на рис. 3–6. Результаты замеров тепловой мощности конвекторов приведены в табл. 1.
Рис. 3. Образец 1. Большой радиус перехода от плоскости к кромке
Рис. 5. Образец 3. Посадка пластин без дефектов
Таблица 1. Результаты испытаний конвекторов по определению фактической тепловой мощности, кВт
Испытание № | Образец 1 серийный 1 | Образец 2 серийный 2 | Образец 3 производитель N | Образец 4 опытный |
1 | 1,016 | 0,970 | 1,041 | 1,048 |
2 | 1,009 | 0,982 | 1,043 | 1,046 |
3 | 0,993 | 0,974 | 1,046 | 1,044 |
4 | 0,994 | 0,978 | 1,049 | 1,047 |
5 | 0,990 | 0,956 | 1,042 | 1,045 |
6 | 0,996 | 1,014 | 1,044 | 1,046 |
Qср, кВт | 1,000 | 0,979 | 1,044 | 1,046 |
δ,٪ | 4,703 | 6,673 | 0,461 | 0,286 |
При выборе величины натяжения пластин необходимо руководствоваться характеристиками пластичности и начальной прочности заготовки. Сила процесса обработки состоит из двух компонентов: радиального и осевого. Радиальный компонент увеличивает сечение заготовки (объёмное расширение), а осевой удаляет неровности, снижая шероховатость. Однако излишняя степень натяжения (более 0,8 мм) может стать причиной увеличения конечного показателя шероховатости. Относительная деформация определяет реальную деформацию по её наружному сечению и выражается в процентах. Сила дорнования влияет на величину и скорость износа рабочего инструмента. Подбор правильной схемы обработки очень важен, так как это приводит к возникновению осевых напряжений. Современные способы объёмного дорнования осуществляются с пассивным, нейтральным и активным видами противонатяжения. Для этого применяются натяжные подвижные механизмы, которые ограничивают укорачивание заготовок при обработке и дают возможность найти пути увеличения мощности конвектора.
На следующем этапе эксперимента испытаниям подвергались три специально изготовленных образца теплопакета конвектора «Универсал», собранных из стальных пластин размером 130×90 мм, толщиной 0,4 мм. Длина оребрения составляет 765±2 мм, количество пластин – 129, шаг – 5,92 мм. Труба по ГОСТ 10704-91 «Трубы стальные электросварные прямошовные» 26×1,8 мм. Длина прямолинейного участка, подвергнутая дорнованию, – 935 мм. Теплопакеты изготовлены со степенью натяжения 0,5; 0,6; 0,7 мм, с допустимым отклонением 0,02 мм. Для получения более достоверных результатов проведены испытания с двумя различными кожухами, условно обозначенными «Тип 1» и «Тип 2». Каждый конвектор испытан по 6 раз, для дальнейшего анализа удобно пользоваться средним значением тепловой мощности Qср, кВт. Результаты проведённых замеров тепловой мощности конвекторов в зависимости от степени натяжения пластин приведены в табл. 2.
Таблица 2. Влияние величины натяжения пластины на фактическую тепловую мощность
Испытание № | Кожух тип 1 | Кожух тип 2 | ||||
образец 1 | образец 2 | образец 3 | образец 1 | образец 2 | образец 3 | |
степень натяжения n, мм | степень натяжения n, мм | |||||
0,5 | 0,6 | 0,7 | 0,5 | 0,6 | 0,7 | |
1 | 0,853 | 0,855 | 0,853 | 0,860 | 0,881 | 0,870 |
2 | 0,851 | 0,863 | 0,855 | 0,868 | 0,889 | 0,866 |
3 | 0,846 | 0,858 | 0,850 | 0,868 | 0,890 | 0,876 |
4 | 0,848 | 0,864 | 0,854 | 0,869 | 0,889 | 0,877 |
5 | 0,852 | 0,865 | 0,854 | 0,870 | 0,884 | 0,879 |
6 | 0,849 | 0,860 | 0,849 | 0,870 | 0,889 | 0,865 |
Qср, кВт | 0,850 | 0,861 | 0,853 | 0,868 | 0,886 | 0,872 |
δ,٪ | 7,4 | 6,2 | 7,1 | 5,5 | 3,5 | 4,9 |
На рис. 7–12 показано состояние кромки пластины при различной степени натяжения. На всех пластинах при любом натяжении заметны разрывы кромки (рис. 10–12). При натяжении 0,5 мм заметен зазор (справа) между краем кромки и трубой (рис. 7). На образце №2 при натяжении 0,6 мм зазор отсутствует, разрыв края кромки небольшой (рис. 8). При натяжении 0,7 мм происходит увеличение зазора между краем кромки и трубой (рис. 9). На виде сверху (рис. 10–12) заметно искривление пластин, возникшее в процессе увеличения диаметра трубы.
Рис. 7. Образец 1. Вид спереди при натяжении 0,5 мм
Рис. 8. Образец 2. Вид спереди при натяжении 0,6 мм
Рис. 9. Образец 3. Вид спереди при натяжении 0,7 мм
Рис. 10. Образец 1. Вид сверху
Рис. 11. Образец 2. Вид сверху
Рис. 12. Образец 3. Вид сверху
Для контроля качества дорнования проведены измерения геометрических размеров наружного диаметра и толщины стенки трубы собранного конвектора. Измерения выполнены в помещении лаборатории в соответствии с ГОСТ 26877-2008 «Металлопродукция. Методы измерений отклонений формы» и ГОСТ 8.050-73 (СТ СЭВ 1155-78) «Государственная система обеспечения единства измерений (ГСИ). Нормальные условия выполнения линейных и угловых измерений». Обработка результатов измерений проведена по методике, изложенной в ГОСТ 26433.0-85 «Система обеспечения точности геометрических параметров в строительстве. Правила выполнения измерений. Общие положения». Замеры наружного диаметра трубы произведены для всех образцов.
После обработки результатов измерений проведена проверка на нормальное распределение. Случайные величины распределены нормально, отклонения размеров в пределах погрешности измерений. Форму трубы можно считать круглой, толщину стенки 1,83±0,2 мм в пределах допуска.
Результаты испытаний. Результаты серии испытаний обработаны по методике, приведенной в ГОСТ Р 8.736-2011 «Государственная система обеспечения единства измерений. Измерения прямые многократные. Методы обработки результатов измерений» с последующей статистической обработкой.
По результатам первой серии испытаний видно (табл. 1), что отклонение среднего значения фактической тепловой мощности Qср от номинальной (1,049 кВт) и относительное отклонение результата δ зависят от качества изготовления и крепления пластин на трубе. Экспериментальный конвектор с пластинами, изготовленными на новом штампе, показал наименьший разброс значений в серии испытаний и наименьшее отклонение от номинальной мощности.
Серией испытаний подтверждено, что повышение качества штамповки пластин и сборки конвектора обеспечивает стабильную, близкую к номинальной, тепловую мощность.
По результатам второй серии испытаний (табл. 2) была построена графическая зависимость тепловой мощности конвектора от степени натяжения пластин (рис. 13). Как видно из рисунка, полученный график представляет собой параболу, т. е. аналитическая зависимость тепловой мощности конвектора Q от степени натяжения пластин n является квадратичной функцией типа Q = an2 + bn + c. Коэффициенты а, b, с определяются эмпирически для разных типов конвекторов, так как они зависят от геометрических характеристик конвектора: длины, размера пластин, шага оребрения, а также от типа кожуха, его размеров и вида решётки.
Рис. 13. Зависимость тепловой мощности от степени натяжения пластин
Проведённые испытания показали, что степень натяжения влияет на состояние кромки пластины: чем больше «натяг», тем плотнее прилегает пластина к трубе, но кромка пластины при этом рвётся, уменьшая площадь соприкосновения. При малом «натяге» пластина прилегает к трубе неплотно, но кромка деформируется в гораздо меньшей степени. При оптимальной степени натяжения (0,6 мм) кромка качественно отштампованной пластины деформируется незначительно и равномерно прилегает к трубе.
Выводы
В результате проведённого исследования выявлены недостатки, возникающие при изготовлении и фиксации пластин на трубе: большой радиус перехода от плоскости к кромке, большие зазоры и неравномерная, с разрывами посадка пластин на трубу. Рекомендуется изменить форму пластин в соответствии с размерами на рис. 1.
Выбрана оптимальная степень натяжения пластин при дорновании, равная 0,6 мм, при которой экспериментальные конвекторы показали наибольшую тепловую мощность. Данное обстоятельство обусловлено обеспечением наибольшей площади прилегания кромки пластины к трубе и минимального разрыва металла по краю кромки.
Устранение рассмотренных недостатков и использование приведённых рекомендаций в производстве отопительных приборов позволит повысить качество выпускаемых конвекторов, обеспечить более высокую тепловую мощность и конкурентоспособность среди аналогичной продукции других производителей.
About the authors
Sergej A. Anciferov
Togliatti State University
Email: salan63@mail.ru
ORCID iD: 0000-0002-4210-3185
Senior Lecturer of Engineering Equipment Center, Institute of Architecture and Civil Engineering
Russian Federation, 445020, Russia, Togliatti, Ushakova str., 59Elena V. Chirkova
Togliatti State University
Email: chirkovaev@mail.ru
ORCID iD: 0000-0002-4159-3426
PhD in Engineering Science, Associate Professor, assistant professor of engineering equipment center, Institute of Architecture and Civil Engineering
Russian Federation, 445020, Togliatti, Ushakova str., 59Aleksej V. Pryadilov
Togliatti State University
Email: limitov@yandex.ru
PhD in Engineering Science, Associate Professor, assistant professor of Chair of Industrial electronics, Institute of mechanical engineering
Russian Federation, 445020, Togliatti, Ushakova str., 57Lyubov' V. Goshkoderya
Togliatti State University
Author for correspondence.
Email: lyubovgoshkoderya@yandex.ru
Master student of engineering equipment center, Institute of Architecture and Civil Engineering
Russian Federation, 445020, Togliatti, Ushakova str., 59References
- Pis'mo Ministerstva promyshlennosti i torgovli Rossijskoj Federacii ot 4 oktyabrya 2019 goda № 69306/17 «O vvedenii obyazatel'noj sertifikacii otopitel'nyh priborov - radiatorov otopleniya i konvektorov otopitel'nyh» [Letter of the Ministry of Industry and Trade of the Russian Federation dated October 4, 2019, no. 69306/17 «On the introduction of mandatory certification of heating devices - heating radiators and heating convectors»].
- Federal'nyj zakon ot 23 noyabrya 2009 g. № 261-FZ «Ob energosberezhenii i o povyshenii energeticheskoj effektivnosti i o vnesenii izmenenij v otdel'nye zakonodatel'nye akty Rossijskoj Federacii» [Federal Law no. 261-FZ of November 23, 2009 «On Energy Saving and Improving Energy Efficiency and on Amendments to Certain Legislative Acts of the Russian Federation»].
- Sasin V.I., Bershidskij G.A., Prokopenko T.N., Kushnir V.D. Parameters of heating devices according to Russian standards. AKVA-TERM [AQUA-TERM], 2013, no. 5, pp. 71-73. (in Russian)
- Sasin V.I. , Prokopenko T.N., Shvecov B.V., Bogackaja L.A. Rekomendacii po primeneniju konvektorov bez kozhuha «Akkord» i «Sever» [Recommendations for the use of convectors without casing «Akkord» and «Sever»]. Moscow, NIIsantehniki Publ., 1990.
- Bershidskij G.A., Poz M.Ja. Some questions of the method of thermotechnical testing of heating appliances. AVOK: Ventiljacija, otoplenie, kondicionirovanie vozduha, teplosnabzhenie i stroitel'naja teplofizika [ABOK: Ventilation, heating, air conditioning, heat supply and building thermal physics], 2017, no. 3, pp. 64-80. (in Russian)
- Sasin V.I., Bershidskij G.A., Prokopenko T.N., Shvecov B.V. The current testing methodology for heating appliances - is it necessary to adjust? AVOK: Ventiljacija, otoplenie, kondicionirovanie vozduha, teplosnabzhenie i stroitel'naja teplofizika [ABOK: Ventilation, heating, air conditioning, heat supply and building thermal physics], 2007, no. 4, pp. 46-51. (in Russian)
- Antsiferov S.A., Prjadilov A.V., Chirkova E.V. How voltage spikes affect the accuracy of reading Convector rated heat flux. IOP Conf. Series: Materials Science and Engineering, 2020, vol. 753, art.no. 032028 doi: 10.1088/1757-899X/753/3/032028
- Antsiferov S.A., Usmanova E.A. Chirkova E.V. Development and testing of a steel regulating thermostatic valve. IOP Conf. Series: Materials Science and Engineering, 2019, vol. 698, art.no. 066013 doi: 10.1088/1757-899X/698/6/066013
Supplementary files
















