Analysis of organizational features of the work of assembly cranes in cramped conditions construction
- Authors: Zorina M.A.1, Ryazanova G.N.1
-
Affiliations:
- Samara State Technical University
- Issue: Vol 12, No 2 (2022)
- Pages: 34-40
- Section: TECHNOLOGY AND CONSTRUCTION ORGANIZATION
- URL: https://journals.eco-vector.com/2542-0151/article/view/108752
- DOI: https://doi.org/10.17673/10.17673/Vestnik.2022.02.06
- ID: 108752
Cite item
Full Text
Abstract
The possibilities of placing erection cranes in cramped conditions are considered. The factors for determining the type of crane and the conditions for its operation at the construction site are given. The principles of determining the conditions of tightness of the construction site in accordance with the regulatory documentation are shown. The possibilities of limiting the boundaries of the dangerous zone of the crane are considered. The designs of various cranes are analyzed from the point of view of their placement in cramped conditions. Data are given on the features of the use of bottom-slewing and top-slewing tower cranes in the construction of civil buildings of different heights. The possibility of replacing tower cranes with fast-mounted ones during the construction of low-rise public buildings is being considered. Recommendations are given on the placement of cranes of various designs, the definition of the technological sequence of the construction of the building.
Full Text
Организационные особенности строительного производства рассматриваются при проектировании ПОС (проект организации строительства) и ППР (проект производства работ). Одной из основных задач специалистов, занимающихся технологическим проектированием, является размещение на строительной площадке основного грузоподъемного оборудования – монтажных кранов.
Основополагающими факторами для определения типа крана являются конструктивные особенности возводимого или реконструируемого здания. Так, для монтажа многоэтажных зданий применяются башенные краны. Для монтажа общественных зданий значительных размеров в плане могут применяться как башенные, так и самоходно-стреловые краны. Промышленные и сельскохозяйственные здания обычно монтируют при помощи самоходно-стреловых кранов. По решению проектировщика могут быть применены быстромонтируемые краны, козловые краны или комплекты различных типов кранов. Кроме того, в строительстве для подъема конструкций могут бы применены мачты, вертолеты, домкраты и другие приспособления. Крановое оборудование может быть размещено на железнодорожных платформах или плавучих баржах.
Для принятия решения о том, какое грузоподъемное оборудование может быть применено, необходимо учесть размеры и параметры возводимого здания, стесненность условий строительства, возможности доставки, размещения, монтажа, установки и демонтажа строительного крана [1–4].
В силу сказанного изучение влияния особенностей ограниченной в пространстве строительной площадки на выбор монтажных кранов является актуальной задачей.
Целью настоящей работы является анализ и систематизация сведений о применяемых строительных машинах в ограниченных условиях строительной площадки [5–9].
Сегодня инженеры-строители очень часто сталкиваются с проблемами размещения на строительной площадке монтажных кранов. Это часто обусловлено значительной стесненностью условий производства работ при возведении и реконструкции зданий и сооружений в условиях городской застройки. С аналогичными проблемами могут столкнуться проектировщики ПОС и ППР при реконструкции и техническом перевооружении объектов и расширении действующих предприятий. Критерии стесненности условий производства работ определяются согласно Постановлению Госстроя России от 05.03.2004 № 15/1 (ред. от 16.06.2014) «Об утверждении и введении в действие Методики определения стоимости строительной продукции на территории Российской Федерации» (вместе с «МДС 81-35.2004...»). В соответствии с данными документами стесненные условия в застроенной части городов характеризуются наличием трех из указанных ниже факторов:
- интенсивное движение городского транспорта и пешеходов в непосредственной близости от места работ, обусловливающих необходимость строительства короткими захватками с полным завершением всех работ на захватке, включая восстановление разрушенных покрытий и посадку зелени;
- разветвленная сеть существующих подземных коммуникаций, подлежащих подвеске или перекладке;
- жилые или производственные здания, а также сохраняемые зеленые насаждения в непосредственной близости от места работ;
- стесненные условия складирования материалов или невозможность их складирования на строительной площадке для нормального обеспечения материалами рабочих мест;
- при строительстве объектов, когда плотность застройки объектов превышает нормативную на 20 % и более;
- при строительстве объектов, когда в соответствии с требованиями правил техники безопасности, проектом организации строительства предусмотрено ограничение поворота стрелы башенного крана.
При возведении гражданских многоэтажных зданий башенные краны могут размещаться стационарно или передвигаться по подкрановым путям. Выбор способа установки крана зависит от обеспечения зоны действия крана и сменной производительности. Очень низкая производительность крана может привести к несоблюдению сроков выполнения строительства. Поэтому на объекте может быть размещено несколько башенных кранов или кранов разных типов.
Важным аспектом при выборе башенного крана является положение механизма вращения стрелы. Существуют нижнеповоротные и верхнеповоротные башенные краны. Краны с поворотной башней легко монтируются и демонтируются, у них повышенная устойчивость. Но их невозможно прикрепить к зданию. Высота подъема крюка ограничена конструктивной высотой свободного стояния крана. Кроме того, у этих кранов обычно невысокие грузоподъемность и вылет стрелы.
У верхнеповоротных кранов башня неповоротная. У этих кранов обычно более высокая грузоподъемность. Они дают возможность подавать более тяжелые грузы на большую высоту. Кран с неповоротной башней может быть использован как приставной, и это позволяет наращивать его высоту по мере возведения объекта. Башня приставных кранов закрепляется к конструкциям строящегося сооружения. Это могут быть монолитные или стальные элементы конструкций здания. В случае, если здание запроектировано со сборными перекрытиями, в местах крепления тяг крана необходимо запроектировать в перекрытии монолитные участки. Следует заметить, что крепление приставных башенных кранов можно производить и за другие несущие конструктивные элементы зданий.
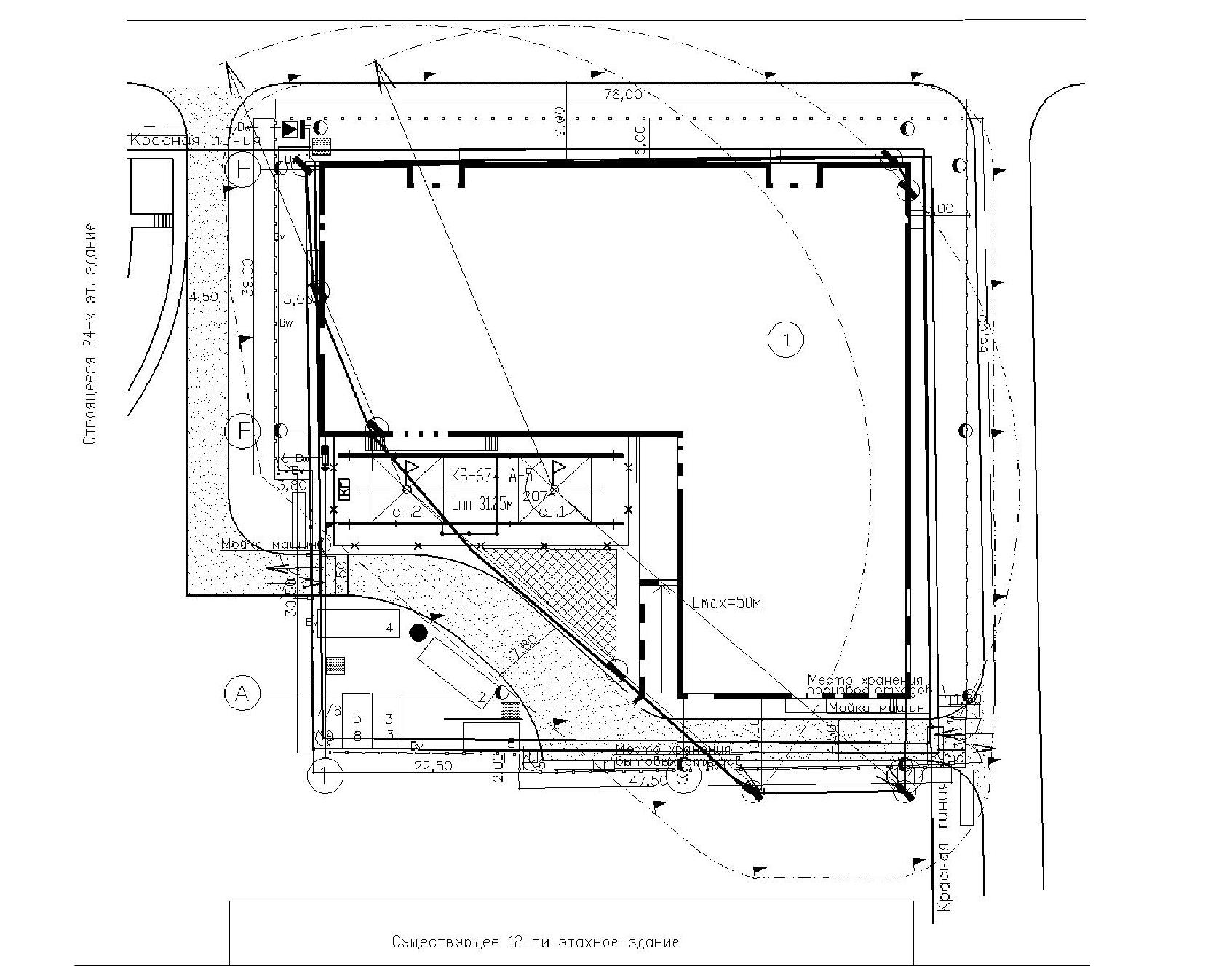
При производстве работ в городской застройке важной проблемой могут стать здания, находящиеся в непосредственной близости от строительной площадки. Такие здания могут попасть в зону действия монтажного крана. В таких случаях башню крана выполняют так, чтобы его стрела проходила над существующими сооружениями или проектируют ограничение поворота стрелы. Так же поступают, если стрела проектируемого крана пересекает зону действия крана, работающего на рядом расположенной строительной площадке. При этом на стройгенплане необходимо показать угол ограничения поворота стрелы крана, знаки и линию ограничения переноса груза. Линия ограничения переноса груза показывает границы вылета крюка крана, которая обеспечивается расчетами и фиксируется датчиком вылета груза. Такая система обеспечения ограничения вылета стрелы является координатной защитой. Специалисту, занимающемуся технологическим проектированием, необходимо учесть, что граница линии ограничения переноса груза должна включать в зону работы крана место складирования конструкций (открытый склад) и место разгрузки автотранспорта. Данная ситуация показана на рис. 1.
Рис.1. Схема установки крана в стесненных условиях с устройством координатной защиты вылета крюка и ограничением угла поворота стрелы
Правильно спроектированная линия ограничения переноса груза позволяет значительно сократить границы опасной зоны действия крана. За пределами опасной зоны должны находиться все временные бытовые помещения. Она также не должна выходить за пределы границ строительной площадки.
Граница опасной зоны действия крана рассчитывается в соответствии с требованиями приложения 11 к Правилам по охране труда при работе на высоте [3, 10], с учетом расстояния отлета груза, в случае перемещения его краном, при его падении. Уменьшить расстояние отлета груза можно запроектировав зоны, в пределах которых запрещается поднимать груз выше оговоренной в проекте высоты. Обычно это зоны разгрузки грузов и хранения материалов. Такие зоны должны быть обозначены на схемах производства работ и стройгенпланах. На них должна быть указана максимальная допустимая высота подъема груза.
В соответствии с РД-11-06-2007 [11] можно уменьшить размеры опасной зоны действия крана, предусмотрев следующие мероприятия:
- установить ограничители поворота стрелы крана;
- установить координатную защиту крана;
- скорость поворота стрелы крана в сторону границы рабочей зоны должна быть ограничена до минимальной при расстоянии от перемещаемого груза до границы зоны менее 7 м;
- перемещение груза на участках, расположенных на расстоянии менее 7 м от границы опасных зон, следует осуществлять с применением предохранительных или страховочных устройств, предотвращающих падение грузов;
- по периметру здания выполнить защитный экран высотой выше высоты подъема крюка.
При возведении высотных зданий можно применить самоподъемные краны, которые устанавливаются внутри здания или снаружи. Эти краны поднимаются по мере возведения здания. Причем они сами наращивают элементы своей башни или передвигают ее по конструкциям здания. Внутри здания краны обычно устанавливаются в шахту лифта. Причем в настоящее время выпускаются краны с размерами башни от 1,6×1,6 до 1,9×1,9 м. Их изготавливают для узких лифтовых шахт. Снаружи конструкции крана «навешивают» на элементы здания или сооружения. Проектировщикам, проектирующим подобное размещение крана, необходимо проверить несущую способность конструкций здания, на которые опирается кран.
Самоподъемные краны, установленные внутри здания, были применены при строительстве первых высотных зданий в Москве.
Рис.2. Строительство первых высотных зданий в Москве при помощи самоподъемных кранов
В последнее время на строительном рынке появились CITY-краны. Краны «CITY» класса проще использовать в плотной городской застройке. К таким кранам относятся мобильные башенные краны, мобильные автокраны «CITY» класса.
Рис.3. Мобильный башенный кран
Очень часто, в связи со стесненностью условий, башенный кран не может выполнить весь комплекс работ по строительству объекта. Тогда часть конструкций монтируется самоходно-стреловым краном, а часть башенным краном. Для удачного совмещения работы различных типов кранов объект должен быть разделен на конструктивные блоки, а производство работ на циклы. Так, нулевой цикл обычно выполняется самоходно-стреловым краном. Этот же кран может вести работы до уровня второго этажа. Но иногда строительная площадка настолько ограничена в размерах, что по периметру здания самоходно-стреловой кран пройти не сможет, не выйдя за пределы отведенной территории. Это обычно происходит, если подземный паркинг занимает практически всю отведенную территорию. В этом случае самоходно-стреловой кран возводит конструкции подземной части здания по захваткам. Причем часть захваток может быть выполнена краном, установленным на перекрытии уже возведенной подземной части здания. При этом необходимо обязательно проверить, выдержит ли перекрытие подобную нагрузку. Если предусматривается такая последовательность выполнения работ, то лучше размещать кран на покрытии паркинга, выходящего за контуры многоэтажной части здания. Дело в том, что это покрытие обычно рассчитано на размещение на нем пожарной машины с запасом воды, что по весу меньше веса самоходно-стрелового крана с грузом. Но, все равно, необходимо тщательно проверить несущую способность покрытия паркинга.
При описанных выше условиях возведения здания перед проектировщиком встает вопрос, какая возможна последовательность выполнения работ. Обычно применяются два варианта:
- разрабатывается котлован и самоходно-стреловым краном возводится подземная часть паркинга, находящаяся под многоэтажной частью здания. Устанавливается башенный кран. Возводятся конструкции многоэтажной надземной части здания. Демонтируется башенный кран. Разрабатывается грунт для устройства остальной части паркинга. При помощи самоходно-стрелового крана возводятся конструкции оставшейся части паркинга;
- разрабатывается котлован под всю конструкцию паркинга. При помощи самоходно-стрелового крана устраивается монолитная плита и ограждающие конструкции паркинга. Монтируется башенный кран. Для доставки крана к месту установки обязательно должен быть оставлен пандус. Если пандус предусмотрен проектом, то сначала бетонируется его конструкция, а затем доставляется кран. Возводятся конструкции паркинга (кроме той части, где установлен кран, и над пандусом, по которому будут увозить демонтируемый кран). Демонтируется башенный кран. При помощи самоходно-стрелового крана устраивается оставшаяся часть паркинга.
При установке башенного крана необходимо учитывать не только условия его монтажа, но и демонтажа. Дело в том, что демонтаж крана производится после строительства здания и для опускания стрелы крана может не остаться места. Чаще всего такая ситуация происходит при устройстве зданий «колодезного» типа.
Установка башенных кранов в стесненных условиях может вызвать значительные затруднения, в связи с тем что ширина подкрановых путей башенных кранов может быть от 6 до 8 м. Кроме того, база крана и радиус поворотной платформы могут выйти за подкрановые пути. Очень важным обстоятельством является то, что при доставке башенных кранов длина их в транспортном положении может достигать 30 м.
Для монтажа конструкций общественных зданий могут подойти краны, на установку которых потребуется меньше места. Такими кранами являются короткобазовые самоходно-стреловые краны, быстромонтируемые самоходные краны и некоторые автомобильные краны. Так, например, автомобильные краны КС Т-7 и КС Т-5АМ1, выполненные на базе КамАЗ, в башенно-стреловом исполнении имеют уменьшенный опорный контур 3,75×3,9 и 3,45×5,0 м соответственно. База крана не выходит за опорный контур. Длина кранов в транспортном положении 12 м.
Короткобазовые краны очень удобны для городского строительства. Их длина в транспортном положении колеблется от 7,5 до 11 м. Опорный контур таких кранов составляет от 6×6 до 7×7 м. Краны достаточно маневренны и легко проходят по узким городским улицам. На строительном рынке достаточно широко представлены короткобазовые мобильные автокраны «CITY» класса. На таких кранах устанавливаются многосекционные телескопические стрелы с укороченными секциями. Их длина в транспортном положении колеблется от 6,5 до 7 м. В России эти краны были представлены самарским заводом «Сокол» (по лицензии германской фирмы Compact Truck). Но у данных кранов опорный контур составляет 6×6 м. Некоторые производители учли данную проблему. Так, фирма Terex Demag выпускает краны данного класса с двух- или трехсекционными выносными опорами. Это позволяет работать в более стесненных условиях, но – с более низкими грузоподъемностями. А у кранов Kato размеры опорного контура могут изменяться в трех вариантах.
Рис. 4. Короткобазовый самоходно-стреловой кран
В последнее время проектировщики для возведения невысоких зданий в условиях подъема нетяжелых грузов стали применять быстромонтируемые краны. Такие краны имеют опорную площадку от 4×4 до 5×5 м.
Рис. 5. Быстромонтируемый башенный кран
Пример установки такого крана показан на рис. 6. Объект возводится в крайне стесненных условиях, осложненных тем, что рядом проходит оживленная городская магистраль и устроены места массового прохода людей. Рядом со строительной площадкой расположена остановка общественного транспорта. С северной стороны строительной площадки находится городская площадь, а с западной – городской парк. Быстромонтируемый кран размещен на площадке шириной 5,6 м. Координатная защита выноса крюка крана с грузом позволит обеспечить безопасность движения людей вдоль строительной площадки.
Рис. 6. Пример установки быстромонтируемого башенного крана в стесненных условиях производства работ
Кроме перечисленных выше аспектов, проектировщику ПОС и ППР следует учесть наличие предлагаемой им техники в регионе и у заказчика. Аренда, закупка, доставка кранов в других регионах или странах может привести к значительному удорожанию строительства.
Выводы. 1. Строительство в условиях ограниченного пространства накладывает существенные ограничения на применяемые машины и механизмы. В частности, в условиях стесненной строительной площадки возникает необходимость в применении машин с особенными характеристиками.
- Современный рынок предложений строительных машин позволяет осуществить выбор этих машин, в том числе кранов, с характеристиками, практически удовлетворяющими все требования, предъявляемые стесненными условиями строительной площадки.
- При технологическом проектировании в стесненных условиях одной из основных проблем является размещение кранового оборудования. Проектировщику ПОС и ППР необходимо учесть не только конструктивные особенности здания, но и возможности доставки, размещения на строительной площадке, монтажа и демонтажа кранов, возможности вывоза крана с объекта. Поэтому строители ужесточают свои требования к грузоподъемной технике. Современные производители строительной техники предлагают очень широкий выбор строительных кранов. Это позволяет в самых сложных случаях стесненных условий строительства объекта организовать работу монтажного крана.
About the authors
Marina A. Zorina
Samara State Technical University
Author for correspondence.
Email: zorina1804@mail.ru
Academy of Architecture and Civil Engineering, Senior Lecturer of the Technology and Organization of Construction Production Chair
Russian Federation, 443100, Samara, Molodogvardeyskaya str., 244Galina N. Ryazanova
Samara State Technical University
Email: ryazanovagn55@mail.ru
Academy of Architecture and Civil Engineering, PhD in Engineering Science, Associate Professor of the Technology and Organization of Construction Production Chair
Russian Federation, 443100, Samara, Molodogvardeyskaya str., 244References
- Decree of the Government of the Russian Federation No. 87. Regulation on the composition of sections of design documentation and requirements to their content. 2008. (In Russian)
- Rules on Occupational Safety in Construction. Order of the Ministry of Labor No. 336. 2015. (In Russian)
- Occupational Health and Safety Rules for Work at Height. Order of the Ministry of Labor No. 155Н. 2015. (In Russian)
- Fire Safety Regulations in the Russian Federation. Decree of the Government of the Russian Federation No. 390. 2012. (In Russian)
- Krany CITY (Siti) – dlya ispol'zovaniya v gorodskikh usloviyakh (CITY cranes - for urban use) Available at: http://ecrane.ru/cranenews/101-citycranes.html (accessed 11 October 2021)
- Sravnenie bashennykh kranov razlichnykh tipov (Comparison of tower cranes of different types) Available at: https://os1.ru/article/9068-sravnenie-bashennyh-kranov-razlichnyh-tipov-verhne-ili-nijnepovorotniy-vybor-ne-ocheviden (accessed 11 October 2021)
- Siti-krany – korotkobazovye gruzopod"emnye mashiny (City cranes – short-base lifting machines) Available at: https://stefk.biz/articles/7-siti-krany-korotkobazovye-gruzopodemnye-mashiny.html (accessed 11 October 2021)
- Obzor korotkobaznykh kranov – Osnovnye sredstva (Short-Cycle Cranes Overview – Fixed Assets) Available at: https://os1.ru/article/6859-obzor-korotkobaznyh-kranov-vse-delo-v-baze (accessed 11 October 2021)
- Available at: http://www.globalcrane.ru/katalog/list/bashennye-krany-hup/potain-hup-32-27 (accessed 11 October 2021)
- TsNIIOMTP Construction Mechanization. Operation of tower cranes in confined conditions. MDS 12-19.2004. Moscow, 2004. (In Russian)
- RD-11-06-2007. Methodological Recommendations on the Procedure for Development of Work Execution Plans by Lifting Machines and Process Flow Charts for Loading and Unloading Operations. 2007. (In Russian)
Supplementary files









