Архитектура рабочего поселка Куйбышевского металлургического завода в 1950-е годы
- Авторы: Самогоров В.А.1
-
Учреждения:
- Самарский государственный технический университет
- Выпуск: Том 12, № 4 (2022)
- Страницы: 172-181
- Раздел: ГРАДОСТРОИТЕЛЬСТВО. ПЛАНИРОВКА СЕЛЬСКИХ НАСЕЛЕННЫХ ПУНКТОВ
- URL: https://journals.eco-vector.com/2542-0151/article/view/128990
- DOI: https://doi.org/10.17673/Vestnik.2022.04.21
- ID: 128990
Цитировать
Полный текст
Аннотация
Рассматривается история строительства и особенности архитектурно-планировочной организации рабочего поселка Металлург, сформировавшегося рядом с индустриальным районом Безымянка на базе крупнейшего металлургического завода в 1950-е годы. Его архитектура отразила в себе черты сталинской архитектуры и соответствовала господствовавшим установкам того времени на освоение классического наследия. В результате была реализована еще одна версия социалистического города, основанная на прикреплении рабочих к производству. Планировочная организация рабочего поселка была основана на выявлении главной магистрали с объектами социально-бытового обслуживания, квартальном принципе жилой застройки с внутренними дворовыми пространствами, единой стилистике зданий.
Полный текст
Введение. Рабочий поселок, возникший в 1950-е гг. на основе крупнейшего металлургического завода, отразил в своей структуре подходы и принципы проектирования соцгородов советского государства рассматриваемого периода. Наряду с другими рабочими поселками он включался в архитектурно-планировочную структуру города Куйбышева, определенную генеральным планом 1949 г., формируя дисперсную городскую ткань. Территориально поселок примыкал с северо-востока к индустриальному району Безымянка и функционально был связан с металлургическим заводом. Его архитектура отразила в себе черты сталинской классики и соответствовала господствовавшим установкам того времени на освоение исторического наследия. В результате была реализована еще одна версия социалистического города, отразившая в своей структуре идею прикрепления рабочих к производству. Планировочная организация рабочего поселка была основана на выявлении главной магистрали с объектами социально-бытового обслуживания, квартальном принципе жилой застройки с внутренними дворовыми пространствами, архитектура зданий отличалась единой стилистикой.
Цель статьи – исследовать эволюцию строительства этого важного для Самары (Куйбышева) градостроительного образования и выявить его архитектурно-планировочные особенности. Объектом рассмотрения является сам рабочий поселок, предметом – его архитектурно-планировочная структура. Границы исследования охватывают послевоенный период, вплоть до конца 1950-х годов. Методы исследования включали историко-генетический анализ формирования рабочего поселка и металлургического завода, комплексный подход и архивный поиск материалов, связанных с его строительством.
Основная часть. В 1946 г., еще до строительства металлургического завода, на месте рабочего поселка был запроектирован коттеджный поселок Кировского района города Куйбышева. Автором и главным архитектором проекта был А.Л. Каневский, проектная организация – Гипроавиапром Министерства авиационной промышленности СССР. Планировка улиц получила характерный поворот относительно существовавшей планировки улиц Кировского района, что было определено направлением железнодорожной ветки, построенной для строительства Куйбышевского гидроузла в районе поселков Управленческий и Красная Глинка. Впоследствии центральная улица коттеджного поселка превратилась в главную улицу рабочего поселка – проспект Металлургов, соединившись с городом по улице Вольской. Характерный излом на переходе улицы Вольской в проспект Металлургов появился из-за проходившей в этом месте железнодорожной ветки (рис. 1).
Рис. 1. Проект планировки коттеджного поселка Кировского района, Гипроавиапром, автор и главный архитектор площадки А.Л. Каневский, 1946
Строительство крупнейшего в Европе металлургического завода в городе Куйбышеве началось в 1951 г. Оно велось строительно-монтажным трестом № 11, а в 1953 г. был создан строительно-монтажный трест «Металлургстрой», главной задачей которого было ускоренное строительство завода. В этом же году первую продукцию дал ремонтно-механический цех. В начале 1955 г. был сдан в эксплуатацию фасонно-литейный цех, создана центральная заводская лаборатория. На момент строительства завода технологическое оборудование было самым мощным и современным в мире. Первым из основных цехов введен в эксплуатацию литейный. 4 ноября 1955 г. был отлит первый слиток, а с декабря 1955 г. литейный цех начал серийное производство слитков. В феврале 1956 г. заработал трубопрокатный цех. 28 декабря 1958 г. запущен самый крупный цех завода – прокатный. 5 июля 1960 г. правительственная комиссия приняла завод в эксплуатацию (рис. 2) [1].
Рис. 2. Куйбышевский металлургический завод (иилюстрация с сайта: pastvu.com/uploaded by ComradeBeria)
Вместе с заводом началось строительство жилого поселка, возводились жилые дома для работников завода, школы, магазины, дома культуры и другие объекты. Первые дома металлургического завода были построены в 1952 г. трестом «Промстрой». Это были общежития, построенные по типовым проектам, за придание им более монументального вида выступил главный архитектор города А.И. Матвеев. Так, на проспекте Металлургов появились «Пики» – общежития с шатровыми завершениями. Директор завода П.П. Мочалов в своей книге «Река моей жизни» называл эти здания – «дома с итальянскими башенками» (пр. Металлургов, 74, 76). Застройку городка металлургов вел трест «Металлургстрой», которым также руководил директор завода П.П. Мочалов. От нынешней площади, носящей его имя, и до металлургического завода проложен бульвар, который по обеим сторонам обстроен 5-этажными домами. К северу от жилой застройки был возведен стадион «Металлург», тогда еще с земляными трибунами.
Строительство жилого фонда, культурно-бытовых и спортивных объектов велось все последующие годы. На территории городка Металлургов располагалось 6 школ и 12 детских садов, открыты Клуб юных техников, музыкальная школа № 9. В городке Металлургов был представлен весь спектр советских специализированных магазинов, находившихся в непосредственной близости друг от друга: «Дом одежды», «Тысяча мелочей», «Океан», «Книжный магазин», «Гастроном». Городок Металлургов по многим показателям был «государством в государстве», обеспечивая своим жителям автономное существование.
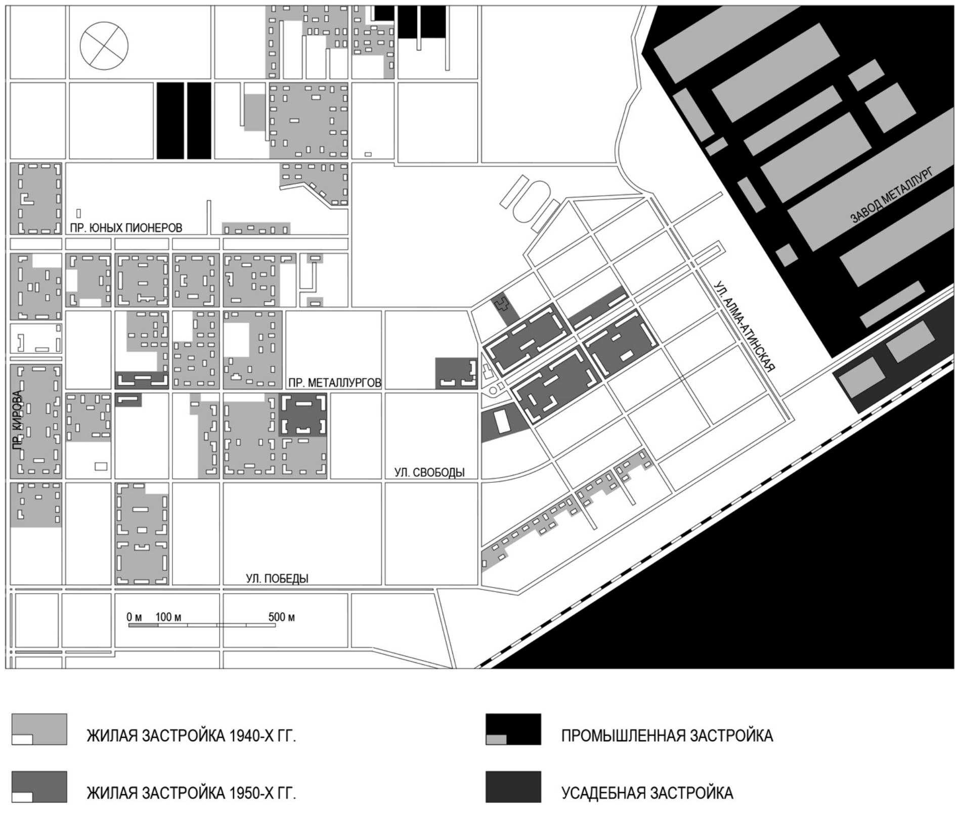
Планировочная структура жилого поселка ориентирована главной композиционной осью – проспектом Металлургов – на предзаводскую площадь Куйбышевского металлургического завода (КМЗ), которая разделяла промышленную территорию и жилую застройку. От треугольной площади (в настоящее время площадь им. П.П. Мочалова) с общественным центром района – кинотеатром «Октябрь» и Домом культуры «Металлург» – проспект Металлургов превращается в зеленый бульвар с зелеными курдонерами в квартальной застройке и общественными объектами в первых этажах жилых зданий. Общественный центр ориентирован на районный парк «50-летия Октября». Вторую композиционную ось района образует бульвар Юных Пионеров, соединивший Молодежный парк, парк «50-летия Октября» и стадион «Металлург» в единую систему. Планировочную структуру рабочего поселка формирует прямоугольная сетка улиц, которая меняет свое направление по улицам Елизарова и Марии Авейде. Большая часть жилых кварталов застроена типовыми 2-этажными зданиями 1940-х гг., центральный проспект Металлургов оформлен 5-этажной застройкой 1950-х гг. (рис. 3).
Рис. 3. Периодизация застройки рабочего поселка Металлург
Общежития, пр. Металлургов, 74, 76, архитектор Тарасов, 1951–1953. На основании Постановления Совета министров СССР от 22.12.1950 г. Куйбышевским горисполкомом было принято решение № 492 от 17.05.1951 г. об отводе в бессрочное пользование заводу п/я 630 (Металлургический завод им. Ленина) земельного участка в квартале № 40-41 Кировского района под застройку каменными 3-этажными домами для размещения строительных рабочих треста № 11 Министерства авиационной промышленности. В квартале планировалось построить 7 однотипных общежитий, здания № 5 и № 6 по ул. Сталинабадской (пр. Металлургов, 74, 76) были в их числе. Технический проект общежития (альбом А-168916) был разработан Гипроавиапромом и применялся повторно. Проект привязки разрабатывался Куйбышевским филиалом Гипроавиапрома и был утвержден заместителем министра авиационной промышленности (протокол № 24-51 от 21.04.1951 г.). Строительство велось строительным управлением № 1 стройтреста № 11 Министерства авиационной промышленности и было начато 1 сентября 1951 г., 12 января 1953 г. приемочная комиссия горисполкома подписала акт приемки в эксплуатацию 3-этажного каменного здания общежития с 64 комнатами. Это было общежитие коридорного типа на 250 человек с отдельными комнатами на 4 человека каждая. На всех этажах предусмотрены комнаты с плитой для принятия пищи. В настоящее время здание сохранило свое назначение – в нем также размещается общежитие. Здание кирпичное с наружными стенами толщиной 550 мм. Стены первого этажа выложены из кирпича марки М-75 на теплом растворе, стены второго и третьего этажей – из сплошных шлакоблоков М-35 на холодном растворе с облицовкой в полкирпича кирпича и засыпкой уширенного шва шлаком. Кровля – энтернитовая по деревянным стропилам. Междуэтажные и чердачное перекрытия сделаны по деревянным балкам на металлических прогонах (рис. 4) [2, 3].
Рис. 4. Общежития на проспекте Металлургов («Итальянские пики»), 74, 76, Гипроавиапром, архитектор Тарасов, 1951–1953
Жилой дом, пр. Металлургов, 76-А, 1951–1953. Здание располагалось в квартале № 40-41 Кировского района г. Куйбышева, строилось для размещения продуктового магазина и должно быть построено между общежитиями № 5 и № 6 по ул. Сталинабадской (пр. Металлургов). Проект здания СПБ-С-16265 был разработан Куйбышевским филиалом Гипроавиапрома в 1952 г. и утвержден директором завода п/я 630 П.П. Мочаловым 12.05.1952 г. Здание магазина одноэтажное с подвалом под всем зданием. Фундаменты – ленточные, бутовые; стены – кирпичные, оштукатуренные; перекрытия над подвалом – железобетонные, чердачные перекрытия – деревянные. Кровля здания – железная по обрешетке из брусьев. Перегородки – деревянные, щитовые, под штукатурку. Магазин оборудовался центральным отоплением, водопроводом, канализацией, телефоном и радио. 3 июля 1953 г. здание магазина было введено в эксплуатацию [4–6].
Жилой дом, пр. Металлургов, 84, архитектор Г.А. Рыбина, 1952–1953. Жилой 4-этажный дом в квартале № 43 Кировского района г. Куйбышева по ул. Сталинабадской (пр. Металлургов) строился также для работников завода п/я 630 (Металлургический завод им. Ленина). Проект здания был разработан Куйбышевским филиалом Гипроавиапрома и утвержден заместителем министра авиационной промышленности А.А Зориным 15.05.1952 г. Строительство вело СМУ-3 треста «Металлургстрой». Сооружение здания было начато в мае 1952 г., 31 декабря 1953 г. приемочная комиссия горисполкома подписала акт приемки в эксплуатацию кирпичного 4-этажного жилого дома с размещением в первом этаже магазина. Все здание имеет 6 секций и 53 квартиры [7].
Жилой дом, ул. Строителей, 22 / ул. Гвардейская, 16, 1954. Пятиэтажное здание построено в классическом стиле, из кирпича. Главные фасады асимметричны. Первый этаж оформлен рустом и завершается горизонтальной тягой с зубцами. Угол здания акцентирован балконом в уровне четвертого этажа. Оконные проемы на первом этаже – прямоугольные, с наличниками с замковыми камнями и подоконными сандриками на кронштейнах. По ул. Гвардейской имеются оконные и дверной проемы с циркульными завершениями. В уровне второго этажа часть оконных проемов оформлена рустованными наличниками. Окна третьего этажа имеют простую прямоугольную форму без декоративного оформления. Окна четвертого этажа с сандриками и поясом ионик, применены оконные проемы с архивольтами. Завершает фасады карниз с поясами ионик и зубцов.
Для подготовки собственных кадров металлургического завода был открыт Строительно-металлургический техникум. Газета «Волжская коммуна» писала: «В одном из светлых просторных зданий нового замечательного архитектурного ансамбля, что высится вдоль Кировского шоссе, первого сентября открылся строительно-металлургический техникум» [8].
Жилой дом, пр. Металлургов, 79, архитектор В.А. Ларионов, 1952–1955. Жилой 5-этажный дом размещался по ул. Сталинабадской в квартале № 23 Кировского района г. Куйбышева. Проект был разработан Куйбышевским филиалом Гипроавиапрома, согласован с главным архитектором г. Куйбышева 05.08.1952 г. и утвержден министром авиационной промышленности (протокол № 2853 от 11.10.1952 г.). На первом этаже запроектированы детские ясли на 66 мест, под всем зданием предусмотрен подвал. Фундамент здания – бутовый, стены – кирпичные, верхние два этажа возведены из шлакоблоков с облицовкой в полкирпича. Перекрытия и перегородки – деревянные, полы – дощатые. Фасады здания оштукатурены, за исключением дворового, кровля – железная. Строительство вело СМУ-3 треста «Металлургстрой». Разрешение на производство работ № 215 получено 30 сентября 1953 г. Сооружение здания было начато в августе 1953 г., 5 ноября 1955 г. приемочная комиссия горисполкома подписала акт приемки в эксплуатацию 5-этажного каменного дома из трех секций с 32 квартирами [9, 10].
О ходе строительных работ в поселке Металлургов «Волжская коммуна» писала: «На Крымской улице сооружен 3-этажный жилой дом на 14 квартир. В первом этаже здания отведено помещение под детский сад на 50 детей. На Сталинабадской улице, в первом этаже нового 4-этажного дома на 27 квартир разместятся детские ясли. Заканчиваются отделочные работы в 72-квартирном доме по Сталинабадской улице и в 120-квартирном здании на улице Победы» [11]. И еще: «Поселок «Металлургстроя». Прошло всего пять лет, а этот уголок Кировского района города Куйбышева стал совершенно неузнаваемым. На месте пустыря возникли огромные, радующие глаз жилые здания, пролегли прямые широкие улицы. За пятилетие здесь введено в строй около 30 тысяч квадратных метров благоустроенной жилой площади. Только в этом году воздвигнуто два 5-этажных жилых дома; еще два 4-этажных здания будут заселены к новому году. К услугам новоселов все коммунальные удобства. …
Строители Металлургстроя построили клуб «Октябрь», где жители поселка смогут посмотреть новые кинофильмы, послушать концерты артистов, выступления художественной самодеятельности. По утрам сотни девочек и мальчиков направляются к 5-этажной школе, а дети дошкольного возраста – в два детских сада. Скоро откроются еще два детских сада на 66 мест каждый. В поселке действуют поликлиника со стационаром и аптека. В этом году заканчивается строительство бани-прачечной. В большинстве построенных зданий открыты магазины. … Поселок Металлургстроя связывается с центром Кировского района пятикилометровой трамвайной линией» (рис. 5) [12, 13].
Рис. 5. Застройка площади Металлургов, 1959 [13]
Кинотеатр «Октябрь», пр. Металлургов, 78, 1955. В 1955 г. в Кировском районе трестом «Металлургстрой» был сдан в эксплуатацию заводской клуб «Октябрь». Государственная комиссия оценила работу на «отлично». Зрительный зал был рассчитан на 500 человек. Прямоугольное в плане здание главным фасадом выходит на площадь П.П. Мочалова. Входная зона отделена от площади аркадой. Треугольный фронтон завершал композицию главного фасада (рис. 6).
Рис. 6. Жилой дом, пр. Металлургов, 77, Куйбышевский филиал Гипроавиапрома, архитекторы А.А. Тощаков, Н.Б. Кузнецов, 1953–1957
Газета «Волжская коммуна» так описывала постройку нового клуба. «Недавно трест «Металлургстрой» сдал в эксплуатацию здание нового клуба «Октябрь»... Светлое, чуть зеленоватое здание привлекает взор. Скромное, без излишней вычурности, оно выделяется своей строгой красотой. Из просторного вестибюля стеклянные двери ведут в нижнее фойе. Масса света, льющегося в высокие окна, и кремоватый оттенок создают в фойе впечатление солнечного освещения. Красивые лестницы ведут в верхнее фойе. Оно отделано в синеватых тонах. Мягкие кресла, два круглых столика придают ему особый уют. В центре – стенд, который рассказывает о лучших людях и о работе треста. Красивый и хорошо оборудованный зрительный зал рассчитан на 560 мест» [14].
Жилой дом, пр. Металлургов, 80, Куйбышевский филиал Гипроавиапрома, архитекторы В.А. Голосов, Н.Б. Кузнецов, 1953–1957. Жилой 4-5-этажный дом в квартале № 42, 43 на углу улиц Сталинабадской (пр. Металлургов) и Крымской (ул. Марии Авейде) Кировского района г. Куйбышева строился для работников завода п/я 630. При проектировании частично был использован проект дома по ул. Победы в квартале № 718–719, выполненный архитектором Н.Б. Кузнецовым. Здание проектировалось 4-этажным, на углу улиц Сталинабадской и Крымской предусматривалось повышение до пяти этажей. В доме запроектировано 67 квартир, в первом этаже – два ателье (верхней одежды и модельной обуви) и районное отделение связи. При рассмотрении проекта архитектурной комиссией при начальнике Отдела по делам архитектуры Куйбышевского горисполкома было рекомендовано изменить планировку этажей над проездом, увязать фасад по ул. Сталинабадской с фасадом по ул. Крымской (обработка наличников окон 4-го этажа), «сильнее решить» верх эркеров и въездную арку за счет архитектурного оформления. Проект был утвержден отделом экспертиз Министерства авиационной промышленности 12 сентября 1953 г. В процессе строительства, которое вело СМУ № 3 треста «Металлургстрой», в проект были внесены изменения по отделке фасада в связи с постановлением о ликвидации излишеств. Разрешение на производство работ было выдано 10 апреля 1957 г., сооружение здания начато в ноябре 1955 г. 29 июня 1957 г. приемочная комиссия горисполкома подписала акт приемки в эксплуатацию каменного 4–5-этажного дома из 8 секций с 67 квартирами [5, 15].
Жилой дом, пр. Металлургов, 77, Куйбышевский филиал Гипроавиапрома, архитекторы А.А. Тощаков, Н.Б. Кузнецов, 1953–1957. Жилой 4–5-этажный дом в квартале № 23–24 на углу улиц Сталинабадской (пр. Металлургов) и Крымской (ул. Марии Авейде) Кировского района г. Куйбышева строился для работников завода п/я 630. Проект здания был разработан Куйбышевским филиалом Гипроавиапрома. За основу архитектор А.А. Тощаков взял проект архитектора Н.Б. Кузнецова, по которому был выстроен дом № 1 в квартале № 718–719 по ул. Победы. Здание, рассчитанное на 60 квартир, проектировалось 4-этажным на всем протяжении, за исключением угловой части на углу улиц Сталинабадской и Крымской, где была запроектирована башня в пять этажей. В первом этаже здания располагался магазин для торговли промтоварами. 22 июля 1953 г. проект был согласован начальником 12-го Главного управления Минавиапрома СССР и главным архитектором города Куйбышева. В процессе строительства, которое вело СМУ-3 треста «Металлургстрой», произошли некоторые отступления от проекта в связи с постановлением о борьбе с излишествами в архитектуре. Строительство началось в 1955 г. 11 октября 1956 г. приемочная комиссия горисполкома приняла от завода п/я № 630 четыре секции дома на 35 квартир, а 5 января 1957 г. – еще две секции жилого дома на 16 квартир. 15 февраля 1957 г. комиссия горисполкома приняла в эксплуатацию две секции жилого дома на 17 квартир (рис. 6) [5, 16].
Школа № 150, ул. Республиканская, 50, типовой проект, 1958. Школа была открыта 1 сентября 1958 г. в Кировском районе. Главным фасадом она выходит на ул. Республиканскую, задним фасадом – на ул. Енисейскую. Со стороны главного фасада организован школьный двор. Здание образует в плане букву П, ризалит с главным входом активно выдвинут в сторону двора. Школа имеет четыре этажа. Ризалит главного входа имеет двухчастную структуру. Верхние два этажа оформлены портиком с шестью коринфскими пилястрами. Входную композицию завершает треугольный фронтон. Здание построено из красного кирпича без отделки штукатуркой, что объясняется курсом на экономию строительства. Главный вход имеет обрамление в виде портала, между пилястрами размещены барельефы (рис. 7).
Рис. 7. Школа № 150, ул. Республиканская, 50 (типовой проект), 1958
К концу августа 1959 г. ансамбль площади Мочалова сформировался полностью. Вот что писал об этом архитектурном ансамбле самарский архитектор А.Г. Моргун: «Удачно складывалась застройка трапециевидной площади Металлургов, на которой в окружении добротных угловых зданий с башенными завершениями открыли Дворец культуры на 800 мест. Для его строительства использовали типовой проект, а отделку интерьеров осуществили местные архитекторы и скульпторы. Вместе с построенным напротив кинотеатром «Октябрь», вход в который подчеркивает строчная арочная лоджия, новый Дворец занял господствующее положение в ансамбле просторной площади и удачно вписался в озелененный сквер. Строгий восьмиколонный портик и две многофигурные скульптурные композиции придали ему черты монументальности».
Дворец культуры Металлургов, пр. Металлургов, 75, архитектор К. Барташевич, 1956–1959. 8 августа 1959 г. в Самаре открылся Дворец культуры металлургов. Он располагается на участке треугольной формы, на одной оси с ранее построенным кинотеатром «Октябрь». В результате образовалась площадь, центральная часть которой занята транспортной развязкой, а по торцам площади организованы въезд и выезд из рабочего городка Металлургов. В плане Дворец культуры представляет собой прямоугольник, со стороны главного фасада запроектирована входная группа, в центре размещается зрительный зал, в него ведут две парадные лестницы. Вокруг зрительного зала организованы коридоры, ведущие в репетиционные и служебные помещения. На третьем этаже располагается лекционный зал. Главный фасад оформлен 8-колонным коринфским портиком и фронтоном с советской символикой. Слева и справа от главного портика размещены скульптурные группы (скульптор А. Фролов). Здание приподнято на высокий пьедестал, а к входу ведут ступени на всю ширину центрального портика. Главный вход оформляют чугунные фонари. Здание оштукатурено. На втором этаже перед главным входом в зрительный зал со сценой располагается двухсветное фойе, оформленное коринфскими пилястрами из оселкового мрамора. В торцах фойе организованы смотровые галереи с балюстрадой. Потолок декорирован живописными орнаментами. По оси фойе размещены три бронзовые люстры (рис. 8).
Рис. 8. Дворец культуры Металлургов, пр. Металлургов, 75, архитектор К. Барташевич, 1956–1959
Газета «Волжская коммуна» писала: «В Кировском районе города Куйбышева открылся новый Дворец культуры металлургов. Прекрасное здание с большими кино- и театральными залами, с высокими светлыми фойе, является замечательным подарком трудящимся. В фойе помещены четыре большие картины куйбышевских художников С.П. Горинова, А.А. Кулаковского, В.З. Пурыгина и Ю.И. Филиппова. Картины называются «Спорт», «Сталинабадское шоссе», «Отдых» и «Труд» [17].
Вывод. История строительства рабочего поселка при металлургическом комбинате была в значительной степени историей противостояния городских властей, стремившихся силами могущественного ведомства решить задачу строительства социалистического города Куйбышева в границах основного пятна застройки Старого города, и руководства металлургического завода, сосредоточившего в своих руках огромные финансовые ресурсы, собственный строительный трест и средства на капитальное строительство, реализовавшего задачу создания собственного рабочего поселка при предприятии, что позволило закрепить в непосредственной близости от предприятия рабочую силу [18]. В результате был построен рабочий поселок при металлургическом заводе, архитектурно-планировочная организация застройки которого отвечала господствовавшим в 1950-е гг. принципам – созданию укрупненных жилых кварталов с внутренними дворами, обслуживанию населения объектами социально-бытового назначения в радиусе пешеходной доступности – детскими садами, школами, поликлиниками, домами культуры и другими, организации главной магистрали с объектами обслуживания в первых этажах жилых зданий, зелеными курдонерами, связывающими жилую зону с промышленным предприятием. Архитектурное оформление застройки отвечало общему принципу – освоению классического наследия.
Об авторах
Виталий Александрович Самогоров
Самарский государственный технический университет
Автор, ответственный за переписку.
Email: samogorov@mail.ru
кандидат архитектуры, профессор, заведующий кафедрой архитектуры, Академия строительства и архитектуры
Россия, 443100, г. Самара, ул. Молодогвардейская, 224Список литературы
- Куйбышевский металлургический завод имени В.И. Ленина. Внешторгиздат. Изд. № 3504 эс [Электронный ресурс] // Режим доступа: https://zavodfoto.dreamwidth.org/502591.html (дата обращения: 20.02.2021).
- ЦГАСО, ф. Р-56, оп. 51, д. 414.
- ЦГАСО, ф. Р-4407, оп. 2, д. 19, 27.
- ЦГАСО, ф. Р-56, оп. 51, д. 278.
- ЦГАСО, ф. Р-4407, оп. 2, д.19, 21.
- ЦГАСО, ф. Р-4761, оп.1, д. 2001.
- ЦГАСО, ф. Р-56, оп. 51, д. 450.
- Новый техникум // Волжская коммуна. 10.09.1954-4.
- ЦГАСО, ф. Р-56, оп. 51, д. 593.
- ЦГАСО, ф. Р-4407, оп.1, д. 22.
- Лапшин В. Новые дома и детские учреждения // Волжская коммуна. 05.01.1955-4.
- Для блага народа // Волжская коммуна. 02.12.1955-1.
- Волжская коммуна. 27.09.1959-2.
- Плешкова И. В новом клубе // Волжская коммуна. 18.03.1955.
- ЦГАСО, ф. Р-56, оп. 51, д. 752.
- ЦГАСО, ф. Р-56, оп. 51, д. 675, 748, 750.
- Новый Дворец культуры // Волжская коммуна. 28.08.1959-4.
- Самогоров В.А., Синельник А.К. Архитектура и градостроительство Самары – Куйбышева 1940–1950-х годов: монография. Самара: СамГТУ, 2022. 510 с.
Дополнительные файлы











