Разработка метода постоянного мониторинга производительности двухступенчатого фильтра с размещением в одном корпусе цилиндрических фильтрующих кассет предварительной и тонкой очистки
- Авторы: Хомутов А.О.1, Усачев А.П.2, Рулев А.В.2
-
Учреждения:
- АО «Гипрониигаз»
- Саратовский государственный технический университет имени Гагарина Ю.А.
- Выпуск: Том 15, № 1 (2025)
- Страницы: 32-38
- Раздел: ТЕПЛОСНАБЖЕНИЕ, ВЕНТИЛЯЦИЯ, КОНДИЦИОНИРОВАНИЕ ВОЗДУХА, ГАЗОСНАБЖЕНИЕ И ОСВЕЩЕНИЕ
- URL: https://journals.eco-vector.com/2542-0151/article/view/678424
- DOI: https://doi.org/10.17673/Vestnik.2025.01.05
- ID: 678424
Цитировать
Полный текст
Аннотация
Существующая газовая практика не располагает данными постоянного мониторинга производительности двухступенчатого фильтра с размещением в одном корпусе цилиндрических фильтрующих кассет предварительной и тонкой очистки. В результате этого снижается безопасность работы газового оборудования, установленного за регулятором давления. В работе получены расчетные выражения по определению предельных величин потерь давления и производительности двухступенчатых фильтров с размещением в одном корпусе цилиндрических фильтрующих кассет предварительной и тонкой очистки. При достижении этих предельных величин производится автоматическое переключение подачи газа на фильтр, расположенный на резервной секции редуцирования. Предложена схема постоянного мониторинга предельных величин потерь давления и производительности на двухступенчатых фильтрах с размещением в одном корпусе цилиндрических фильтрующих картриджей предварительной и тонкой очистки. Разработанная схема автоматически включает подачу газа на резервный фильтр и информирует диспетчерскую службу и обслуживающих работников по беспроводной связи при достижении предельных величин потерь давления и производительности.
Полный текст
Введение. В последние десятилетия растет объем применения пунктов регулирования газа (ПРГ) высокой производительности. Современные ПРГ имеют в своем составе не менее двух одинаковых линий редуцирования ‒ рабочей и резервной, каждая из которых оснащена фильтрами предварительной и тонкой очистки газа, рабочим и резервным регуляторами давления, запорной и предохранительной арматурой, отключающими устройствами [1].
С ростом объемов использования таких ПРГ увеличивается потребность в фильтрах высокой производительности с малой металлоемкостью. Однако в существующей технической литературе отсутствуют рекомендации по данному вопросу [2‒8]. В целях устранения этого недостатка разработана конструкция установки в объем корпуса 1 (рис. 1) кассет фильтрующих (КФ) предварительной 6 и тонкой 7 очистки на минимально допустимом удалении δmin друг от друга. При этом удалении сетка 6 не засоряется больше, чем когда δф > δmin [9].
Рис. 1. Схематическое устройство ФД с размещенными в объеме одного корпуса КФ предварительной и тонкой очистки: 1 – корпус; 2, 5 – вход и выход газа; 3 – крышка; 4 – стакан; 6, 7 – ФК предварительной и тонкой очистки; 8 – общая крышка для ФК
Fig. 1. Schematic TF device with pre‒ and fine cleaning FC placed in the volume of one housing: 1 – housing; 2, 5 – gas inlet and outlet; 3 – lid; 4 – glass; 6, 7 ‒ FC of preliminary and fine cleaning; 8 – general cover for FC
Результаты испытаний фильтров двухступенчатых (ФД) при степени засорения 70 % для фильтров предварительной очистки и 65 % для фильтров тонкой очистки свидетельствуют о росте δф до величины δф =8,4 мм, после чего потери давления становятся постоянными и уже не реагируют на рост δф [10, 11] .
Полученные экспериментальные данные указывают на целесообразность регенерации ФД предварительной очистки при степени их засорения 70 %. Замена ФД тонкой очистки целесообразна при степени засорения 65 % [11].
Проведенное экономическое сравнение свидетельствует, что раздельное размещение ФД предварительной и тонкой очистки в 1,65 раза увеличивает интегральные затраты по сравнению с установкой кассет 6 и 7 в одном корпусе на минимально допустимом удалении δmin друг от друга [12].
Учитывая, что такие фильтры следует устанавливать как на рабочих, так и на резервных линиях редуцирования [1], экономия интегральных затрат пропорционально увеличивается. Данное техническое решение защищено патентом № 174446 [9] .
В то же время использование ФД большой производительности повышает вероятность убытков эксплуатационных организаций вследствие недопоставок газа, обусловленных засорением КФ раньше назначенного срока.
Сокращение поставок газа потребителю может быть вызвано преждевременным засорением КФ, обусловленным ростом в нем механических примесей. Это в свою очередь обусловливает потери давления на нем сверх максимально допустимого ∆Pм.д, а затем и предельного ∆Pпр значений и приводит к сокращению производительности КФ ниже расчетной.
Здесь под максимально допустимыми потерями ∆Pм.д на КФ понимается величина, при достижении которой должна проводиться процедура удаления механических примесей из ФД согласно [1].
Под предельными потерями ∆Pпр на КВ предварительной и тонкой очистки понимается величина, при превышении которой производительность сокращается до предельной Vпр из-за засорения КФ. Предельное значение производительности Vпр следует принимать не менее максимального расчетного расхода газа Vmax, устанавливаемого [1].
В целях совершенствования мониторинга фильтрации газа [13] предложено осуществлять предварительное оповещение экплуатационного персонала об очередном удалении механических примесей. При этом необходимо обеспечить запас дальнейшего падения давления на цилиндрических ФК (ЦФК) предварительной и тонкой очистки [14, 15], достаточный по продолжительности для подготовки к операции очистки до момента достижения перепада давления ∆Pм.д.
Однако производительность фильтрации может опуститься сверх предельного значения Vпр еще до времени достижения ∆Pм.д и ∆Pпр. Это вызвано тем, что расчетная площадь кассет в существующей газовой практике [1] определяется для пропуска максимального расхода газа Vmax, когда она еще не засорена механическими примесями. Если произойдет преждевременное засорение, КФ с такой расчетной поверхностью не обеспечит максимальный расход газа Vmax. Учитывая это, расчет максимального расхода газа Vmax и расчетной площади целесообразно проводить в момент достижения на фильтре предельного значения ∆Pпр.
В настоящее время рекомендации по определению и постоянному контролю величин ∆Pпр и Vпр на ФД отсутствуют [16‒20]. Это заставляет разрабатывать:
- расчетные зависимости по вычислению ∆Pпр и Vпр;
- системы постоянного мониторинга ∆Pпр и Vпр.
Рассмотрим отдельно каждую из указанных задач.
Получение расчетных формул по вычислению предельных потерь давления и производительности на двухступенчатых газовых фильтрах
Расчетная зависимость по определению предельных потерь давления на двухступенчатых газовых фильтрах будет иметь следующий вид:
(1)
В данном выражении значение максимальной суммарной плюсовой поправки ∆Pс.max к максимально допустимым потерям давления ∆Pм.д включает в себя: ошибки измерения давления, погрешности прибора постоянного контроля и телеметрических устройств.
По заранее известной величине ∆Pпр, полученной по формуле (1), можно в автоматическом режиме переключать подачу газа на резервную линию редуцирования, если уменьшится производительность до Vпр в случае засорения кассет.
Расчетная зависимость по определению предельного значения пропускной способности на двухступенчатых газовых фильтрах, согласно требованиям [1], будет иметь следующий вид:
. (2)
где Vпр – предельное значение производительности двухступенчатых газовых фильтров с размещением в одном корпусе цилиндрических фильтрующих кассет предварительной и тонкой очистки; м3/с; ρг – плотность газа, кг/м3; g – ускорение свободного падения, м/с2; Fр.з – расчетная площадь свободного сечения КФ, м2; ζFр.з – коэффициент местных сопротивлений КФ; ∆Vс.max – максимальное значение суммарной плюсовой поправки к Vmax.
Значение Vпр в формуле (2), согласно [1], принимается равным максимальному расходу газа Vmax, а значение Vmax принимается согласно техническим характеристикам газовых приборов и оборудования. Величина Fр.з в формуле (2) принимается при максимальном расходе газа и при предельных потерях давления на КФ. Коэффициент ζFр.з принимается при достижении предельных потерь давления согласно [21].
Анализ формулы (2) показывает следующее:
- С приближением перепада давления к величине ∆Pпр значение F2р.з ‒ квадрата площади свободного сечения КФ, по мере его засорения механическими примесями быстро уменьшается. В этом случае для сохранения постоянного темпа роста величины ∆Pпр следует сокращать пропускную способность, что недопустимо, с учетом основного требования к выбору ФД – производительность принимается равной максимальному расходу газа Vmax.
- Из выражения (2) следует, что значение предельных потерь давления на фильтрующей кассете предварительной очистки принимается равным ∆Pпр [1] при выполнении следующих условий:
- фильтр, засоренный механическими примесями в период перед очередным техническим обслуживанием, следует рассчитывать на подачу максимального расхода газа Vmax;
- величина фильтрующей площади Fр.з должна учитывать возможность ее засорения в момент перед очередным техническим обслуживанием;
- скорость фильтрации газа через сетки ЦФК, определяемая как Vmax / Fр.з, должна обеспечивать качественный процесс осаждения твердых частиц без деформации фильтрующего картриджа.
- Расчет потерь давления ΔР по формуле (2) в зависимости от производительности V в эксплуатационной практике осуществляется с помощью таблиц или графиков. Предприятие, изготавливающее ФД, прилагает их к руководству по эксплуатации. Однако их применение приводит к ошибкам при определении фильтрующей площади Fр.з, поскольку указанные таблицы и графики не учитывают засорение фильтрующих сеток перед очередным удалением загрязнений.
Площадь Fр.з для пропуска производительности V = Vmax при потерях давления на ДФ, равной ∆Pпр, предприятия по изготовлению газового оборудования не осуществляют.
В сложившейся ситуации эксплуатационные организации не располагают данными по производительности V существующих фильтров при ∆Pпр. При этом весьма вероятным является сценарий, когда потери давления на КФ еще не достигли величины ∆Pпр, а производительность уже снизилась и стала ниже Vпр.
Создавшаяся ситуация при снижении производительности ниже предельного значения Vпр заставляет изыскивать методы непрерывного мониторинга, при которых достигается отключение газа на рабочую линию редуцирования и одновременная подача газового топлива на резервную линию редуцирования.
Для реализации методов обеспечения предельной производительности Vпр = Vmax, приведенных в выражениях (1) и (2), следует изыскивать схемы непрерывного мониторинга ∆Pпр и Vпр, компенсирующие недостатки существующих графиков производительности, прилагаемых предприятиями по изготовлению газового оборудования .
Разработка схемы постоянного мониторинга предельных значений потерь давления и производительности двухступенчатого фильтра с размещением в одном корпусе цилиндрических фильтрующих кассет предварительной и тонкой очистки
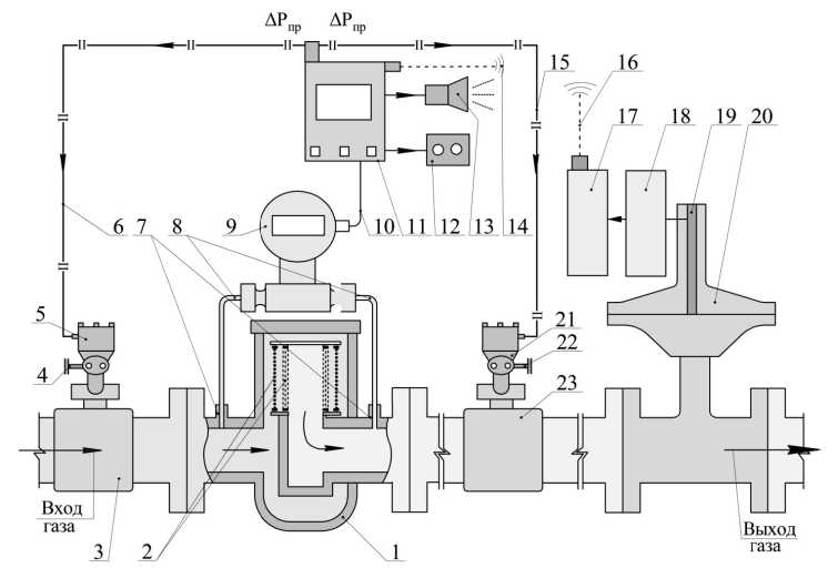
С целью устранения роста потерь давления сверх ∆Pпр и сокращения производительности ниже Vпр разработано устройство непрерывного контроля (рис. 2). Направления течения газа и движение электрических сигналов показаны стрелками.
Рис. 2. Схема постоянного мониторинга предельных значений потерь давления и производительности двухступенчатого фильтра: 1 – фильтр двухступенчатый с размещением в одном корпусе КФ предварительной и тонкой очистки; 2 – кассеты фильтрующие предварительной и тонкой очистки; 3, 23 – краны запорно-регулирующие; 4, 22 – устройства ручной регулировки кранов 3 и 23; 5, 21 – устройства электромеханической регулировки кранов 3 и 23; 6, 10, 15 – провода электрические; 7 – патрубки; 8 – трубки подачи импульсов давления газа; 9 – манометр-преобразователь дифференциального типа; 11 – прибор постоянного мониторинга предельных значений потерь давления двухступенчатого фильтра; 12, 13 – устройства для подачи светового и звукового сигналов; 14, 16 – устройства обеспечения беспроводной связи с диспетчерским пунктом; 17 – прибор непрерывного мониторинга производительности; 18 – блок управления электронный; 19 – датчик вертикального перемещения, встроенный в регулятор давления 20
Fig. 2. The scheme of constant monitoring of the limit values of pressure losses and performance of a two-stage filter: 1 – a two-stage filter with pre– and fine cleaning in one housing; 2 – filter cassettes for pre- and fine cleaning; 3, 23 – shut-off valves; 4, 22 ‒ devices for manual adjustment of cranes 3 and 23; 5, 21 – devices for electromechanical adjustment of cranes 3 and 23; 6, 10, 15 – electric wires; 7 – nozzles; 8 – tubes for supplying gas pressure pulses; 9 – differential type pressure gauge converter; 11 ‒ a device for constant monitoring of the limit values of pressure losses of a two–stage filter; 12, 13 – devices for supplying light and sound signals; 14, 16 – devices for providing wireless communication with the control room; 17 – a continuous performance monitoring device; 18 – an electronic control unit; 19 – a vertical displacement sensor built into the pressure regulator 20
Работа предлагаемого устройства по постоянному мониторингу предельных значений производительности двухступенчатого фильтра осуществляется следующим образом. Из распределительного газопровода в двухступенчатый газовый фильтр 1 поступает газовое топливо с находящимися в нем механическими примесями. В период работы фильтр 1 засоряется и потери давления на КФ поднимаются до значения ∆Pпр. Указанные потери давления на штуцерах 7, установленных на фильтрующих кассетах 2, по трубкам 8 поступают на манометр 9, где преобразуются в пропорциональный электрический сигнал, после чего поступают через трубку 10 на прибор непрерывного контроля 11, который посредством световых и звуковых сигналов 12 и 13 и мобильной связи 14 оповещает диспетчерский службу и обслуживающих работников.
Для предупреждения повышения потерь давления на двухступенчатом фильтре 1 при достижении предельных величин ∆Pпр прибор 11 через провода 6 и 15 и устройства 5 и 21 перекрывает запорно-регулирующие краны 3 и 23.
В случае уменьшения производительности ниже предельного значения Vпр = Vmax датчик перемещения 19, встроенный в регулятор давления 20, передает пропорциональный сигнал на электронный блок управления 18. Принцип работы штока клапана 19 основан на его вертикальном перемещении, преобразуемом затем в непрямое значение расхода газа с помощью электронного блока управления 18. После этого сигнал от блока управления 18 поступает в прибор непрерывного мониторинга 17, который передает этот сигнал 16 в диспетчерский пункт. Диспетчерский пункт, получив данные по снижению производительности ФД ниже значения Vmax, посылает сигнал 14 на прибор 11, который через электрические провода 6 и 15 и устройства электромеханической регулировки 5, 21 закрывают краны запорно-регулирующие 3 и 23.
Таким образом, применение предлагаемых устройств контроля ∆Pпр и Vпр повышает надежность и безопасность работы КФ предварительной и тонкой очистки, установленных в объеме одного корпуса двухступенчатого фильтра, и предотвращает риск возникновения аварийных ситуаций, связанных с отклонением падения давления и производительности сверх предельных значений.
Выводы. 1. В существующей газовой практике отсутствуют рекомендации постоянного мониторинга предельных величин потерь давления ΔРпр и производительности Vпр для предложенной конструкции фильтрующих кассет предварительной и тонкой очистки, расположенных внутри одного двухступенчатого фильтра на минимальном расстоянии друг от друга.
- Получены выражения, устанавливающие предельные значения потерь давления ΔРпр (формула 1) и производительности Vпр (формула 2), при достижении которых осуществляется переключение поступления газа на резервную линию редуцирования в автоматическом режиме и одновременно отключение поступления газа на засоренный двухступенчатый фильтр.
- Разработана система постоянного мониторинга для фильтрующих кассет предварительной и тонкой очистки, установленных внутри двухступенчатых фильтров, переключающая поступление газа на резервную линию редуцирования в автоматическом режиме и одновременно отключающая поступление газа на засоренный двухступенчатый фильтр, если они достигнут предельных значений потерь давления ΔРпр и производительности Vпр.
Об авторах
Антон Олегович Хомутов
АО «Гипрониигаз»
Автор, ответственный за переписку.
Email: khomutov.anton@gmail.com
кандидат технических наук, заместитель генерального директора по научному развитию
Россия, 410012, г. Саратов, пр. имени Петра Столыпина, 54Александр Прокофьевич Усачев
Саратовский государственный технический университет имени Гагарина Ю.А.
Email: usachev-ap@mail.ru
доктор технических наук, профессор, профессор кафедры теплогазоснабжения и нефтегазового дела
Россия, 410054, г. Саратов, ул. Политехническая, 77Александр Владимирович Рулев
Саратовский государственный технический университет имени Гагарина Ю.А.
Email: nautech@inbox.ru
доктор технических наук, доцент, профессор кафедры теплогазоснабжения и нефтегазового дела
Россия, 410054, г. Саратов, ул. Политехническая, 77Список литературы
- СП 42-101-2003. Общие положения по проектированию и строительству газораспределительных систем из металлических и полиэтиленовых труб. М.: ГУП ЦПП, 2003. 168 с.
- Промышленное газовое оборудование: справочник. 6-е изд., перераб. и доп. Саратов: Газовик, 2013. 1125 с.
- Биргер М. И., Вальдберг А. Ю., Мягков Б. И. Справочник по пыле- и золоулавливанию. 2-е изд., перераб. и доп. М.: Энергоатомиздат, 1983. 312 с.
- Mokhatab S., Poe W.A. Handbook of Natural Gas Transmission and Processing. Second Edition. Elsevier Inc. 2012. 802 p.
- Guo B., Ghalambor A. Natural Gas Engineering Handbook: 2nd edition. Gulf Publishing Company. Houston. Texas. 2012. 472 p.
- Sutherland K. Filters and Filtration Handbook ‒ 5 edition. Elsevier Science. 2008. 523 p.
- Шур И. А. Газорегуляторные пункты и установки. Л.: Недра, 1985. 288 с.
- Trevor S. Filters and Filtration Handbook ‒ 5 edition. Elsevier Butterworth Heinemann. 2016. 444 p.
- Устройство для очистки от твердых частиц природного газа высокого давления: пат. на полезную модель 174446 Российская Федерация, МПК BOID 46/24 / Шурайц А.Л., Усачев А.П., Хомутов А.О., Рулев А.В.; заявитель и патентообладатель АО «Головной научно-исследовательский и проектный институт по распределению и использованию газа (АО «Гипрониигаз»)». № 2017111708; заявл. 06.04.17; опубл. 13.10.17, Бюл. № 29. 4 с.
- Обоснование применения и разработка газовых фильтров с цилиндрическими фильтрующими элементами предварительной и тонкой очистки, размещаемыми в одном корпусе / А.П. Усачев, А.Л. Шурайц, А.О. Хомутов и др. // Региональная архитектура и строительство. 2017. № 3 (32). С. 165–171.
- Разработка принципов повышения эффективности газовых фильтрующих картриджей грубой и тонкой очистки большой пропускной способности / А.П. Усачев, А.Л. Шурайц, А.О. Хомутов и др. // Газовая промышленность. 2018. № 52 (770). С. 14–22.
- Технико-экономическое моделирование цилиндрических фильтрующих элементов предварительной и тонкой очистки на основе их размещения в одном корпусе установки газовой очистки / А.П. Усачев, А.Л. Шурайц, А.О. Хомутов и др. // Нефтегазовое дело. 2018. Т. 16, № 2. С. 114–122.
- Густов С.В. Высокотехнологичные ГРП ‒ путь к повышению надежности газораспределительных сетей // Газ России. 2010. № 41. С. 56‒60.
- Устройство для очистки от твердых частиц природного газа высокого давления: пат. на полезную модель 117566 Российская Федерация, МПК F17D 3/00 / Усачев А.П., Шурайц А.Л., Густов С.В., Желанов В.П., Рулев А.В., Усачев М.А., Шерстюк П.В.; заявитель и патентообладатель Саратовский государственный технический университет имени Гагарина Ю.А. (RU). № 2011147260; заявл. 21.11.11; опубл. 27.06.12, Бюл. № 20. 4 с.
- Густов С. В., Шурайц А.Л. Разработка рекомендаций по автоматическому контролю значений падения давления на сетчатых газовых фильтрах // Нефтегазовое дело. 2014. № 4. С. 302‒323.
- Белоусов В. В. Теоретические основы процессов газоочистки. М.: Металлургия, 1988. 256 с.
- Коузов П.А., Мальгин А.Д., Скрябин Г.М. Очистка газов и воздуха в химической промышленности. СПб.: Химия, 1993. 320 с.
- Мазус М.Г., Мальгин А.Д., Моргулис М.Л. Фильтры для улавливания промышленных пылей. М.: Машиностроение, 1985. 240 с.
- Tien Ch. Principles of Filtration. Elsevier, Oxford, 2013. 360 p.
- Hutten I.M. Handbook of Nonwoven Filter Media 2nd Edition. Butterworth Heinemann, 2016. 660 p.
- Идельчик И.Е. Справочник по гидравлическим сопротивлениям. М.: Машиностроение, 1975. 559 с.
Дополнительные файлы





