Экспериментальное исследование и методика расчета прочности железобетонных плит при продавливании
- Авторы: Филатов В.Б.1,2, Галяутдинов З.Ш.1,2
-
Учреждения:
- Самарский государственный технический университет
- Академия строительства и архитектуры
- Выпуск: Том 11, № 4 (2021)
- Страницы: 53-65
- Раздел: СТРОИТЕЛЬНЫЕ КОНСТРУКЦИИ, ЗДАНИЯ И СООРУЖЕНИЯ
- URL: https://journals.eco-vector.com/2542-0151/article/view/90083
- DOI: https://doi.org/10.17673/Vestnik.2021.04.7
- ID: 90083
Цитировать
Полный текст
Аннотация
Представлены результаты исследований на опытных образцах прочности и деформативности железобетонных плит при продавливании. Опытные образцы представляли собой фрагменты узлов сопряжения колонн и монолитных плит перекрытия безбалочного каркаса. Варьируемым параметром являлась форма поперечного сечения колонны. Установлено, что с увеличением отношения сторон сечения колонны наблюдается превышение расчетных значений прочности над опытными значениями. Отмеченная тенденция показывает, что нормативная методика расчета не учитывает действительный характер распределения усилий в зоне продавливания плиты. Предложена методика по учёту влияния отношения сторон сечения прямоугольной колонны и отношения стороны сечения колонны к рабочей высоте сечения плиты на прочность плиты при продавливании. Выполнено сравнение опытных и расчётных значений прочности железобетонных плит при продавливании, полученных по различным нормативным методикам и по предлагаемой методике.
Ключевые слова
Полный текст
Одним из конструктивных параметров, влияющих на прочность плоских железобетонных плит при продавливании, является соотношение сторон сечения колонны (площадки нагружения). Результаты экспериментальных исследований, проведенных авторами [1–3], показывают, что при соотношении сторон сечения прямоугольной колонны cmax / cmin более двух прочность плиты при продавливании снижается. Отношение сторон площадки нагружения при расчете железобетонной плиты на продавливание учитывается в нормах проектирования США (ACI-318) и Европы (Model Code 2010, Eurocode2 и др.). В СП 63.13330.2018 «СниП 52-01-2003 Бетонные и железобетонные конструкции. Основные положения» этот параметр не рассматривается. Возможный подход по учету соотношения сторон сечения колонны при расчете на продавливание по методике СП 63.13330.2018 предложен в работах [4, 5].
В нашей стране все экспериментальные исследования по продавливанию железобетонных плит проводились на образцах с круглой или квадратной колонной (то есть при cmax / cmin = 1) и при относительно небольших значениях c / h0 < 2. При этом результаты экспериментов [1–3] показывают, что с ростом величины cmax / cmin и c / h0 относительная прочность плиты уменьшается.
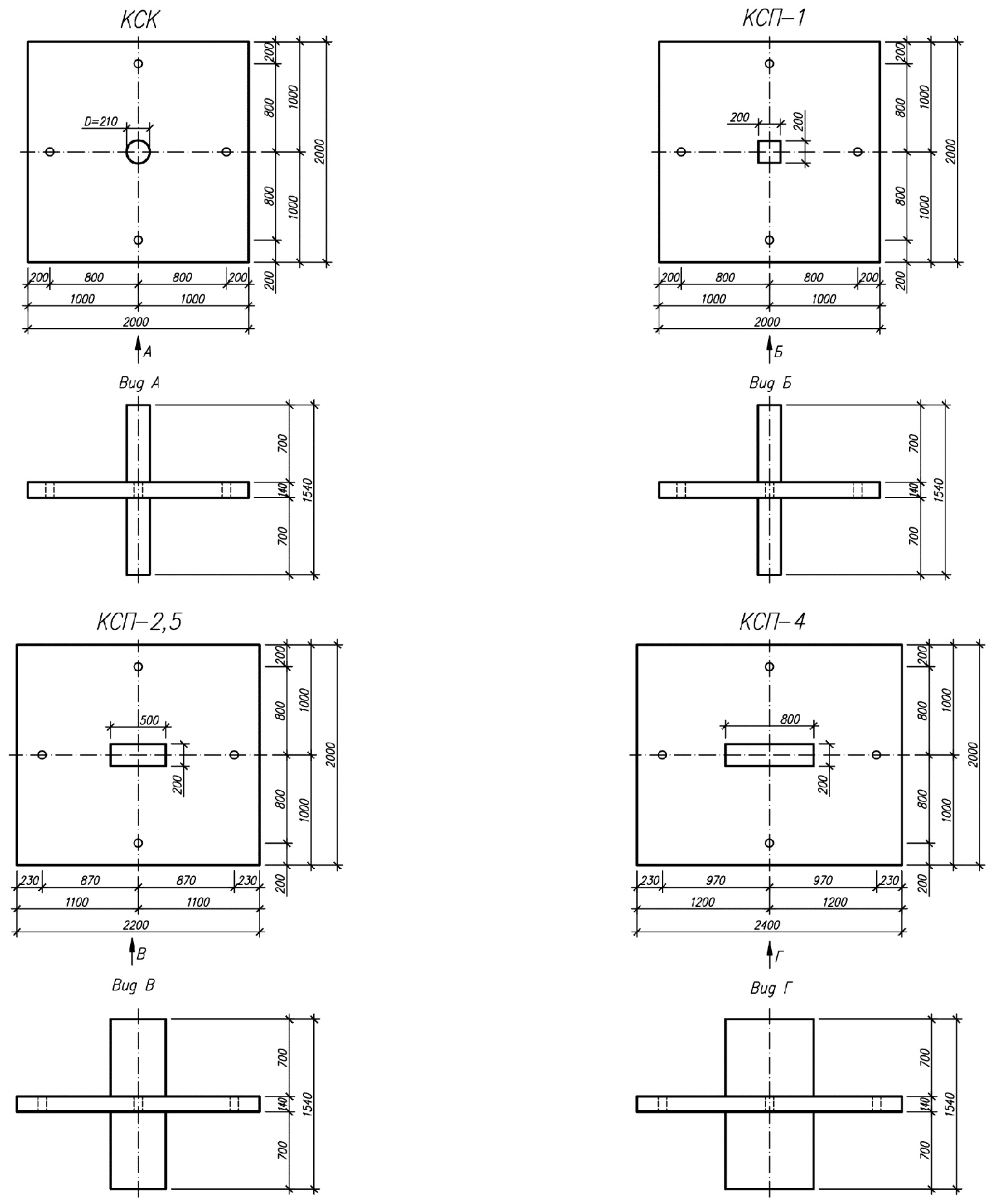
Для изучения напряженно-деформированного состояния и особенностей работы монолитной железобетонной плиты при продавливании колоннами прямоугольного сечения были проведены испытания четырех опытных образцов с различной формой поперечного сечения колонны (табл. 1).
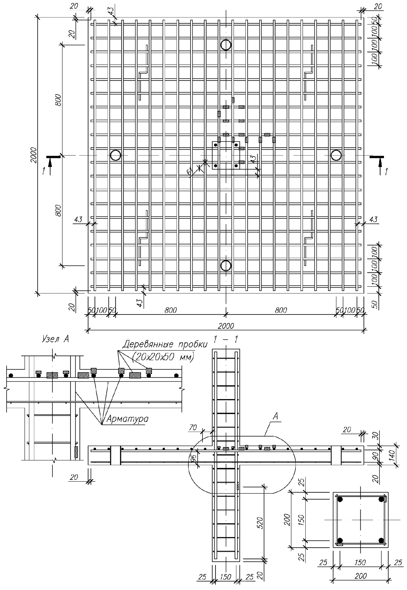
Образцы представляют собой фрагмент узла сопряжения колонны и плоской железобетонной плиты квадратной и прямоугольной формы (риc. 1). На риc. 2 представлена конструкция образца КСП-1.
Рис.1. Геометрические размеры опытных образцов
Риc. 2. Конструкция образца КСП-1
Таблица 1
Марки опытных образцов
Марка опытного образца | Сечение колонны cmin × cmax, мм | Отношение сторон сечения колонны cmax / cmin |
КСК | Круглое Ø 210 | - |
КСП-1 | 200×200 | 1 |
КСП-2,5 | 200×500 | 2,5 |
КСП-4 | 200×800 | 4 |
Плиты опытных образцов армировались сетками у верхней и нижней грани. Поперечное армирование в плитах отсутствовало. Армирование у верхней (растянутой) грани плиты выполнялось арматурными стержнями диаметром 14 мм класса А500 с шагом 100 мм, у нижней (сжатой) грани армирование принято минимальным (стержни диаметром 5 мм класса В500 с шагом 100 мм) для детального исследования напряженно-деформированного состояния сжатого бетона при восприятии усилия продавливания. Фрагменты колонны в образцах армировались стержнями диаметром 16 и 18 мм класса А500. Поперечное армирование в колоннах выполнялось вязаными хомутами диаметром 4 мм класса В500 с шагом 100 мм.
Образцы изготавливались из тяжелого бетона. Физико-механические характеристики и диаграмма «σ-ε» бетона при сжатии определялись по данным испытаний контрольных кубов и призм в соответствии с ГОСТ 10180-2012 «Бетоны. Методы определения прочности по контрольным образцам» и ГОСТ 24452-80 «Бетоны. Методы определения призменной прочности, модуля упругости и коэффициента Пуассона». Средние значения характеристик прочности бетона, полученные по результатам испытаний, представлены в табл. 2.
Физико-механические характеристики и диаграмма «σ-ε» продольной арматуры плит и колонн определялись по данным испытаний на растяжение в соответствии с ГОСТ 12004-81 «Сталь арматурная. Методы испытания на растяжение». Результаты испытаний позволяют сделать вывод, что вся испытанная арматура соответствует классу А500C по требованиям ГОСТ Р 52544–2006 «Прокат арматурный свариваемый периодического профиля классов А500С и В500С для армирования железобетонных конструкций. Технические условия».
Таблица 2
Результаты испытаний бетонных кубов и призм
Марка образца | Кубиковая прочность бетона Rm, МПа | Прочность бетона при раскалывании Rtt, m, МПа | Прочность бетона при растяжении Rbt, m, МПа | Призменная прочность бетона Rb, m, МПа | Модуль упругости бетона Eb, МПа | Коэффициент Пуассона μ |
КСП-1 | 33.6 | 2,19 | 1,82 | 26,5 | 24170 | 0,187 |
КСП-2,5 | 27,5 | 1,93 | 1,60 | 21,2 | 21060 | 0,199 |
КСП-4 | 35,7 | 2,30 | 1,91 | 25,6 | 22910 | 0,188 |
КСК | 42,2 | 3,15 | 2,61 | 34,4 | 25990 | 0,181 |
Нагружение опытных образцов при испытаниях производилось гидравлическим домкратом. Усилие прикладывалось к нижней грани колонны и передавалось на плиту образца через распределительные траверсы, которые удерживались тягами, закрепленными в силовом полу (риc. 3).
Рис. 3. Нагружение образца КСП-4
Определение величины деформаций бетона сжатой грани плиты производилось при помощи тензорезисторов с базой 50 мм (риc. 4). Тензорезисторы с базой 20 мм применялись для определения деформаций растянутой арматуры.
Риc. 4. Схема расположения тензорезисторов на бетоне сжатой грани плиты образца КСП-1
Прогибы плиты измерялись с помощью прогибомеров ПАО-6 и определялись как разность перемещения плиты в рассматриваемой точке и у грани колонны. Схемы расстановки прогибомеров (П1 – П7) и точек приложения нагрузки на плиту образцов представлены на риc. 5.
Риc. 5. Схемы расстановки прогибомеров и точек приложения нагрузки на плиты опытных образцов: а – образцы КСК и КСП-1; б – образец КСП-2,5; в – образец КСП-4
Нагружение образца производилось ступенями по 5 % от теоретической разрушающей нагрузки. Время выдержки образца под нагрузкой на каждой ступени составляло от 10 до 30 мин. На каждой ступени нагружения фиксировались показания тензорезисторов, прогибомеров, схемы образования и развития трещин.
Трещинообразование в плитах всех опытных образцов имело схожий характер. Первые радиальные трещины шириной раскрытия 0,05 мм образовывались на верхней поверхности плиты от граней колонны и развивались к внешнему контуру плиты при уровне нагружения 0,25–0,3 от разрушающей нагрузки (Pult), образование тангенциальных трещин отмечалось при уровне нагружения (0,45–0,5)Pult. После начала трещинообразования раскрытие трещин было незначительным, более характерным являлось образование новых трещин. При уровне нагружения 0,85Pult интенсивность образования трещин значительно снизилась, преобладающим стал процесс их раскрытия. В предельной стадии перед разрушением ширина раскрытия радиальных трещин достигала 0,3 мм, тангенциальных трещин (у граней колонны) 0,5 мм. Наибольшая интенсивность трещинообразования в плите отмечалась на участках возле углов колонн. Вид образцов после разрушения представлен на риc. 6.
Риc. 6. Опытные образцы после испытаний (вид сверху): а – образец КСП-1; б – образец КСП-2,5; в – образец КСП-4
Осредненные значения прогибов плит опытных образцов в зависимости от уровня нагружения представлены на риc. 7.
Риc. 7. Прогибы плит опытных образцов
Из анализа графиков следует, что величины прогибов плит образцов КСП-2,5 и КСП-4 перед разрушением превышали прогибы плиты образца КСП-1 на 4–8 % по короткой стороне плиты и на 8–11 % по длинной стороне.
Разрушение образцов произошло хрупко вследствие продавливания плиты колонной с образованием пирамиды продавливания. Опытные Pult и расчетные Fcalc значения разрушающих нагрузок, а также рабочая высота сечения h0 и периметр расчётного контура продавливания u приведены в табл. 3. Расчетные значения Fcalc определялись в соответствии с методикой СП 63.13330.2018. Результаты, приведенные в табл. 3, показывают, что при соотношении сторон колонны cmax / cmin = 2,5 отношение Pult / Fcalc становится меньше единицы, т. е. расчетные значения прочности начинают превосходить опытные значения. При соотношении сторон сечения колонны, равном четырем (образец КСП-4), превышение расчетных значений разрушающей нагрузки над опытными значениями достигает 30 %.
Анализ деформаций бетона сжатой грани плиты показывает, что радиальные деформации в целом распределены равномерно по периметру сопряжения плиты с колонной. Однако характер распределения тангенциальных деформаций существенно зависит от формы поперечного сечения колонны. На риc. 8 представлены эпюры тангенциальных деформаций бетона сжатой грани плиты (ε×10-6 ЕОД) для испытанных образцов при нагрузке 0,6Pult.
Риc. 8. Эпюры тангенциальных деформаций бетона сжатой грани плиты
Отметим, что очертание эпюр практически не изменяется в процессе нагружения образцов, включая такие этапы, как образование нормальных трещин и образование наклонной трещины, выделяющей пирамиду продавливания. Анализируя эпюры, приведенные на риc. 8, отметим, что для круглой колонны (образец КСК) эпюра имеет форму, близкую к окружности, а у образцов с квадратной и прямоугольными колоннами присутствует концентрация деформаций возле углов колонны и эта концентрация тем больше, чем больше соотношение сторон сечения колонны cmax / cmin. Так, в образце КСП-4 у середины длинной стороны колонны значение тангенциальных деформаций падает практически до нуля, в то время как возле углов колонны наблюдается значительный рост деформаций. Концентрация деформаций в плите возле углов колонны наблюдается даже у образца с квадратной колонной (КСП-1), хотя и в меньшей степени. Отмеченная особенность (концентрация деформаций бетона сжатой грани плиты возле углов колонны) имеет важное практическое значение, поскольку расчет по методике СП 63.13330.2018 предполагает равномерное распределение срезающих напряжений по всему контуру продавливания.
Таблица 3
Опытные и расчетные значения разрушающих нагрузок опытных образцов
Марка образца | h0, мм | u, мм | Pult, кН | Fcalc, кН | Pult / Fcalc |
КСК | 105 | 990 | 284,9 | 267,0 | 1.07 |
КСП-1 | 100 | 1200 | 272,0 | 220,8 | 1.23 |
КСП-2,5 | 100 | 1800 | 281,3 | 293,4 | 0.96 |
КСП-4 | 100 | 2400 | 328,4 | 468,0 | 0.70 |
Результаты испытаний опытных образцов позволяют отметить особенность деформирования плиты по периметру колонны, которая выражается в снижении тангенциальных и срезающих усилий вдоль стороны колонны от угла к ее середине. Эта особенность деформирования плиты также отмечается в ряде работ зарубежных исследователей [6–8]. Указанная характерная особенность деформирования плиты позволяет сделать вывод о наличии в плите по периметру сечения колонны «зоны стеснённых деформаций» – зоны, где сечение колонны препятствует свободному деформированию плиты в тангенциальном направлении.
Для учёта влияния отношения сторон сечения прямоугольной колонны cmax / cmin и отношения стороны сечения колонны к рабочей высоте сечения плиты c / h0 на прочность плиты при продавливании предлагается методика, основанная на определении геометрических параметров зоны стеснённых деформаций.
Предложение по учету влияния отношения сторон сечения прямоугольной колонны cmax / cmin
Примем, что для колонны с квадратным сечением зона стеснённых деформаций плиты ограничивается описанной окружностью, для прямоугольной колонны – описанным эллипсом (риc. 9).
Риc. 9. Зона стесненных деформаций в плите по периметру колонны
Влияние отношения сторон сечения прямоугольной колонны cmax / cmin предлагается оценивать отношением полуосей эллипса:
(1)
где a и b – большая и малая полуоси эллипса.
Обозначим стороны колонны прямоугольного сечения:
Cmin – меньшая сторона сечения;
Cmax = n × Cmin – большая сторона сечения колонны.
Выразим полуоси эллипса через стороны сечения колонны:
(2)
(3)
После преобразований получим коэффициент для учёта влияния отношения сторон сечения колонны на прочность плиты при продавливании:
где (4)
Выражение (4) применимо как для квадратной, так и для прямоугольной колонны. Влияние отношения сторон сечения колонны cmax / cmin на прочность железобетонной плиты при продавливании предлагается учитывать снижением нормативного значения расчётного контура продавливания u посредством умножения большей стороны сечения колонны Сmax на коэффициент . Скорректированная величина расчетного контура продавливания ured определяется как
(5)
Выполним сравнение предлагаемой методики расчета с нормативными методиками по американским (ACI-318) и европейским (Model Code 2010) нормам проектирования. Для расчета примем отношение Сmin / h0 = 1. Определим отношение расчетных контуров продавливания ured / u в зависимости от отношения сторон колонны n = Cmax / Cmin. Результаты выполненного сравнения представлены на риc. 10.
Риc. 10. Зависимость изменения расчетного контура продавливания ured / u от соотношения сторон cmax / cmin прямоугольной колонны
Сравнение графиков на риc. 10 показывает, что рассмотренные методики расчета дают близкие результаты. Так, при отношении сторон cmax / cmin = 5 минимальное значение ured / u, равное 0,7, дает методика ACI-318; по предлагаемой методике максимальное значение ured / u = 0,78. Отметим, что согласно предлагаемой методике снижение величины расчётного контура наблюдается при отношении cmax / cmin > 1, в отличие от ACI-318, где снижение расчётного контура учитывается при отношении cmax / cmin > 2, или cmax / cmin > 3 для MC 2010, что является чисто эмпирическим подходом.
Предложение по учету влияния отношения стороны сечения колонны к рабочей высоте сечения плиты c / h0
Учёт влияния отношения стороны сечения колонны к рабочей высоте сечения плиты c / h0 на прочность плиты при продавливании предлагается выполнять, рассматривая зону стесненных деформаций плиты (сегмент BDF), обусловленную влиянием прямоугольной колонны (риc. 11).
Риc. 11. Зона стесненных деформаций в плите вдоль длинной стороны колонны
Влияние отношения стороны сечения колонны к рабочей высоте сечения плиты c / h0 предлагается оценивать в зависимости от площади сегмента эллипса (зона стесненных деформаций) вдоль стороны колонны.
Площадь сегмента эллипса BDF составляет:
(6)
Подставив значения переменных для точки F, получим:
(7)
Обозначим выражение в скобках как λl и окончательно запишем:
(8)
Рассмотрим сечение «a-a», перпендикулярное грани колонны (см. риc. 11).
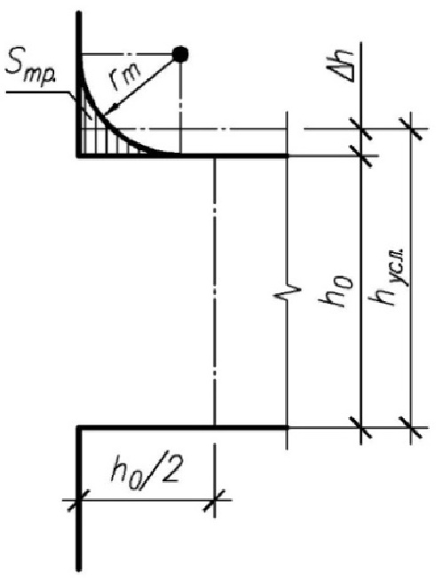
Сдерживающее влияние колонны на деформирование плиты вдоль грани колонны в зоне стесненных деформаций предлагается описывать по дуге окружности радиусом ri = yi – Cmin /2 (риc. 12). Величины ri и yi показаны на риc. 11.
Риc. 12. Учет влияния колонны на ограничение деформаций плиты вдоль длинной стороны колонны
Величина ri является переменной по длине грани колонны Cmax, поэтому для упрощения расчетов определим среднее значение rm:
(9)
Положение радиуса rm представлено на риc. 13.
Риc. 13. К определению условной высоты сечения плиты hусл при rm < h0 / 2
Влияние колонны на деформирование плиты в зоне стесненных деформаций предлагается учитывать, рассмотрев условную высоту сечения плиты hусл на длине h0 / 2 (см. риc. 13).
(10)
(11)
где Sтр – площадь криволинейного треугольника (см. риc. 13).
(12)
(13)
Выражение (13) применимо при rm ≤ h0 / 2. Если rm > h0 / 2, то следует определять площадь криволинейной трапеции (риc. 14).
Риc. 14. К определению условной высоты сечения плиты hусл при rm > h0 / 2
(14)
(15)
Окончательно имеем:
(16)
Коэффициент Kls, учитывающий влияние отношения стороны сечения колонны Cmax к рабочей высоте сечения плиты h0, равен:
– при rm ≤ h0 / 2
(17)
– при rm > h0 / 2
(18)
Для короткой стороны колонны Cmin аналогично запишем:
(19)
(20)
Обозначим выражение в скобках как λsh и окончательно запишем:
(21)
(22)
(23)
(24)
Коэффциент Kshs, учитывающий влияние отношения стороны сечения колонны Cmin к рабочей высоте сечения плиты h0, равен:
(25)
Выполнено сравнение результатов расчета по предлагаемой методике с расчётом по методикам ACI-318 и Model Code 2010 для квадратной колонны (cmax / cmin = 1). Графики отношения расчетных контуров продавливания ured / u в зависимости от отношения стороны колонны к высоте сечения плиты c / h0 приведены на риc. 15.
Риc. 15. Зависимость изменения расчетного контура продавливания ured / u от соотношения c / h0 для квадратной колонны
Кривые, представленные на риc. 15, показывают, что согласно предлагаемой методике снижение величины расчётного контура наблюдается при отношении c / h0 > 1, в отличие от методики Model Code 2010, когда при c / h0 < 3 величина расчётного контура не изменяется и значение ured / u =1. Резкое снижение величины расчётного контура ured / u наблюдается при отношении c / h0 > 3. Подобный характер зависимости наблюдается и для методики, предлагаемой в ACI-318 при c / h0 > 4 , что свидетельствует о сугубо эмпирическом характере этих методик.
Анализ экспериментальных данных, опубликованных за рубежом, показал, что точность расчетных зависимостей повышается при учете процента продольного армирования плиты. При небольших значениях процента продольного армирования плиты (0,3–0,7 %) исчерпание несущей способности плиты может быть достигнуто от действия изгибающего момента в нормальном сечении. При этом величина усилия на площадке нагружения может оказаться значительно меньше, чем усилие, определенное по условию продавливания. Однако если процент продольного армирования плиты более единицы, то его учет благоприятно сказывается на точности расчетных значений, что подтверждается практикой применения норм проектирования Eurocode 2.
Инженерная методика расчета прочности плит на продавливание
Предлагается корректировка п. 8.1.47 расчётной методики СП 63.13330.2018 для расчёта плит на продавливание при действии сосредоточенной силы:
(26)
(27)
где µ – процент продольного армирования плиты;
ured – скорректированное значение периметра контура расчетного поперечного сечения, определяемое по формуле
(28)
Сравнение опытных и расчётных значений прочности железобетонных плит при продавливании, полученных по нормативным методикам СП 63.13330.2018, ACI 318–19, Eurocode 2 и по предлагаемой методике
Для сравнительного анализа рассматривались результаты испытаний четырех образцов настоящего исследования и 71 образца, опубликованные зарубежными авторами [8 – 22]. Сводные данные среднего значения относительной прочности Vexp / Vcalc и значение коэффициента вариации приведены в табл. 4. Среднее значение относительной прочности Vexp / VСП для прямоугольных колонн значительно меньше единицы – 0,885 при коэффициенте вариации 0,176, что говорит о систематическом завышении несущей способности. Корректировка существующей расчётной методики СП 63.13330.2018 согласно предлагаемой методике позволяет добиться среднего значения относительной прочности Vexp / Vcalc = 1,081 при коэффициенте вариации 0,126, для колонн прямоугольного сечения Vexp / Vcalc = 1,086 при коэффициенте вариации 0,084.
Таблица 4
Сводные данные сравнительного анализа по различным методикам
Показатель | Относительная прочность | |||
СП63 | ACI | EC2 | Авторы | |
Vexp / VСП | Vexp / VACI | Vexp / VEC2 | Vexp / Vcalc | |
Все образцы | ||||
Среднее значение | 1, 103 | 1,373 | 1,092 | 1,081 |
Коэффициент вариации | 0,222 | 0,179 | 0,113 | 0,126 |
Прямоугольные колонны | ||||
Среднее значение | 0,885 | 1,267 | 1,037 | 1,086 |
Коэффициент вариации | 0,176 | 0, 141 | 0, 102 | 0,084 |
Квадратные колонны | ||||
Среднее значение | 1,220 | 1,434 | 1,122 | 1,079 |
Коэффициент вариации | 0,164 | 0,180 | 0, 109 | 0, 144 |
Выводы. Анализ результатов проведенных испытаний серии опытных образцов, а также статистическая обработка результатов апробации предлагаемой инженерной методики расчета прочности железобетонных плит на продавливание с учётом влияния отношения сторон сечения прямоугольной колонны cmax / cmin и отношения стороны сечения колонны к рабочей высоте сечения плиты c / h0 позволяют сделать следующие выводы:
- С ростом отношения сторон сечения колонны cmax / cmin уменьшается отношение опытной и расчетной разрушающей нагрузки Pult / Fcalc (см. табл. 3). Это позволяет сделать вывод, что с ростом отношения cmax / cmin методика расчета СП 63.13330.2018 имеет тенденцию к переоценке несущей способности плиты и для образца КСП-4 переоценка несущей способности достигает 30 %.
- Характер распределения тангенциальных деформаций в плите существенно зависит от формы сечения колонны: для образца с колонной круглого сечения тангенциальные деформации сжатой грани плиты по периметру колонны распределены равномерно, а для образцов с квадратным и прямоугольным сечением колонны наблюдается концентрация деформаций возле углов колонны и постепенное уменьшение их интенсивности при удалении от угла колонны. Эта неравномерность распределения тангенциальных деформаций возрастает с ростом отношения сторон сечения колонны cmax / cmin.
- При продавливании плит колоннами квадратного сечения результаты расчёта по предложенной инженерной методике и по формулам СП 63.13330.2018 имеют удовлетворительное соответствие. Значение коэффициента вариации, а также среднее значение при расчете по предложенной методике имеют меньшие величины по сравнению с расчетом согласно методике СП 63.13330.2018.
- При продавливании плит колоннами прямоугольного сечения среднее значение Vexp / VСП при расчёте по СП 63.13330.2018 значительно меньше единицы, что говорит о систематическом завышении расчётных значений несущей способности по сравнению с опытными данными. Корректировка расчётной методики СП 63.13330.2018 и расчет по предлагаемой инженерной методике позволяют повысить соответствие опытных и расчетных значений.
- Статистическая обработка результатов расчетных и опытных значений прочности железобетонных плит при продавливании колоннами квадратного и прямоугольного сечения показала, что предложенная инженерная методика расчета адекватно оценивает особенности напряженно-деформированного состояния плит, продавливаемых колоннами прямоугольного сечения. Показатели среднего значения и коэффициента вариации находятся практически на одном уровне с показателями европейских норм Eurocode 2 и превосходят показатели американских норм ACI 318.
Об авторах
Валерий Борисович Филатов
Самарский государственный технический университет; Академия строительства и архитектуры
Email: vb_filatov@mail.ru
ORCID iD: 0000-0002-3876-0270
SPIN-код: 4573-5065
кандидат технических наук, доцент, профессор кафедры железобетонных конструкций
Россия, 443100, г. Самара, ул. Молодогвардейская, 244Зульфат Шавкатович Галяутдинов
Самарский государственный технический университет; Академия строительства и архитектуры
Автор, ответственный за переписку.
Email: Zulfat.Sh.G@mail.ru
аспирант кафедры железобетонных конструкций
Россия, 443100, г. Самара, ул. Молодогвардейская, 244Список литературы
- Muttoni A. Punching Shear Strength of Reinforced Concrete Slabs without Transverse Reinforcement // ACI Structural Journal. 2008. Vol. 105. no. 4. pp. 440–450.
- Sagaseta J., Tassinari L., Ruiz M., Muttoni A. Punching of flat slabs supported on rectangular columns // Engineering Structures. 2014. no. 77. pp. 17–33.
- Setiawan A., Vollum R. L., Macorini L., Izzuddin B. A. Punching of RC slabs without transverse reinforcement supported on elongated columns // Structures. 2020. Vol. 27. pp. 2048-2068.
- Филатов В. Б. Совершенствование нормативной методики расчета на продавливание плоских железобетонных плит // Вестник гражданских инженеров. 2013. № 5 (40). С. 80–84.
- Filatov V. Evaluation of punching shear strength of flat slabs supported on rectangular columns // E3S Web of Conferences. Vol. 33. 2018. P. 02007. doi: 10.1051/e3sconf/20183302007.
- Einpaul J., Bujnak J., Ruiz M. F., Muttoni A. Study on influence of column size and slab slenderness on punching strength // ACI Structural Journal. 2016. Vol. 113. no. 1. pp. 135–145.
- Sagaseta J., Tassinari L., Ruiz M. F., Muttoni A. Punching of flat slabs supported on rectangular columns // Engineering Structures. 2014. no. 77. pp. 17–33.
- Oliveira D. R., Regan P. E., Melo G. S. Punching resistance of RC slabs with rectangular columns // Magazine of Concrete Research. 2004. Vol. 40. no. 3. pp. 123–138.
- Birkle G., Dilger W. H. Influence of slab thickness on punching shear strength // ACI Structural Journal. 2008. Vol. 105. no. 2. pp. 180–188.
- Borges L. L. J. Behavior in punching shear of reinforced concrete flat plates with rectangular columns and openings. PhD thesis, University of Brasília. Brasília, Brazil, 2004. 362 p.
- Borges L. L. J., Melo G. S., Gomes R. B. Punching shear of reinforced concrete flat plates with openings // ACI Structural Journal. 2013. Vol. 110. no. 4. pp. 547–556.
- Elstner R. C., Hognestad E. Shearing strength of reinforced concrete slabs // Journal of the ACI, Proceedings. 1956. Vol. 53. no. 1. pp. 29–58.
- Guandalini S., Burdet O., Muttoni A. Punching tests of slabs with low reinforcement ratios // ACI Structural Journal. 2009. Vol. 106. no. 1. pp. 87–95.
- Hawkins N. M., Falssen H. B., Hinojosa R. C. Influence of column rectangularity on the behavior of flat plate structures // ACI Special Publication. 1971. Vol. SP-30. no. 6. pp. 127–146.
- Leong K. K. Punching shear strength of slabs with openings and supported on rectangular columns. CSE thesis, Nanyang Technological University. Singapore, 2000. 338 p.
- Lips S., Ruiz M. F., Muttoni A. Experimental investigation on punching strength and deformation capacity of shear-reinforced slabs // ACI Structural Journal. 2012. Vol. 109. no. 6. pp. 889–900.
- Moraes Neto B. N. Análise experimental de lajes lisas bidirecionais de concreto armado com estribos inclinados e pilares retangulares sujeitas a puncionamento simétrico belém. Pará. 2007. 109 p.
- Oliveira D. R. C. Análise experimental de lajes cogu cogumelo de concreto armado com pilares retangulares. Tese de Doutorado, Departamento de Engenharia Civil, Universidade de Brasília, Brasília, DF, 2003. 214 p.
- Regan P. E. Symmetric punching of reinforced concrete slabs // Magazine of Concrete Research. 1986. Vol. 38. no. 136. pp. 115–128.
- Teng S., Chanthabouala K., Lim D.T.Y., Hidayat R. Punching shear strength of slabs and influence of low reinforcement ratio // ACI Structural Journal. 2018. Vol. 115. no. 1. pp. 139–150.
- Teng S., Cheong H. K., Kuang K. L., Geng J. Z. Punching shear strength of slabs with openings and supported on rectangular columns // ACI Structural Journal. 2004. Vol. 101. no. 5. pp. 678–687.
- Tomaszewicz A. High-Strength Concrete. SP2 – Plates and Shells. Report 2.3 Punching shear capacity of reinforced concrete slabs. Report No. STF70 A93082, SINTEF Structures and Concrete. Trondheim,1993. 36 p.
Дополнительные файлы

















