Инновационный метод оценки огнестойкости монолитной железобетонной балочной плиты перекрытия здания
- Авторы: Ильин Н.А.1,2, Панфилов Д.А.1,2, Жильцов Ю.В.1,2
-
Учреждения:
- Самарский государственный технический университет
- Академия строительства и архитектуры
- Выпуск: Том 11, № 4 (2021)
- Страницы: 43-47
- Раздел: СТРОИТЕЛЬНЫЕ КОНСТРУКЦИИ, ЗДАНИЯ И СООРУЖЕНИЯ
- URL: https://journals.eco-vector.com/2542-0151/article/view/99646
- DOI: https://doi.org/10.17673/Vestnik.2021.04.5
- ID: 99646
Цитировать
Полный текст
Аннотация
Сущность предлагаемого инновационного метода заключается в том, что испытание монолитной железобетонной балочной плиты здания проводят без разрушения, по комплексу единичных показателей качества, оценивая их величину с помощью статистического контроля. Для этого определяют геометрические размеры балочной плиты, схему обогрева расчетного сечения в условиях пожара, размещение арматуры в сечении, глубину заложения и степень ее огнезащиты, показатель термодиффузии бетона, величину испытательной нагрузки на монолитную балочную железобетонную плиту и интенсивность напряжения в стержнях продольной рабочей арматуры. Применение предлагаемого метода позволит определить фактическую огнестойкость монолитной железобетонной балочной плиты перекрытия без натурного огневого воздействия.
Полный текст
Исследование относится к области пожарной безопасности зданий и может быть использовано для классификации монолитных железобетонных балочных плит перекрытий зданий по показателям сопротивления их воздействию высоких температур при пожаре [1–5]. Это дает возможность обоснованного использования существующих конструкций с фактическим проектным пределом огнестойкости в зданиях, различных по функциональной пожароопасности [6–10].
Потребность оценки показателей огнестойкости монолитных железобетонных плит перекрытий возникает при усилении его конструкций, реконструкции здания, приведении фактической огнестойкости конструкций здания в соответствие с требованиями соответствующих норм, при проведении экспертизы и восстановлении монолитных железобетонных плит после пожара [11–14].
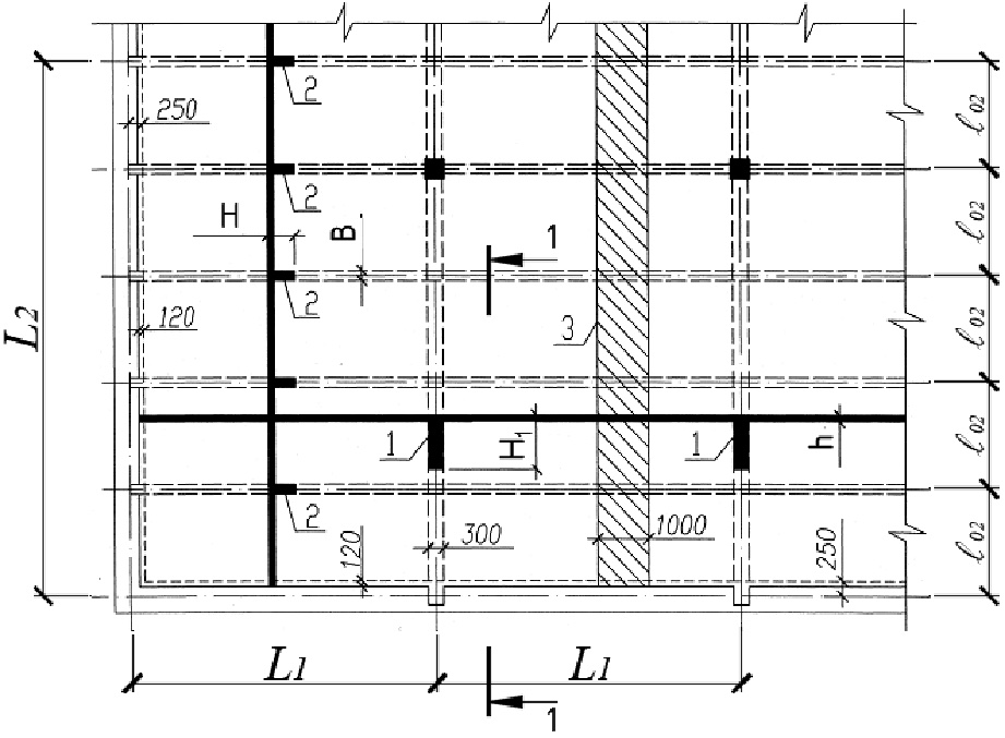
Особенностью предлагаемого авторами метода является то, что в качестве железобетонной балочной конструкции здания принимается монолитная железобетонная балочная плита перекрытия (риc. 1, 2), для которой определяется интенсивность силовых напряжений в растянутой арматуре в расчетном сечении и показатель неразрезности монолитной железобетонной балочной плиты перекрытия (риc. 3–5). При этом фактический предел огнестойкости монолитной железобетонной балочной плиты перекрытия по признаку потери несущей способности FU(R), мин, определяют используя аналитическое уравнение
(1)
где Jσs – интенсивность напряжения продольной рабочей арматуры в расчетном сечении монолитной железобетонной балочной плиты перекрытия; n – эмпирический показатель класса продольной рабочей арматуры; tcr – критическая температура рабочей арматуры; С – степень огнезащиты продольной рабочей арматуры; e – натуральное число; km – показатель неразрезности монолитной железобетонной балочной плиты перекрытия.
Риc. 1. Конструктивная схема перекрытия здания из монолитных железобетонных балочных плит: 1 – главная балка; 2 – второстепенная балка; 3 – расчетная полоса шириной b = 1000 мм для расчета плиты на прочность и огнестойкость; L1 и L2 – пролеты балочной плиты, мм; H1 и H – высота сечения главной и второстепенной балки, мм; h – высота сечения плиты, мм; ℓ01 и ℓ02 – расчетные размеры пролетов балочной плиты, мм; B – ширина второстепенной балки, мм
Риc. 2. Расчетные пролеты и схемы армирования продольного сечения балочной плиты; С1 и С2 – арматурные сетки; ℓ01 и ℓ02 – расчетные размеры пролетов балочной плиты, мм; а – заделка балочной плиты в стене на опоре, мм
Риc. 3. Расчетная схема балочной плиты: g – расчетная равномерно распределенная нагрузка, кН/м
Риc. 4. Эпюра изгибаемых моментов: ℓ – расстояние в осях перекрытия
Риc. 5. Расчетное поперечное сечение балочной плиты: b – ширина расчетной полосы балочной плиты, мм; h и h0 – высота поперечного сечения балочной плиты и ее рабочая высота, мм
Предел огнестойкости монолитной железобетонной балочной плиты перекрытия по признаку потери теплоизолирующей способности FU(J), мин, вычисляют по степенной функции
(2)
где hmin – минимальная толщина полки монолитной железобетонной плиты перекрытия, мм; Dвт – показатель термодиффузии бетона, мм2/мин.
Показатели огнестойкости (n и tс r, °C) монолитной железобетонной балочной плиты перекрытия, армированной различными видами стали, принимают в зависимости от класса арматуры (см. таблицу)
Показатели огнестойкости монолитной железобетонной балочной плиты перекрытия
Класс арматуры | А 400 | А 240, А 500 | А 600 | А 800 | А 1000 | К 1500 (К-7, К-19) |
n | 4,4 | 2,8 | 3,6 | 4,2 | 3,85 | 2,48 |
tсr, °C | 550 | 510 | 505 | 500 | 450 | 365 |
Степень огнезащиты продольной рабочей арматуры при одностороннем подводе тепла (С) рассчитывают по степенной функции
(3)
где amin – минимальная глубина залегания продольной рабочей арматуры в поперечном сечении, мм; Dвт – показатель термодиффузии бетона, мм2/мин.
Интенсивность силовых напряжений (Jσs) в растянутой арматуре в расчетном сечении монолитной железобетонной плиты перекрытия определяют по уравнению
(4)
где gн,дл и g – нормативная длительная и расчетная нагрузка, кН·м; As и Asu – площадь сечения по проекту фактическая и требуемая по расчету, мм2; Rs и Rsu – расчетное и предельное сопротивление арматуры, МПа.
Показатель неразрезности монолитной железобетонной балочной плиты перекрытия здания (km) определяют по уравнению
(5)
где Aon и А – соответственно площади сечения продольной рабочей арматуры над опорой и в пролете монолитной железобетонной балочной плиты перекрытия, мм2; tст – температура стандартного пожара (tст, °C) в условиях его развития (τст, , мин), вычисленная по уравнению
(6)
Схему обогрева поперечного сечения монолитной железобетонной балочной плиты перекрытия (риc. 6, 7) в условиях пожара определяют в зависимости от фактического расположения частей здания, устройства подвесных потолков, расположения смежных конструкций.
Риc. 6. Продольный разрез балочной плиты: ℓ01 и ℓ02 – расчетные размеры пролетов, мм; gн,дл – нормативная длительная нагрузка, кН/м
Риc. 7. Расчетное поперечное сечение балочной плиты, схема обогрева стержней рабочей арматуры в условиях стандартного пожара: h и h0 – высота поперечного сечения балочной плиты и ее рабочая высота, мм; ау – глубина заложения рабочей арматуры балочной плиты, мм; Аs – площадь рабочей арматуры балочной плиты, мм2; х – высота сжатой зоны поперечного сечения, мм
Число и место расположения контрольных участков, в которых определяют показатели качества монолитной железобетонной балочной плиты перекрытия, определяют следующим образом. В монолитной железобетонной балочной плите перекрытия, имеющей одно расчетное сечение, контрольные участки располагают только в этом сечении. В плите, имеющей несколько расчетных сечений, контрольные участки располагают равномерно по поверхности с обязательным расположением части контрольных участков в расчетном сечении.
Для статически неопределимой монолитной железобетонной балочной плиты перекрытия расчетные сечения назначают в пролетах и на опорах. Расчетное сечение при этом находят по наибольшей ординате огибающей эпюры моментов.
Размеры монолитной железобетонной балочной плиты перекрытия проверяют с точностью до 1 мм; ширину трещин – с точностью до 0,05 мм.
Под глубиной залегания продольной рабочей арматуры понимают расстояние по нормали между поверхностью бетона монолитной железобетонной балочной плиты перекрытия и продольной осью рабочей арматуры.
Для сплошной плиты, армированной сетками или отдельными стержнями при одностороннем их обогреве (m0 = 1), глубину залегания продольной рабочей арматуры (amin, мм) в поперечном сечении определяют по алгебраическому выражению
(7)
где u – толщина защитного слоя бетона, мм; d – номинальный диаметр стержня, мм
Интенсивность силовых напряжений (Jσs) в растянутой арматуре в расчетном сечении и монолитной железобетонной плиты перекрытия определяют по уравнению
где gн,дл и g – нормативная длительная и расчетная нагрузка, кН·м; As и As,тр – площадь сечения по проекту фактическая и требуемая по расчету, мм2; Rs и Rsu – расчетное и предельное сопротивление арматуры, МПа.
Выводы. Технологический результат выполненной работы заключается в следующем:
- Исключение огневых испытаний плит перекрытий здания или его фрагмента.
- Снижение трудоемкости оценки огнестойкости монолитной железобетонной балочной плиты.
- Расширение технологических возможностей определения фактической огнестойкости различно нагруженных монолитных железобетонных балочных плит любых размеров по признакам потери несущей и теплоизолирующей способности.
- Возможность проведения испытания балочных плит перекрытия на огнестойкость без нарушения функционального процесса в здании.
- Снижение экономических затрат на испытание.
- Сохранение эксплуатационной пригодности здания при обследовании и неразрушающих испытаниях балочных плит перекрытия.
- Упрощение условий и сокращение сроков испытания балочных плит перекрытия на огнестойкость.
- Повышение точности и экспрессивности испытания.
- Определение реального ресурса балочной плиты перекрытия по огнестойкости с использованием комплекса единичных показателей качества.
- Повышение точности определения степени огнезащиты продольной рабочей арматуры балочной плиты перекрытия, глубины залегания и степени ее обогрева в условиях пожара.
- Упрощение учета влияния на предел огнестойкости балочной плиты перекрытия особенностей статической схемы ее работы.
- Определение фактических пределов огнестойкости балочной плиты перекрытия здания в зависимости от конструктивных параметров, по признакам потери несущей и теплоизолирующей способности.
Об авторах
Николай Алексеевич Ильин
Самарский государственный технический университет; Академия строительства и архитектуры
Автор, ответственный за переписку.
Email: panda-w800i@yandex.ru
кандидат технических наук, доцент кафедры водоснабжения и водоотведения
Россия, 443100, г. Самара, ул. Молодогвардейская, 244Денис Александрович Панфилов
Самарский государственный технический университет; Академия строительства и архитектуры
Email: panda-w800i@yandex.ru
кандидат технических наук, доцент, заведующий кафедрой железобетонных конструкций
Россия, 443100, г. Самара, ул. Молодогвардейская, 244Юрий Викторович Жильцов
Самарский государственный технический университет; Академия строительства и архитектуры
Email: panda-w800i@yandex.ru
старший преподаватель кафедры железобетонных конструкций, заведующий лабораторией железобетонных конструкций «ОНИЛ ЖБК»
Россия, 443100, г. Самара, ул. Молодогвардейская, 244Список литературы
- Ильин Н.А., Панфилов Д.А., Мордовский С.С. Сопротивление строительных конструкций зданий в условиях пожара. Самара: СамГТУ, 2018. 71 с.
- Панфилов Д.А., Бородачёв Н.А. Исследование влияния трещинообразования на прогибы изгибаемых железобетонных элементов // Традиции и инновации в строительстве и архитектуре: материалы 70-й юбилейной Всероссийской научно-технической конференции / СГАСУ. Самара, 2013. С. 314–316.
- Федоров В.С., Левитский В.Е., Молчанский И.С. Огнестойкость и пожарная опасность строительных конструкций. М.: АСВ, 2008. 408 с.
- Федоров В.С., Колчунов В.И., Левитский В.Е. Противопожарная защита зданий: Конструктивные и планировочные решения. М.: АСВ, 2018. 176 с.
- Мосалков И.Л., Плюснина Г.Ф., Фролов А.Ю. Огнестойкость строительных конструкций. М.: ЗАО «Спецтехника», 2001. 496 с.
- Мордовский С.С., Ильин Н.А., Панфилов Д.А., Таланова В.Н., Бузовская Я.И. Метод моделирования железобетонной балки с двойной арматурой по прочности, деформации и огнестойкости // Градостроительство и архитектура. 2019. Т.9, № 1. С. 4–9. doi: 10.17673/Vestnik.2019.01.1.
- Патент № 2650704 RU, МПК G 01 25/50. Способ оценки огнестойкости балочной конструкции / Ильин Н.А., Панфилов Д.А., Ильина В.Н., заяв. СамГТУ: 07.03.2017; опубл. 17.04.2018. Бюл. № 11.
- Заявка на изобретение № 2019 000 000, МПК G01№ 25/50. Способ оценки огнестойкости двухпролётной железобетонной балки здания / Ильин Н.А., Панфилов Д.А., Колеснев Н.А., Силантьев И.А.
- Ильин Н.А., Мордовский С.С., Панфилов Д.А. Теория и проектирование железобетонных конструкций. Самара: СамГТУ, 2018. 86 с.
- Ильин Н.А., Панфилов Д.А. Оценка огнестойкости проектируемых железобетонных конструкций зданий: монография. Самара: СамГТУ, 2017. 186 с.
- Патент РФ 2615048; G 01 № 25/50. Способ оценки огнестойкости железобетонной балочной конструкции здания / Ильин Н.А., Панфилов Д.А., заяв. СГАСУ: 05.11.2015, опубл. 03.04.2017. Бюл. № 10.
- Бородачев Н.А. Курсовое проектирование железобетонных и каменных конструкций в диалоге с ЭВМ. 2-е изд., перераб. и доп. Самара, 2017. 256 с.
- Ильин Н.А., Панфилов Д.А., Колеснев Н.А., Силантьев И.А. Оценка проектной огнестойкости двухпролетной железобетонной балки здания // Градостроительство и архитектура. 2019. Т.9, № 4. С. 16–21. doi: 10.17673/Vestnik.2019.04.3.
- Ильин Н.А., Мордовский С.С., Потатуева Ю.А., Резяпкина К.В. Новый метод оценки огнестойкости железобетонной колонны круглого сечения // Градостроительство и архитектура. 2020. Т.10, № 3. С.9–14. doi: 10.17673/Vestnik.2020.03.2.
Дополнительные файлы










