Оценка теплозащитных характеристик строительных ограждающих конструкций здания гостиницы мужского монастыря
- Авторы: Вытчиков Ю.С.1,2, Беляков И.Г.3, Сапарёв М.Е.1,2
-
Учреждения:
- Самарский государственный технический университет
- Академия строительства и архитектуры
- ООО «Гирон»
- Выпуск: Том 11, № 4 (2021)
- Страницы: 72-80
- Раздел: ТЕПЛОСНАБЖЕНИЕ, ВЕНТИЛЯЦИЯ, КОНДИЦИОНИРОВАНИЕ ВОЗДУХА, ГАЗОСНАБЖЕНИЕ И ОСВЕЩЕНИЕ
- URL: https://journals.eco-vector.com/2542-0151/article/view/99973
- DOI: https://doi.org/10.17673/Vestnik.2021.04.9
- ID: 99973
Цитировать
Полный текст
Аннотация
Представлены результаты тепловизионного исследования и теплотехнического расчёта строительных ограждающих конструкций здания гостиницы мужского монастыря в селе Винновка Ставропольского района Самарской области. Обследование проводилось с целью установления причин пониженных температур в помещениях гостиницы. Согласно СП 50.13330.2012 «Тепловая защита зданий» нормативы по энергосбережению в строительстве не распространяются на культовые здания. Уровень теплозащиты указанных выше зданий определяется обеспечением современных санитарно-гигиенических норм. На основании компьютерного моделирования температурных полей в наружных стенах, выполненных в виде колодцевой кладки с применением полистиролбетона в качестве утеплителя, было установлено, что по значению приведенного сопротивления теплопередаче они соответствуют нормативным требованиям. Фактические значения приведенного сопротивления теплопередаче наружных стен, полученные по результатам тепловизионного обследования, в нижней части наружных стен в отдельных помещениях оказались существенно ниже нормативных, что приводит к повышенным теплопотерям и, как следствие, к охлаждению внутреннего воздуха. Установлены причины пониженных температур воздуха в помещениях гостиницы и разработаны рекомендации по устранению указанных выше дефектов.
Полный текст
Обследование строительных ограждающих конструкций проводилось сотрудниками центра «Энергосбережение в строительстве» СамГТУ с целью установления причин пониженных температур внутреннего воздуха, а также выпадения конденсата на внутренних поверхностях оконных откосов и наружных стен. Для выявления причин указанных выше дефектов был выполнен теплофизический расчёт колодцевой кладки наружных стен с применением полистиролбетона в качестве утеплителя. Перспективы и область применения полистиролбетона представлены в работах [1, 2]. Структура и свойства полистиролбетонов, применяемых в современном строительстве, описаны в работах [3–6]. Вопросы, связанные с повышением энергоэффективности реконструируемых зданий и сооружений при использовании легких бетонов, рассмотрены в работах [8, 9].
Наружная и внутренняя верста кладки согласно проекту выполнена из глиняного кирпича толщиной 120 и 300 мм соответственно. Наружные стены с внутренней и наружной сторон оштукатурены цементно-песчаным раствором толщиной 20 мм.
На риc. 1 представлен фрагмент колодцевой кладки.
Риc. 1. Фрагмент наружной стены: а – сечение по стене; б – план кладки
Состав наружной стены показан в табл. 1.
Расчётное значение приведенного сопротивления теплопередаче было определено по методике, представленной в [10].
Температурное поле в рассматриваемой колодцевой кладке является трехмерным, выполнить расчёт которого аналитическими методами не представляется возможным.
Согласно [11] приведенное термическое сопротивление неоднородной облегчённой кладки с теплоизоляционным слоем определялось по формуле
(1)
где Rа – термическое сопротивление стены в плоскости, параллельной направлению теплового потока, (м2·°С)/Вт; Rб – термическое сопротивление стены в плоскости, перпендикулярной направлению теплового потока, (м2·°С)/Вт.
Термическое сопротивление колодцевой кладки в направлении, параллельном тепловому потоку, определялось для двух характерных сечений (А-А; Б-Б) по формуле
(2)
Таблица 1
Состав наружной стены
Наименование | Толщина δ, м | Плотность γ, кг/м3 | Коэффициент теплопроводности λ, Вт/(м ∙°С) | Коэффициент паропроницаемости μ, мг/(м∙ч∙Па) | |
Цементно-песчаный раствор | 0,02 | 1800 | 0,76 | 0,090 | |
Кладка из кирпича глиняного обыкновенного (ГОСТ 530-80) на цементно-песчаном растворе | 0,38 | 1800 | 0,70 | 0,110 | |
Полистиролбетон | 0, 14 | 600 | 0,175 | 0,068 | |
Цементно-песчаный раствор | 0,02 | 1800 | 0,76 | 0,090 | |
Термическое сопротивление RА-А было определено по двухмерному температурному полю с помощью программы THERM 7.6 по методике, приведенной в [10].
Температурные поля представлены на риc. 2 и 3.
(3)
где τвср, τнср – средняя температура внутренней и наружной поверхности стены соответственно, °С; qрасч – величина теплового потока, Вт/м2:
(4)
Риc. 2. Температурное поле в вертикальном сечении наружной стены
Риc. 3. Температурное поле в горизонтальном сечении наружной стены
Величина RА-А составила 1,43 (м2·°С)/Вт.
Термическое сопротивление RБ-Б определялось аналогичным путем по формуле
(5)
Аналогичным образом рассчитывалось термическое сопротивление стены Rб, (м2·°С)/Вт, в направлении, перепендикулярном движению теплового потока для двух характерных сечений (В-В, Г-Г) (см. риc. 1).
(6)
Термическое сопротивление RВ-В по результатам расчета температурных полей составило 1,353 (м2· °С)/Вт.
Приведенное сопротивление теплопередаче наружной стены составило:
Полученное расчетное значение сопротивления теплопередаче оказалось выше нормативного, исходя из санитарно-гигиенических условий, т. е.
Тепловизионное обследование строительных ограждающих конструкций проводилось при температуре наружного воздуха tн = -6,5 °C.
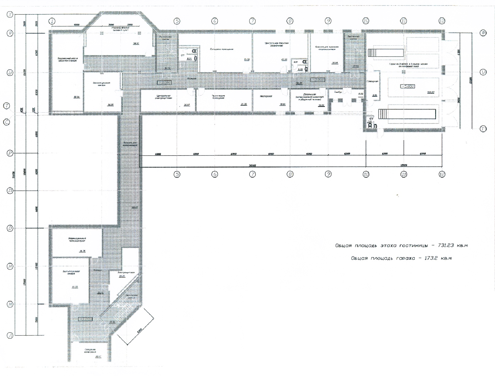
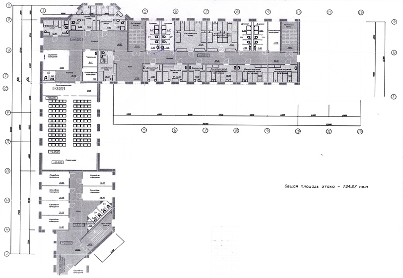
Общий вид с высоты полета архиерейского подворья в честь Казанской иконы Божьей Матери в с. Винновка Ставропольского района Самарской области представлен на риc. 4. На риc. 5, 6 приведены планы первого и второго этажей гостиницы соответственно.
Риc. 4. Вид с высоты полета на архиерейское подворье в с. Винновка
Риc. 5. План первого этажа здания гостиницы с гаражом
Риc. 6. План второго этажа здания гостиницы с гаражом
Обследование фасадов здания гостиницы проводилось с помощью тепловизора Therma CAM B2.
Общие теплопотери строительными ограждающими конструкциями определялись по результатам тепловизионного обследования по формуле
(7)
где Fi – площадь термически однородной зоны на фасаде, м2; – средняя величина удельного теплового потока, равная
(8)
где – средняя температура наружной поверхности на рассматриваемом участке фасада, °С.
Согласно ГОСТ 26254-84, сопротивление теплопередаче ограждающих конструкций рассчитывалось по формуле
(9)
Результаты тепловизионного обследования фасадов здания гостиницы приведены в техническом заключении в виде фотоснимков и термограмм.
На риc. 7 представлен один из фрагментов фасада здания гостиницы в инфракрасном и видимом спектрах.
Риc. 7. Фрагмент ограждения в инфракрасном и видимом спектрах
В связи с тем, что в трех помещениях, расположенных на втором этаже (подсобное помещение № 2, комнаты № 18, 22), было холодно в зимний период, наряду с тепловизионным обследованием внутренних поверхностей ограждающих конструкций производилось измерение температур и тепловых потоков с помощью контактных приборов.
Результаты теплотехнического обследования строительных ограждающих конструкций в этих помещениях представлены в табл. 2.
Визуальный осмотр и анализ результатов теплотехнического обследования здания гостиницы позволили установить следующее:
- Обследование помещений первого этажа показало, что их тепловлажностный режим соответствует нормативным требованиям (табл. 3).
Согласно нормативным требованиям, температура внутреннего воздуха в гостиницах должна быть не ниже 20 °С, относительная влажность воздуха – менее 55 %.
- Обследование ряда помещений второго этажа (подсобное помещение № 2, жилые комнаты № 18 и 22) выявило отклонения температуры внутреннего воздуха и относительной влажности от нормативных значений, приведенных в ГОСТ 30494-96.
Согласно данным, приведенным в табл. 1, отмечена пониженная температура внутреннего воздуха в жилой комнате № 22, равная 19 °С. Наблюдалась повышенная влажность во всех помещениях (φ = 53–56 %), вызванная неудовлетворительной работой систем вентиляции.
- Изучение проектной документации, представленной заказчиком на здание гостиницы, выявило существенные отклонения в планировке и назначении перечисленных выше трех помещений.
Таблица 2
Результаты теплотехнического обследования строительных ограждающих конструкций (tн = -6,5 °С)
Вид ограждения | Наименование помещения | Отмеченные дефекты | Расположение здания в осях | Температура внутреннего воздуха, °С | Относительная влажность воздуха, % | Температура внутренней поверхности, °С | Удельный тепловой поток, Вт/м2 | Сопротивление теплопередаче, (м2 °С)/Вт | Температура внутренней поверхности, °С | Перепад температур, °С |
при расчетных значениях: tв = 20 °С; tн = -30 °С | ||||||||||
1 | 2 | 3 | 4 | 5 | 6 | 7 | 8 | 9 | 10 | 11 |
Наружная стена | Подсобное помещение № 2 | - | В осях 5-6 | 21,5 | 56 | 17,6 18,6 18,7 | 33,9 25,23 24,36 | 0,826 1,11 1,15 | 13,0 14,8 15,0 | 7,0 5,2 5,0 |
23,0 | 20,9 | 18,27 | 1,61 | 16,4 | 3,6 | |||||
Стеклопакет | Подсобное помещение № 2 | Конденсат на окнах | В осях 5-6 | 22,6 | 55 | 16,0 | 57,4 | 0,51 | 8,7 | 11,3 |
Внутренняя стена | Комната № 18 | - | В осях 5-6, Ф-У | 21,8 | 55 | 22,4 | - | - | - | - |
Наружные стены: | ||||||||||
Стык с перекрытием | Комната № 18 | - | На осях Ф,5-6 | 21,8 | 55 | 16,7 | 44,4 | 0,64 | 11,0 | 9,0 |
Нижняя часть | Комната № 18 | - | На осях Ф,5 | 21,8 | 55 | 19,7 | 18,27 | 1,55 | 16,3 | 3,7 |
Верхняя часть | Комната № 18 | - | На осях Ф,5 | 21,0 | 55 | 18,9 | 18,27 | 1,50 | 16,2 | 3,8 |
Наружная стена | Комната № 22 | - | В осях 1, Т-У | 19,0 | 53 | 17,2 | 20,0 | 1,28 | 15,5 | 4,5 |
Таблица 3
Результаты обследования помещений
Наименование помещений | Температура внутреннего воздуха, °С | Относительная влажность воздуха, % |
Вестибюль | 20,5–21 | 30–35 |
Лестничные клетки | 18,3–21,9 | 31–34 |
Кухня | 22–23 | 40–42 |
Конференц-зал | 23,6–24,5 | 32–38 |
Согласно проекту и риc. 7, вместо части душевой было организовано подсобное помещение № 2. Другая часть душевой вошла в состав жилой комнаты № 18, перегородка между душевой и комнатой № 18 была ликвидирована.
Во внутренней стене, расположенной между подсобным помещением № 2 и жилой комнатой № 18, размещены вентиляционные каналы.
В жилой комнате № 22 также произошла перепланировка за счет ликвидации санузла, в результате чего существенно увеличилась ее жилая площадь. К сожалению, в этой комнате установлен лишь один стальной панельный радиатор под окном, что привело к неравномерному распределению температуры в разных зонах комнаты.
- Температура внутренних поверхностей ограждающих конструкций приведена в табл. 2 и на термограммах.
Визуальный осмотр ограждающих конструкций установил наличие конденсата на стеклопакетах в подсобном помещении № 2, а также в жилых комнатах № 18 и № 22, расположенных на втором этаже, что вызвано повышенной влажностью в этих помещениях.
Выпадение конденсата не зарегистрировано на внутренних поверхностях наружных стен в момент обследования здания гостиницы при температуре наружного воздуха tн = -6,5 °С.
Выполненное приведение к расчетным условиям (tв = 20 °С; tн = -30 °С) показало, что даже в наиболее слабых с теплотехнической точки зрения строительных узлах (наружные углы и стыки с перекрытиями) температура их внутренней поверхности превышает значение точки росы, равное tр = 10,7 °С при tв = 20 °С и φв = 55 %.
- Сопротивление теплопередаче наружных стен по данным теплотехнического обследования находилось в пределах от 1,11 до 1,65 (м2·°С)/Вт. Такое существенное отличие можно объяснить различными факторами:
– применением колодцевой кладки, вызывающей неравномерность в распределении температур на внутренней поверхности стены;
– трудностью обеспечения в процессе строительства проектной марки полистиролбетона.
Выводы. С целью установления причин пониженных температур в помещениях гостиницы было проведено тепловизионное обследование наружных ограждающих конструкций и анализ проектной документации. Для создания благоприятного тепловлажностного режима в подсобном помещении № 2 и жилых комнатах № 18 и 22 рекомендуется:
- Провести обследование эффективности работы системы отопления и проверить соответствие фактической поверхности нагрева отопительных приборов расчетным данным.
- Для устранения повышенной влажности в подсобном помещении № 2 и жилых комнатах № 18 и 22 необходимо решить вопросы вентиляции данных помещений.
Об авторах
Юрий Серафимович Вытчиков
Самарский государственный технический университет; Академия строительства и архитектуры
Автор, ответственный за переписку.
Email: git.2008@mail.ru
кандидат технических наук, доцент, профессор кафедры теплогазоснабжения и вентиляции
Россия, 443100, г. Самара, ул. Молодогвардейская, 244Игорь Геннадьевич Беляков
ООО «Гирон»
Email: igbelyakov@yandex.ru
начальник отдела
Россия, 443124, г. Самара, ул. 6-я просека, 140Михаил Евгеньевич Сапарёв
Самарский государственный технический университет; Академия строительства и архитектуры
Email: msx072007@yandex.ru
кандидат технических наук, доцент кафедры теплогазоснабжения и вентиляции
Россия, 443100, Россия, г. Самара, ул. Молодогвардейская, 244Список литературы
- Ибрагимов А.М., Титунин А.А., Гнедина Л.Ю., Лабутин А.Н. Полистиролбетон в промышленном и гражданском строительстве // Строительные материалы. 2016. № 10. С. 21–23.
- Рахманов В.А. Теплоэффективные ограждающие конструкции зданий с использованием полистиролбетонов, разработанных институтом «ВНИИ Железобетон» // Промышленное и гражданское строительство. 2017. № 2. С. 9–18.
- Журба О.В., Щукина Е.Г., Архинчеева Н.В., Заяханов М.Е., Щукин Э.А. Конструкционно-теплоизоляционный полистиролбетон на основе регенерированного сырья // Строительные материалы. 2007. № 3. С. 50–54.
- Орлова А.М., Григорьева Л.С., Логунин А.Ю., Белов Н.Р. Особенности структуры стеклополистиролбетона на жидкостекольном вяжущем // Научное обозрение. 2015. № 18. С. 121–125.
- Рахманов В.А., Мелихов В.А., Капаев Г.И., Козловский А.И. Инновационная спецтехнология получения полистиролбетона нового поколения // Промышленное и гражданское строительство. 2017. № 2. С. 29–31.
- Лукутцова Н.П., Пыкин А.А., Соболева Г.Н., Александрова М.Н., Головин С.Н. Структура и свойства полистиролбетона с силикатными пастами // Вестник БГТУ им. В.Г. Шухова. 2017. № 11. С. 25-33.
- Баженов Ю. М., Король Е. А., Ерофеев В. Т., Митина Е. А. Ограждающие конструкции с использованием бетонов низкой теплопроводности. М.: АСВ, 2008. 320 с.
- Вытчиков Ю.С., Беляков И.Г., Белякова Е.А., Славов С.Д. Повышение энергоэффективности реконструируемых жилых зданий // Строительные материалы, оборудование, технологии XXI века. 2008. № 1 (108). С. 62-63.
- Вытчиков Ю. С., Сапарев М.Е., Прилепский А.С. Урядов М.И. Исследование влияния плотности монолитного керамзитобетона на энергоэффективность зданий, эксплуатируемых в условиях переменного теплового режима // Градостроительство и архитектура. 2019. № 3. С. 50-55. doi: 10.17673/Vestnik.2019.03.7.
- Вытчиков Ю. С., Сапарев М.Е., Прилепский А.С. Конякина Д.Д. Оценка теплозащитных характеристик колодцевых кладок с применением беспесчаного керамзитобетона // Градостроительство и архитектура. 2019. № 1. С. 15-19. doi: 10.17673/Vestnik.2019.01.3.
- Фокин К.Ф. Строительная теплотехника ограждающих частей зданий. М.: АВОК-ПРЕСС, 2006. 256 с.
Дополнительные файлы










