Report on the maternity ward of Odessa city hospital, 1893
- Authors: Razumovsky M.I.1
-
Affiliations:
- Odessa city hospital
- Issue: Vol 8, No 9 (1894)
- Pages: 819-834
- Section: Articles
- Submitted: 20.09.1894
- Accepted: 16.09.2020
- Published: 20.09.1894
- URL: https://journals.eco-vector.com/jowd/article/view/44252
- DOI: https://doi.org/10.17816/JOWD89819-834
- ID: 44252
Cite item
Full Text
Abstract
Offering the attention of comrades a report on the maternity ward of the Odessa City Hospital for 1893 and having in mind to publish such reports annually, I think it is not without interest to preface a few words about the internal structure of this department and about the procedures established during the birth of a woman in childbirth and birth in period.
Full Text
Предлагая вниманію товарищей отчетъ по Родильному отдѣленію Одесской Городской Больницы за 1893 годъ и имѣя въ виду издавать подобные отчеты ежегодно, считаю не безъ интереснымъ предпослать нѣсколько словъ о внутреннемъ устройствѣ этого отдѣленія и о порядкахъ, заведенныхъ при пріемѣ роженицъ, въ теченіи родоваго акта и въ послѣродовомъ періодѣ.
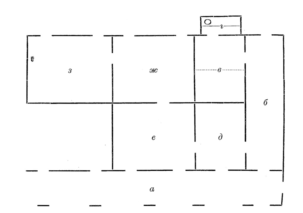
Въ настоящее время отдѣленіе расчитано на 12 коекъ послѣродовыхъ и на 3 койки для роженицъ; оно занимаетъ, сравнительно, небольшой уголъ въ главномъ корпусѣ стараго зданія городской больницы, въ нижнемъ этажѣ и вмѣщаетъ въ себѣ 4 небольшихъ палаты, изъ которыхъ двѣ полутемныя — окнами въ общій корридоръ, и двѣ свѣтлыя — окнами въ задній дворъ больницы, смотрящими на фасадъ довольно близкаго, но непріятнаго сосѣда,— на баракъ съ острыми сыпными формами. Въ трехъ палатахъ по два окна, и въ четвертой, самой маленькой — одно окно. Площадь пола въ первыхъ трехъ палатахъ равняется 21,5 квадр. саж.; въ четвертой — 4,5 квадр. саж. Полы во всѣхъ палтахъ деревянные, крашенные. Палаты довольно высоки (6 аршинъ), но расположены, какъ видно изъ прилагаемаго плановаго наброска, такъ, что имѣютъ единственный выходъ въ корридоръ чрезъ маленькую палату.
План родильного отделения
Ради ясности, будемъ придерживаться плана, и такъ: изъ общаго корридора а, огибающаго собою все зданіе больницы, и зимой, не взирая на усердное отопленіе, довольно прохладнаго, ведетъ дверь въ другой небольшой корридоръ, соединяющій задній дворъ больницы съ общимъ корридоромъ. Изъ этого маленькаго корридора б, зимою еще болѣе холоднаго, благодаря наружной двери, одна дверь ведетъ въ палаты родильнаго отдѣленія, другая—въ ванную и вмѣстѣ съ тѣмъ въ пріемную для роженицъ комнату, которая граничитъ непосредственно съ холоднымъ ватерклозетомъ, (здѣсь кстати замѣтить, что этимъ ватерклозетомъ наши родильницы не пользуются, и всѣ ихъ выдѣленія выносятся въ судкахъ служанками). Комната эта въ высшей степени неудобна; она темна, освѣщаясь днемъ только чрезъ отворенную дверь, идущую въ корридоръ, и до невозможности тѣсна,—въ ней едва помѣщается одна ванна, съ установленнымъ здѣсь же кубомъ и деревянный топчанъ, покрываемый клеенкой и простыней во время перваго осмотра роженицъ. Первая, маленькая палата д, вмѣщая въ себѣ двѣ койки, предназначенныхъ нами для лихорадящихъ родильницъ, имѣетъ характеръ quasi изоляціонной комнаты; говоримъ — quasi, потому что она кромѣ того служитъ и кабинетомъ ординатору, и его раздѣвальной и комнатой для купанья новорожденныхъ, и умывальной для врачебнаго персонала,—такъ много функцій въ такомъ маломъ объемѣ! Затѣмъ слѣдуютъ палаты е и ж для родильницъ; въ первой 4 кровати, во второй—6; и наконецъ, родильная комната з съ тремя кроватями для нормальныхъ родовъ и операціоннымъ столомъ; тутъ же помѣщается деревянный крашенный шкафъ для инструментовъ и небольшой столъ для храненія банокъ съ пуповинными лигатурами, съ іодоформенной марлей, растворами lysol’я и acidi carbolici и прочими необходимыми принадлежностями во время родовъ 1).
Такимъ образомъ, едва-ли не до очевидности ясно, что родильное отдѣленіе наше, среди массы отрицательныхъ качествъ, не запаслось ни однимъ положительнымъ. Начать съ того, что оно помѣщается въ общемъ зданіи больницы, имѣя въ ближайшемъ сосѣдствѣ палаты съ самыми разнообразными, подчасъ заразительными болѣзнями. Рука объ руку, далѣе, что на планѣ не обозначено, помѣщается амбулансъ городской больницы, а чрезъ общій корридоръ иногда транспортируются мимо больные въ заразное отдѣленіе, между которыми нерѣдки скарлатинозные и септическіе дифтериты. Затѣмъ, отдѣленіе на половину темно и лишено всякихъ вентиляціонныхъ приспособленій, кромѣ простыхъ форточекъ, которыя зимою даютъ тонкіе и рѣзкіе сквозняки, простуживающіе родильницъ. Далѣе, всѣ палаты проходныя, что въ значительной мѣрѣ затрудняетъ соблюденіе строгой чистоты въ нихъ и чрезвычайно безпокойно для родильницъ, особенно по ночамъ, когда идутъ роды, что, какъ извѣстно, чаще всего и наблюдается. Отсутствіе отдѣльной комнаты для больныхъ роженицъ, кромѣ понятнаго опасенія переноса заразы на здоровыхъ, крайне усложняетъ уходъ за тѣми и другими; а недостатокъ отдѣльныхъ помѣщеній для купанья младенцевъ и для изоляціи заболѣвающихъ родильницъ, дополняетъ перечень неудобствъ родильнаго отдѣленія, которое, къ слову сказать, въ послѣднее время улучшено, насколько это возможно при данныхъ условіяхъ.
Въ виду всего этого, послѣ перехода родильнаго отдѣленія въ наше завѣдываніе (3 года тому назадъ) главнѣйшей задачей дѣятельности нашей стало: поставить большинство родовъ въ условія наименьшаго вѣроятія занесенія тѣмъ, или другимъ путемъ заразы; а посему акушеркамъ было запрещено производить, особенно повторно, внутреннее изслѣдованіе роженицъ. Для установки же того или другаго діагноза въ положеніи плода и предлежащей части предписывалось ограничиваться тщательнымъ и подробнымъ наружнымъ изслѣдованіемъ. Внутреннее изслѣдованіе дозволялось только въ крайнихъ, строго показанныхъ случаяхъ, напр.: въ случаяхъ кровотеченія, въ случаяхъ рѣзкаго замедленія родоваго акта, необъяснимаго данными наружнаго изслѣдованія, въ случаяхъ неясности данныхъ относительно предлежащей части и т. п.
Сообразно съ этимъ, каждая изъ поступающихъ роженицъ подвергается прежде всего тщательному обмыванію ея половыхъ частей, сначала простой водой съ мыломъ и щеткой, затѣмъ 1% растворомъ lysol’я. Придавая большое значеніе чистотѣ рукъ роженицы, мы настойчиво также требуемъ тщательнаго ихъ обмыванія и дезинфекціи, соблюдая это правило и во все время послѣродоваго періода. Промываніе влагалища дѣлается только при наличности какихъ либо подозрительныхъ выдѣленій. Послѣ этого роженица подвергается предварительному наружному изслѣдованію съ необходимымъ анамнестическимъ распросомъ. Если окажется, что дѣло имѣется со случаемъ, не выходящимъ изъ предѣловъ нормы, то роженица тотчасъ же беретъ ванну и направляется въ родильный покой, гдѣ, если нужно, подвергается болѣе обстоятельному наружному изслѣдованію и измѣренію таза. Послѣ этого роженица оставляется въ покоѣ, и, если не встрѣтится никакихъ осложненій въ теченіи родоваго акта, ни разу не изслѣдуется до полнаго окончанія родовъ. Даже поддержка промежности сведена у насъ на возможно упрощенный актъ: внимательно противодѣйствовать быстрому extensio capitis, которое при сильныхъ потугахъ обыкновенно совершается съ особенною стремительностью, — чѣмъ тоже, отчасти, достигается наша задача: меньше времени и меньше точекъ соприкосновенія съ роженицей. Послѣродовой періодъ ведется просто: принятое выдерживаніе родильницъ въ постели 9 дней у насъ рѣдко соблюдается въ виду необходимости раньше выписывать, дабы очистить мѣсто вновь поступающимъ. У здоровыхъ родильницъ, кромѣ двукратнаго въ день подмыванія 1% растворомъ lysol’я и классическаго оl. ricini на 3-й день ничего не дѣлается. Послѣ родовъ мацерированными плодами обязательно обильное промываніе полости матки 1% растворомъ lysol’я. Кромѣ того у всѣхъ родильницъ ежедневно наблюдается за ходомъ обратнаго развитія матки, и, въ случаяхъ плохой инволюціи, назначается или эрготинъ внутрь, или же массажъ и горячіе влагалищные души. Серьезно заболѣвшія родильницы переводятся немедленно въ заразное родильное отдѣленіе, находящееся въ завѣдываніи другого врача.
Для дезинфекціи рукъ, роженицъ и родильницъ мы употребляемъ въ теченіи послѣднихъ двухъ лѣтъ растворы lysol’я различной крѣпости, смотря по надобности отъ 1/2% до 2%. Инструменты передъ операціей погружаются въ 4% растворъ ас. carbolici. Для удобства и во избѣжаніе возможности перенесенія какихъ либо заболѣваній, (не рѣдко случается, что у насъ лежатъ и сифилитички въ заразительномъ стадіи) нами устроены надъ каждой кроватью родильницъ особыя деревянныя, покрашенныя бѣлой краской гнѣзда — полочки, съ заключенными въ нихъ двумя, хорошо закрывающимися, стеклянными банками, наполненными 3% растворомъ ас. carbolici. Въ одной изъ банокъ, большей, хранится внутриматочный наконечникъ, въ другой, меньшей, влагалищный наконечникъ и катетеръ; всѣ эти инструменты изъ стекла.
Въ заключеніе не могу обойти молчаніемъ еще одного, крайне важнаго факта. Практика послѣднихъ двухъ лѣтъ показала, что родильное отдѣленіе, при данномъ количествѣ коекъ, далеко не удовлетворяетъ требуемому спросу со стороны поступающихъ роженицъ, количество которыхъ съ каждымъ годомъ замѣтно стало возрастать. Теперь, къ сожалѣнію, не рѣдки случаи, когда мы бываемъ принуждены или отказывать въ пріемѣ роженицъ, направляя ихъ, обыкновенно, въ Павловскій пріютъ, чѣмъ вызываемъ съ ихъ стороны вполнѣ понятныя неудовольствія и нарѣканія, или же прибѣгать къ размѣщенію родильницъ по другимъ палатамъ, что, во всякомъ случаѣ, крайне неудобно. Такимъ образомъ, неумолимая, не лицепріятная дѣйствительность открыто заявляетъ: расширяйте отдѣленіе, устраняйте его недостатки. Достигнуть перваго всегда возможно, но выполнить второе безусловно нельзя, даже при всей готовности лицъ, стоящихъ во главѣ учрежденія, ибо нельзя исправить то, что не исправимо. Помочь дѣлу можетъ только одна мѣра: — постройка отдѣльнаго, спеціально приспособленнаго зданія, которое отвѣчало-бы на всѣ строгіе запросы и требованія современнаго акушерства. Мѣра эта, сознанная уже года три тому назадъ представителями нашего городскаго общественнаго самоуправленія, къ величайшему прискорбію, остается до сихъ поръ не исполненною, за не имѣніемъ достаточныхъ средствъ для ея осуществленія. На нѣтъ — суда нѣтъ. Но мы твердо все таки убѣждены, что въ скоромъ будущемъ одна изъ не отложныхъ потребностей гор. Одессы будетъ блестяще осуществлена, по прекрасному проекту одного изъ мѣстныхъ архитекторовъ, заслуженно получившему первую премію два года тому назадъ въ комиссіи врачей спеціалистовъ, въ числѣ которыхъ имѣлъ честь состоять и пишущій эти строки.
Число роженицъ, разрѣшившихся въ Родильномъ Отдѣленіи Одесской Городской Вольницы въ теченіи 1893 года 379. Прибавивъ къ этому числу 10 случаевъ такъ называемыхъ уличныхъ родовъ, постигшихъ роженицъ во время доставки ихъ въ городскую больницу и пролежавшихъ въ послѣдней необходимое время послѣродоваго періода, получимъ общее число роженицъ равняющееся 389.
Число разрѣшившихся по мѣсяцамъ распредѣлялось слѣдующимъ образомъ:
Въ Январѣ | 35 | По числу беременностей роженицы распредѣлялись: | |||||
» | Февралѣ | 45 | |||||
» | Мартѣ | 27 |
| Процентъ | |||
» | Апрѣлѣ | 28 | Разрѣшившихся въ 1 разъ | 133 | 34,1 | ||
» | Маѣ | 37 | » | 2 | » | 110 | 28,2 |
» | Іюнѣ | 34 | » | 3 | » | 55 | 14.5 |
» | Іюлѣ | 28 | » | 4 | » | 19 | 4,8 |
» | Августѣ | 41 | » | 5 | » | 20 | 5,1 |
» | Сентябрѣ | 28 | » | 6 | » | 18 | 4,6 |
Въ Октябрѣ | 25 | Разрѣшившихся въ 7 разъ | 10 | 2,5 |
» Ноябрѣ | 32 | » 8 » | 3 | 0,7 |
» Декабрѣ | 29 | » 9 » | 6 | 1,3 |
|
| » 10 » | 8 | 2,0 |
Итого | 389 | » 11 » | 2 | 0,5 |
|
| » 12 » | 2 | 0,5 |
Среднее число мѣсячнаго поступленія = 32.4. | » 13 » | 3 | 0,7 | |
| ||||
Итого | 389 |
| ||
По вѣроисповѣданiю распредѣлялись: | ||
Православныхъ | 314 | 80,7% |
Католичекъ | 18 | 4,6% |
Лютеранокъ | 5 | 1,2% |
Іудеекъ....................... | 52 | 13,5% |
Итого | 389 |
|
По сословію роженицы распредѣлялись: | ||
Крестьянокъ .... | .216 | 55,5% |
Мѣщанокъ....................... | 159 | 40,9% |
Дворянокъ ...................... | 7 | 1,9% |
Иностранно-поддан. | 7 | 1,9% |
Итого | 389 |
|
По роду занятій: | ||
Горничныхъ........................................ | 80 | 20,5% |
Кухарокъ............................................. | 80 | 20,5% |
Прачекъ .............................................. | 19 | 4% |
Домаш. хозяйств................................. | 156 | 40,2% |
Чернорабочихъ.................................... | 15 | 3,9% 4,1% |
Швей................................................... | 16 | |
Нянь.................................................... | 4 | 1,1% |
Служанокъ Гор. Больницы . | 7 | 1,9% |
Торговокъ........................................... | 5 | 1,2% |
Учительницъ ............................... | 1 | 0,2% 0,2% |
Акушерокъ.......................................... | 1 | |
Надзирательницъ Гор. Больн. . | 1 | 0,2% |
Гладильщицъ...................................... | 1 | 0,2% |
Безъ опредѣл. занятій .... | 1 | 0,2% |
Проститутокъ | 2 | 0,5% |
Итого | 389 |
|
По соціальному положенію роженицы распредѣлялись: | ||
Замужнихъ | ......................... 182 | 46,7% |
Незамужнихъ | ......................... 193 | 49,8% |
Вдовъ | ............................ 8 | 2,0% |
Разведенныхъ | 6 | 1,5% |
| Итого . . 389 |
|
По степени образованія распредѣлялись: | ||
Грамотныхъ .... | 86 | 22,1% |
Неграмотныхъ | 303 | 77,9% |
Итого | 389 |
|
По возрасту распредѣлялись: | ||||||||
Возрастъ | отъ 17—20 | отъ 21—25 | отъ 26—30 | отъ 31—35 | отъ 36—40 | отъ 41—43 | Итого | |
| 75 | 137 | 95 | 47 | 23 | 4 | 389, | |
прибавивъ 8 случаевъ не отмѣченныхъ. | ||||||||
Иногороднихъ, но постоянно живущихъ въ Одессѣ | 344 | |||||||
|
|
|
| Пріѣзжихъ | 2 | |||
|
|
|
| Одесситокъ | 43 | |||
|
|
|
| Итого | 389 | |||
Такимъ образомъ процентъ иногороднихъ, но постоянно живущихъ въ Одессѣ....................................................... | 88,2 | |
Процентъ пріѣзжихъ..................................................... ... | 0,5 | |
» Одесситокъ.................................................... | 11,0 |
По мѣсту рожденія роженицы распредѣлялись: | |||||
Губерніи | Число | Проценты | Губерніи | Число | Проценты |
Херсонской | 123 | 31,7 | Могилевской | 2 | 0,5 |
Подольской | 49 | 12,7 | С. -Петербургской | 1 | 0,2 |
Кіевской | 40 | 10,3 | Саратовской | 1 | 0,2 |
Бессарабской | 22 | 5,8 | Воронежской | 1 | 0,2 |
Орловской | 18 | 4,7 | Смоленской | 1 | 0,2 |
Волынской | 17 | 4,5 | Оренбургской | 1 | 0,2 |
Полтавской | 15 | 3,9 | Владимірской | 1 | 0,2 |
Курской | 10 | 2,6 | Тамбовской | 1 | 0,2 |
Гродненской | 12 | 3,0 | Радомской | 2 | 0,5 |
Минской | 10 | 2,6 | Тверской | 1 | 0,2 |
Калужской | 10 | 2,6 | Плоцкой | 1 | 0,2 |
Губерніи | Число | Проценты | Губерніи Число | Проценты | |
Харьковской | 9 | 2,3 | Финляндской | 1 | 0,2 |
Тульской | 4 | 1,0 | Курляндской | 1 | 0,2 |
Таврической | 4 | 1,0 | Люблинской | 1 | 0,2 |
Черниговской | 4 | 1,0 | По подданству: | ||
Екатеринославской | 4 | 1,0 | |||
Виленской | 3 | 0,7 | Румынско-п. | 1 | 0,2 |
Ковенской | 3 | 0,7 | Турецко-п. | 1 | 0,2 |
Московской | 2 | 0,5 | Греческо-п. | 1 | 0,2 |
Рязанской | 2 | 0,5 | Молдавско-п | 1 | 0,2 |
Самарской | 2 | 0,5 | Прусско-п. | 1 | 0,2 |
Сѣдлецкой | 2 | 0,5 | Австрійско-п. | 3 | 0,7 |
|
|
| Итого | 389 |
|
О роженицахъ:
Родовъ одиночныхъ наблюдалось: | 385 или 98,9% | |
» двойнями » | 4 или 1,1% | |
Итого | 389 |
|
Отношеніе одиночныхъ родовъ къ многоплоднымъ выражается какъ 1:96,2.
Преждевременно разрѣшившихся было: | 16 или 4,1% |
Изъ нихъ 7 мѣсяцевъ............................. | 11 или 2,9% |
» 8 » ......................... | 5 или 1,2% |
Итого. | 16 |
Выкидышныхъ родовъ.......................... | 1 или 0,2% |
Положенія и предлежанія плода наблюдались слѣдующія и въ слѣдующемъ количествѣ разъ:
Черепныя предлежанія | 375 | 96,4% |
Лицевыя » | 1 | 0,2% 2,0% |
Тазовыя » | 8 | |
Ногоположенія................................ | 2 | 0,5% |
Косыя предлежанія бокомъ съ выпаденіемъ конечности................. | 2 | 0,5% |
Неопредѣленныхъ положеній | 5 | 1,2% |
Итого | 393 | включая въ эту |
сумму 4 предлежанія отъ четырехъ родовъ двойнями.
Въ частности предлежанія по положенію и виду ихъ наблюдались:
Первое затылочное, передній видъ .... | 243 |
| 62,2% |
» » задній видъ................................... | 3 |
| 0,7% |
Второе затылочное, передній видъ .... | 127 |
| 32,6% |
» » задній видъ................................... | 2 |
| 0,5% |
Первое лицевое положеніе или лобно-подздош- |
|
|
|
ное лѣвое ....................................................................... | 1 |
| 0,2% |
Первое ягодичное, передній видъ .... | 7 |
| 1,7% |
Второе ягодичное, передній видъ .... | 1 |
| 0,2% |
Ногоположеніе (не отмѣченнаго вида) . Предлежаніе лѣвымъ бокомъ съ выпаденіемъ | 2 |
| .0,5% |
лѣвой ручки ................................................................... | 2 |
| 0,5% |
Неотмѣченныя положенія...................................................... | 5 |
| 1,2% |
Итого | 393 |
|
|
Роженицъ, имѣвшихъ нормальнаго размѣра тазъ, наблюдалось 321 или 82,5%.
Среднее количество часовъ продолжительность родоваго акта равняется 11,04 час.
Въ частности — средняя продолжительность родовъ для первородящихъ 16,6 ч. и таковая же для многородящихъ 6,9 ч.
Самая меньшая продолжительность родоваго акта наблюдалось въ 11/2 часа; самая же большая 144 часа.
Для наглядности продолжительности родоваго акта приведена слѣдующая таблица:
Продолжит. родовъ въ часахъ. | отъ 11/2-7 | отъ 8-12 | отъ 13-17 | отъ 18-22 | отъ 23-27 | отъ 28-32 | отъ 33-37 | отъ 38-42 | отъ 43-47 | отъ отъ 48-52 53-90 | отъ 91-144 | Итого |
Число случаевъ родовъ | 115 | 102 | 40 | 25 | 19 | 9 | 5 | 5 | 2 | 1 1 | 2 | 389 |
Неотмѣченныя | 63 | — | — | — | — | — | — | — | — | — | — | — |
Принимая во вниманіе, что 4 роженицы разрѣшились двойнями, общее количество родившихся дѣтей равняется 393; изъ нихъ:
мальчиковъ .... | 221 | 56% |
дѣвочекъ ....................... | 172 | 44% |
Итого | 393 |
|
Отношеніе числа родившихся мальчиковъ къ таковому же дѣвочекъ выражается какъ 1:1,2; или же приводя это отношеніе къ цифрѣ 100 — получимъ, что на 100 мальчиковъ приходится 77,8 дѣвочекъ.
Мертвыхъ жизнеспособныхъ дѣтей родилось | 19 | или | 4,0% | ||
Изъ нихъ мертвыхъ не мацерированныхъ | 13 | или | 3,3% | ||
» » » мацерированныхъ | 6 | или | 1,6% | ||
| Итого | 19 |
|
| |
Мертвыхъ не жизнеспособныхъ (acephalus) дѣтей родилось ....................................................................... | 1 | 0,2% | |||
Родившихся въ асфиксіи и привед. къ жизни | 2 | 0,5% | |||
| |||||
Отношеніе числа разрѣшеній мертвыми плодами къ общему числу живыхъ дѣтей выражается какъ 1:19,6 5; или же, выражая это отношеніе къ цифрѣ 100 получимъ, что на 100 живыхъ дѣтей рождается 5,09 мертвыхъ.
Объ осложненіяхъ родоваго акта.
Не подлежитъ сомнѣнію, что самый существенный этіологическій моментъ большинства осложненій родоваго акта, — съуженіе таза въ различныхъ степеняхъ и видахъ его. Неоспоримо также и то, что единственно точнымъ критеріумомъ съуженія таза и степени этого съуженія должно считаться тщательное внутреннее изслѣдованіе полости малаго таза и, главнымъ образомъ, точное измѣреніе conjugatae verae.
Поэтому составителю отчета, при ссылкѣ на частоту узкихъ тазовъ, какъ на причину вызвавшую въ теченіи родоваго акта тѣ или другія осложненія послѣдняго, слѣдовало бы пользоваться исключительно данными точнаго внутренняго изслѣдованія таза, при наличности, конечно, данныхъ наружнаго измѣренія, помогающихъ устанавливать характеръ даннаго съуженія и его виды. Но провести на практикѣ это условіе не только трудно исполнимо, но даже безусловно невозможно, особенно при условіяхъ больничнаго веденія дѣла—при его сравнительной малочисленности врачебно-акушерскаго персонала.
Въ виду этого мои данныя о частотѣ узкихъ тазовъ будутъ основываться почти исключительно на результатахъ наружнаго измѣренія и именно на величинѣ наружной конъюгаты; и хотя у меня имѣются данныя и точнаго внутренняго изслѣдованія таза, но принять ихъ въ расчетъ не рѣшаюсь, по ихъ сравнительной малочисленности.
Предѣлъ, съ котораго начинается съуженіе таза я рѣшилъ считать 18 цнт. для наружной конъюгаты, какъ это принято дѣлать многими авторами и составителями отчетовъ. Такимъ образомъ, оказывается, что
тазовъ, у которыхъ conjugata ext. = 18 | 31 | 7,9% | |||
» » | » | » | » =171/2 | 20 | 5,1% |
» » | » | » | » = 17 | 15 | 3,8% |
» » | » | » | » = 161/2 | 1 | 0,2% |
» » | » | » | » = 16 | 1 | 0,2% |
|
|
| Итого | 68 | 17,1% |
Такимъ образомъ, оказывается, что отношеніе нормальныхъ тазовъ къ тазамъ съуженнымъ выражается такъ: 5,2: 1, т. е. въ каждыхъ 5,2 случаяхъ родовъ можно предполагать встрѣтиться одинъ разъ съ той или другой степенью съуженія таза.
Частные случаи осложненій родоваго акта наблюдались слѣдующіе:
Выпаденіе конечностей, именно: | ||
Выпаденіе лѣвой ручки до локтя............................... | 2 | 0,5% |
Выпаденіе пуповины................................................. | 1 | 0,2% |
Вставленіе головки въ сильно выраженной, такъ называемой obliquitas Naegele.................................... | 1 | 0,2% |
Eclampsia s. partu........................................................ | 1 | 0,2% |
Endometritis sub partu................................................. | 1 | 0,2% |
Обвитіе пуповины вокругъ шеи................................. | 6 | 1,5% |
Обвитіе въ 1 разъ............................... 1 |
|
|
»....... » 2 раза............................... 4 |
|
|
»....... » 3...... »............................. 1 |
|
|
Разрывы промежности 2-й степ................................. | 8 | 2,0% |
Кровотеченіе вслѣдствіе преждевременнаго отдѣотдѣленія послѣда.............................................. | 1 | 0,2% |
Итого | 21 | 5,3% |
Осложненія родоваго акта общими заболѣваніями:
Nephritis parenchymatosa chronica .... | 1 | 0,2% |
Pneumonia crouposa.............................................. | 1 | 0,2% |
Syphilis (papula humida introitus vaginae) | 1 | 0,2% |
Insuffic. valvulae mitralis....................................... | 2 | 0,5% |
Angina follicularis acuta......................................... | 1 | 0,2% |
Bronchitis catarrhalis chronica................................ | 2 | 0.5% |
Periostitis radii manu dextri..................................... | 1 | 0,2% |
Eczema fossae popliteae dextri................................ | 1 | 0,2% |
Итого | 10 | 2,5% |
Операціонное пособіе примѣнялось въ 17 случаяхъ, именно: |
|
|
Внутренній поворотъ на ножку............................. | 4 | 1,1% |
Perforatio capitis et cranyoclasia.............................. | 4 | 1,1% |
Наложеніе щипцовъ............................................... | 2 | 0,5% |
Perineorrhaphia ...................................................... | 7 | 1,8% |
Итого | 17 | 4,5% |
Показанія къ операціямъ: | ||
Внутренній поворотъ на ножку произведенъ: | ||
1) При выпаденіи лѣвой ручки................................................ | 2 | |
2) При двойняхъ во время eclampsi’и на второмъ плодѣ для ускоренія родовъ............................................................ | 1 | |
3) При двойняхъ, по случаю кровотеченія послѣ рожденія перваго плода, на второмъ плодѣ................................... | 1 | |
Perforatio cap. et cranyoclasia произведены: | ||
1) При двойняхъ во время eclampsi’и на первомъ, завѣдомо мертвомъ плодѣ, для ускоренія родовъ при мало-открытомъ наружномъ зѣвѣ........................................... | 1 | |
2) При чрезмѣрно косомъ переднетемянномъ вставленіи (obliquitas Naegele) ........................................................ | 2 | |
При плоскомъ нерахитическомъ тазѣ на мертвомъ плодѣ | 1 | |
Наложеніе щипцовъ: |
| |
При pneumonia cruposa, при невполнѣ раскрытомъ зѣвѣ |
| |
для ускоренія родовъ вслѣдствіе грозныхъ припадковъ одышки....................................................... |
| |
1 | ||
При внѣзапномъ ослабленіи потужной дѣятельности | 1 | |
Здоровыхъ родильницъ, ни разу не лихорадив- | ||
шихъ было................................................... | 348 | 89% 10,5% |
Родильницъ лихорадившихъ................................... | 41 | |
Итого | 389 |
|
Родилъницъ, заболѣвшихъ послѣродовыми формами и лихорадившихъ было именно: | 27 | 6,9% |
съ endometritis .............................................. | 4 | 1,0% |
» colpitis traumatica............................................... | 9 | 2,3% 0,7% |
» parametritis exudativa. ........................................ | 3 | |
» febricula ... | 6 | 1,5% |
» ulcera puerperalia................................................ | 1 | 0,2% |
» phlegmasia alba dolens........................................ | 1 | 0,2% |
» endometritis ex retention. velamentor . | 1 | 0,2% 0,2% |
» endometritis ex retention. part. plan. | 1 | |
» retentio lochiorum ex antevers. uteri | 1 | 0,2% |
Итого. | 27 |
|
Родильницъ, заболѣвшихъ непослѣродовыми формами и лихорадившихъ было именно: | 12 | 3,0% |
съ bronchitis catarrhalis acuta................................... | 4 | 1,0% |
» enteritis catarrhalis.............................................. | 5 | 1,2% |
» parotitis idiopatica.............................................. | 1 , | 0,2% |
» pleuritis exudativa . | 1 | 0,2% |
» angina catarrhalis acuta....................................... | 1 | 0,2% |
Итого | 12 |
|
Родильницъ, страдавшихъ трещинами сосковъ, чаще наблюдавшимися на обоихъ соскахъ, было............................................................. | 16 | 4,3% |
Что касается до продолжительности пребыванія родильницъ въ родильномъ отдѣленіи, то среднее число дней этого пребы |
|
|
ванія = Въ частности же — среднее число дней пребыванія въ родильномъ отдѣленіи для первородящихъ ...... | 6,5 7.5 | дн. » |
для многородящихъ...................................... | 5,5 | » |
Самый краткій срокъ пребыванія родильницъ въ родильномъ отдѣленіи.................................. | 3 | дня. |
Самый продолжительный...................................... | 53 | » |
Выписалось здоровыхъ родильницъ .... | 366 | 94% |
» выздоравливающихъ....................... | 13 | 3,3% |
Переведено въ послѣродовое отдѣленіе . | 3 | 0,7% |
» » 3-е отдѣленіе................................ | 4 | 1,0% |
» » хирургическое отдѣленіе | 1 | 0,2% |
Умерло.................................................................. | 2 | 0,5% |
Итого | 389 |
|
Просматривая отчетныя вѣдомости о заболѣваемости и смертности родильницъ въ другихъ родильныхъ учрежденіяхъ и сравнивая ихъ съ данными нашего отдѣленія, получаются чрезвычайно утѣшительные факты въ пользу нашей статистики. Именно, въ то время, какъ въ С.-Петербургскомъ Родовспомогательномъ заведеніи процентъ здоровыхъ родильницъ за 1888 г. равняется 78,33, въ Московскомъ Родовспомогательномъ Заведеніи и въ Родильномъ Пріютѣ Московской Голицинской Больницы за тѣ же года онъ равняется: въ первомъ— 71,3 и во второмъ—74,0, у насъ онъ достигаетъ почтенной цифры 94. Не говорю уже о Варшавской Акушерской клиникѣ, въ которой за 1885—87 года процентъ здоровыхъ родильницъ достигъ только—50,7.
Что касается смертности, то и въ этомъ отношеніи мы довольно счастливы; тѣмъ болѣе, что она у насъ на самомъ дѣлѣ равняется не 0,5% какъ показано въ отчетѣ, а 0,2%, такъ какъ изъ двухъ бывшихъ у насъ смертныхъ случаевъ— pneumonia crouposa можно не принимать въ расчетъ, какъ неимѣющій ничего общаго съ занимающими насъ заболѣваніями. Просматривая процентъ смертности отъ послѣродовыхъ заболѣваній въ заведеніяхъ: С.-Петербургскомъ Родовспомогательномъ, въ Московской Акушерской Клиникѣ и въ Московскомъ Родовспомогательномъ, гдѣ онъ равняется: въ первомъ—0,4, во второмъ — 0,5 и въ третемъ — 0,3 — мы видимъ, что нашъ истинный процентъ смертности меньше, чѣмъ во всѣхъ поименованныхъ родильныхъ учрежденіяхъ, за исключеніемъ Родильнаго Пріюта Московской Голицинской Больницы, гдѣ онъ равняется 0—фактъ по истинѣ отрадный для насъ, въ особенности, если принять во вниманіе ту массу отрицательныхъ качествъ, которыми до послѣдняго времени такъ изобилуетъ Родильное Отдѣленіе Одесской Городской Больницы, не смотря на цѣлый рядъ улучшеній, удавшихся намъ провести за послѣдніе года, благодаря энергіи и заботамъ лицъ, стоящихъ во главѣ учрежденія.
Заканчивая отчетъ, не могу не замѣтить, что показанное нами отношеніе узкихъ тазовъ къ тазамъ нормальнымъ сравнительно велико и находится въ рѣзкомъ не соотвѣтствіи съ числомъ примѣнявшихся у насъ оперативныхъ пособій. Процентъ послѣднихъ всегда долженъ близко стоять къ процентному отношенію узкихъ тазовъ, такъ какъ эти послѣдніе служатъ въ большинствѣ случаевъ главными источниками оперативной статистики. Подобное соображеніе примѣнимо къ нашему отчету еще и тѣмъ болѣе, что процентъ другихъ осложненій родоваго акта, не потребовавшихъ примѣненія какихъ либо операцій, сравнительно ничтоженъ.
Въ нѣкоторыхъ случаяхъ мнѣ лично, у постели роженицъ, приходилось убѣждаться, что conjug. ехt. = 18 ц., не давала никакихъ уклоненій ни въ механизмѣ родоваго акта, ни въ конфигураціи нормальной величины младенческой головкифактъ — очевидно не мыслимый при наличности тазоваго съуженія.
Все это, поэтому, даетъ намъ нѣкоторое основаніе предположить, что сумма узкихъ тазовъ, показанная нами, не соотвѣтствуетъ дѣйствительности—преувеличена, и, быть можетъ, на добрую часть той суммы тазовъ, у которыхъ conjug. ехt. = 18 цнтм. Но гдѣ истина на самомъ дѣлѣ,—не знаю. Вѣроятно, какъ и всегда,—по срединѣ.
1 Кровати у насъ желѣзныя, крытыя бѣлой краской; матрасы и нижнія подушки набиты соломой, верхнія же—пуховыя.
About the authors
M. I. Razumovsky
Odessa city hospital
Author for correspondence.
Email: info@eco-vector.com
Resident physician
Russian Federation, OdessaReferences
Supplementary files




